Котел Ferroli Atlas D - инструкция пользователя по применению, эксплуатации и установке на русском языке. Мы надеемся, она поможет вам решить возникшие у вас вопросы при эксплуатации техники.
Если остались вопросы, задайте их в комментариях после инструкции.
"Загружаем инструкцию", означает, что нужно подождать пока файл загрузится и можно будет его читать онлайн. Некоторые инструкции очень большие и время их появления зависит от вашей скорости интернета.

ATLAS D
103
RU
cod. 3540I250 - 06/2007 (Rev. 00)
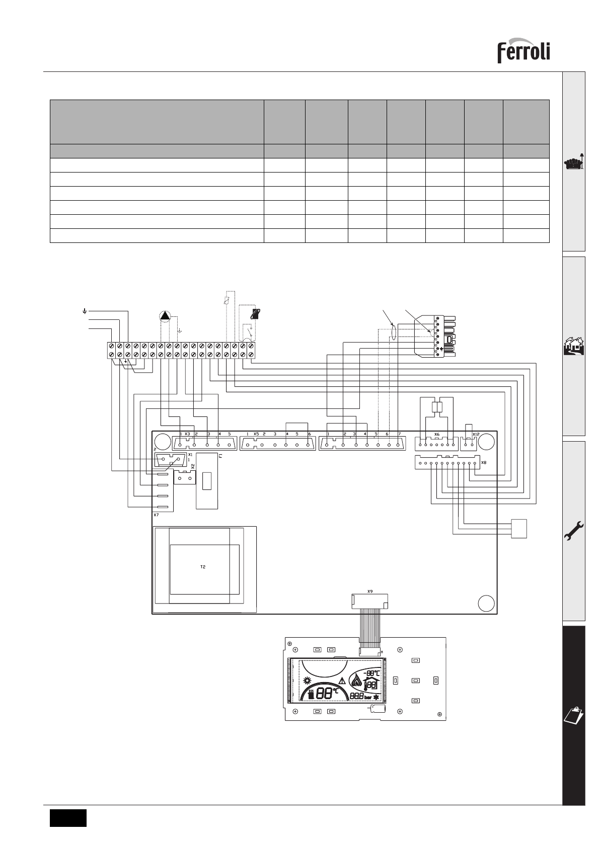
4.4
Электрическая
схема
рис
. 18 -
Электрическая
схема
32
Циркуляционный
насос
(
опция
)
72
Термостат
комнатной
температуры
(
опция
)
Напряжение
питания
В
/
Гц
230/50
230/50
230/50
230/50
230/50
Потребляемая
электрическая
мощность
Вт
5
5
5
5
5
Вес
порожнего
котла
кг
127
166
205
244
283
Длина
камеры
сгорания
мм
350
450
550
650
750
Диаметр
камеры
сгорания
мм
300
300
300
300
300
Сопротивление
дымоотводящего
тракта
мбар
0.59
0.50
0.45
0.55
1
Параметр
Едини
ца
измере
ния
Величи
на
Велич
ина
Велич
ина
Велич
ина
Велич
ина
Модель
D 30
D 42
D 55
D 70
D 87
DBM06
T° T°
278
OUT
+5V
GND
246
L
N
4
5
6
7
8
9 10 11 12 13 14 15 16 17 18
DSP05
L
N
230V
50Hz
L1
N
T1
T2
S3
B4
211
A
B
32
138
139
72