Котел Эван Warmos-RX-II- 4,7 - инструкция пользователя по применению, эксплуатации и установке на русском языке. Мы надеемся, она поможет вам решить возникшие у вас вопросы при эксплуатации техники.
Если остались вопросы, задайте их в комментариях после инструкции.
"Загружаем инструкцию", означает, что нужно подождать пока файл загрузится и можно будет его читать онлайн. Некоторые инструкции очень большие и время их появления зависит от вашей скорости интернета.

- 11 -
- 1
4
-
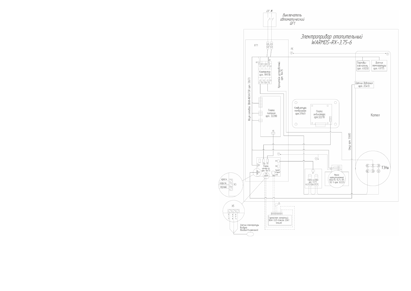
Рисунок 6 Схема подключения WARMOS-RX -3.75-6
7 Порядок работы
7.1
Включение. Производится включением внешнего автоматического выклю-
чателя
QF
1 после подключения котла к гидросистеме и электросети, а также заполнения
системы теплоносителем до требуемого среднего давления (0,12 –0,15 МПа).
В случае нормального (отсутствие несоответствий параметров) первого включе-
ния прибор должен находиться в
основном режиме индикации
с заводскими настрой-
ками. (Возможна временная - до 20 сек индикация сообщений об ошибках). При этом:
- индикатор нагрева (12) (рис. 3) не светится;
- все три индикатора ограничения мощности (7) (рис.3) — светятся (ограничения
мощности нет);
- все три индикатора потребляемой мощности (6) (рис.3) — не светятся (уровень
потребляемой мощности — 0%);
- индикатор контроля температуры теплоносителя (3) (рис.3) — светится, что
указывает на то, что семисимвольные индикаторы (6) (рис.3) указывают температуру
теплоносителя;
- контактор безопасности — разомкнут;
- насос и управляющие мощностью ключи — отключены.
Этот режим позволяет, при необходимости, изменить заводские настройки
температуры подачи теплоносителя (+60
°
С для режима
«отопление»
) и комнатной
температуры (+24
°
С для режима
«комнатный»
), а также ограничить потребляемую
мощность.
7.2
Изменение температуры уставки теплоносителя.
Нажатием кнопки (9) (рис. 3переведите прибор из
основного режима индикации
в режим настройки температуры уставки теплоносителя. Продолжит светиться
индикатор температуры теплоносителя
«
t
котла»
. По умолчанию - температура уставки
70
°
С. Цифры будут светиться прерывисто. Кнопками
«
^
»/«
v
»
установите необходимое
значение уставки температуры подачи теплоносителя в диапазоне от +5 до +85
°
С. Для
его фиксации необходимо ещё раз нажать кнопку подтверждения выбора (
9
)
(
рис.
3)
.
Моргание цифровых индикаторов прекратится, прибор перейдет в
основной режим
индикации
.
Примечание.
При работе с незамерзающим теплоносителем, температура которо-
го ниже 0 ºС, на цифровых индикаторах(5) наряду с цифрами, указывающими на темпера-
туру теплоносителя (целое число) высвечивается ещё и точка, указывающая на отрица-
тельность температуры. Когда температура теплоносителя становится положитель-
ной, точка исчезает и показывается текущее значение температуры
.
7.3
Изменение ограничения комнатной температуры.
Нажатием кнопки «
^
» прибор переводится из
основного режима индикации
в
режим индикации температуры воздуха При этом загорится индикатор температуры
воздуха
«
t
воздуха»
. В случае если к контактам винтового зажима
X
5 "Температура
помещения" платы центральной (см. схему подключения рис. 6-8) подключен входящий в
комплект датчик температуры воздуха, цифровое табло будет показывать текущую
температуру воздуха. (Если датчик не подключен, на цифровом табло будут символы «--».)
Нажатием кнопки подтверждения выбора (
9
)
(
рис.
3)
переведите прибор в режим настрой-
ки температуры воздуха. Кнопками
«
^
»/«
v
»
установите желаемое значение температуры в
помещении в пределах от +5 до +35 ºС. Для его фиксации необходимо ещё раз нажать
кнопку подтверждения выбора (
9
)
(
рис.
3)
. Моргание цифровых индикаторов прекратится,
прибор перейдет в режим индикации температуры воздуха, а через несколько секунд (не
более 10) в режим индикации текущей температуры теплоносителя.