Котел Эван EXPERT-27 14390 - инструкция пользователя по применению, эксплуатации и установке на русском языке. Мы надеемся, она поможет вам решить возникшие у вас вопросы при эксплуатации техники.
Если остались вопросы, задайте их в комментариях после инструкции.
"Загружаем инструкцию", означает, что нужно подождать пока файл загрузится и можно будет его читать онлайн. Некоторые инструкции очень большие и время их появления зависит от вашей скорости интернета.

Кронштейны, фиксирующие экспанзомат, кроме того несут панель (20), на которой
установлены винтовые клеммные колодки (21), служащий для подключения вводного
силового кабеля, хомут для его фиксации (22), электромагнитный контактор (23), контро-
лирующий подачу электрического напряжения по силовым проводам, соединяющим его с
платой силовых реле (24), определяющей состав включенных ТЭНов в соответствии с
сигналами, поступающими от платы управления (25). Для навешивания на стену использу-
ется закладная (26).
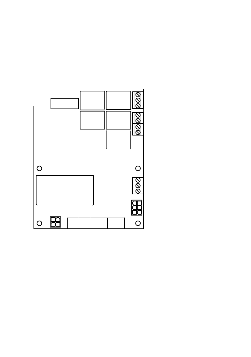
4.5 Плата управления содержит винтовые зажимы для подключения как датчиков
температуры воздуха, входящих в комплект прибора, так и других внешних устройств. Распо-
ложение разъёмов для подключения к прибору внешних устройств показано на рис. 4
Рисунок 4.
Расположение на плате управления разъёмов для подключения внешних
устройств.
Разъёмы ХТ1- ХТ4
представляют собой винтовые зажимы, предназначены для
следующих устройств:
4.5.1
Разъём ХТ1
предназначен для подключения датчика комнатной температуры
воздуха. Датчик входит в комплект. Важна полярность! К правому контакту подсоединять
общий провод датчика (черного цвета). Датчик необходимо размещать там, где требуется
поддерживать нужную температуру. Рекомендуемое расположение — на высоте 170 см, на
удалении от прямых солнечных лучей и радиаторов. Проводники датчика можно удлинять
2
до 30 м проводами сечением не менее 1 мм .
- 6 -
com
контур отопления
контур ГВС
клеммы подключения
ведомого котла
ХТ6
ХТ7
ХТ1 ХТ2 ХТ3
ХТ4
┴
ꜛ
1 2 ┴
внешн.
термостат
1 2 ┴
термостат
ГВС
Разъём подключения
трёхходового клапана
клеммы подключения
приёмника сигнала об отказе
T ºC
уличн.
┴
ꜛ
T ºC
комн.
Содержание
- 2 Таблица 2; Номинальная мощность; Наименование прибора
- 5 Вид прибора со снятыми панелью и кожухом показан на рисунке 3.; Рисунок 3
- 6 Разъём ХТ1
- 8 Структура режимов дисплея блока управления.
- 9 к о т е л в о з д у х; Н О РМ А; х х х
- 10 Требования безопасности; Т воды; ТЭНов; Туличн
- 11 Монтаж и подключение; “Отметка о проведенных работах”.
- 12 Рисунок 11. Закладная деталь для крепления прибора
- 13 Рисунок 12. Габаритные и присоединительные размеры прибора; Название прибора
- 14 QF
- 18 Заполнение системы отопления.; Порядок работы; Характеристика режимов работы:
- 20 МЕНЮ УСТАНОВКИ; Рисунок 17. Электрическое подключение комплекта ГВС EVAN AQUA.; настоящего руководства.; Котел
- 22 Рисунок 20. Отображение на экране режимов работы прибора.; 0 С. При переключении в режим «Теплый пол» значение меняется на 45 С.
- 23 OK
- 24 Рисунок 24. Настройка внутренних параметров и установок.; Ткомф; УСТАНОВКА НЕДЕЛЬНЫХ; График Рабочий день; НАСТРОЙКА; Январь; ВКЛ
- 25 Рисунок 25. Статистика энергопотребления.; СТАТИСТИКА; Графики температур
- 26 Просмотр статистики; СЕРВИСНОЕ МЕНЮ; трехходового клапана.; Рисунок 27. Индикация версии программного обеспечения.; Сигнализация о несоответствиях в работе.
- 27 ВЫСОКОЕ ДАВЛЕНИЕ; TM
- 28 режим «Выключен» и отключить внешний автоматический выключатель.
- 29 Установка скорости