Котел Эван ЭПО-2,5 - инструкция пользователя по применению, эксплуатации и установке на русском языке. Мы надеемся, она поможет вам решить возникшие у вас вопросы при эксплуатации техники.
Если остались вопросы, задайте их в комментариях после инструкции.
"Загружаем инструкцию", означает, что нужно подождать пока файл загрузится и можно будет его читать онлайн. Некоторые инструкции очень большие и время их появления зависит от вашей скорости интернета.

- 11 -
- 14 -
ÝÏÎ-7,5;-9,45 (220 Â)
Òåìïåðà-
òóðíîå
ðåëå
ÏÓÑÊÀÒÅËÜ
ÏËÀÒÀ
ÓÏÐÀÂËÅÍÈß
ÏÓËÜÒ
ÓÏÐÀÂËÅÍÈß
Ýëåêòðîñåòü
N
1
Âûêëþ÷àòåëü
íà ÒÝÍû ýëåêòîïðèáîðà
ÔÀÇÀ
Êðûøêà ñ ÒÝÍàìè
ñ ïóëüòà óïðàâëåíèÿ
ÔÀÇÀ
ÊÎÒ¨Ë
ÔÀÇÀ
5
3
2
4
6
Äàò÷èê
òåðìî-
ðåãóëÿòîðà
“Ðàçúåì Õ1”
( äàò÷èê òåìïå-
ðàòóðû âîçäóõà)
ÐÅ
ÐÅ
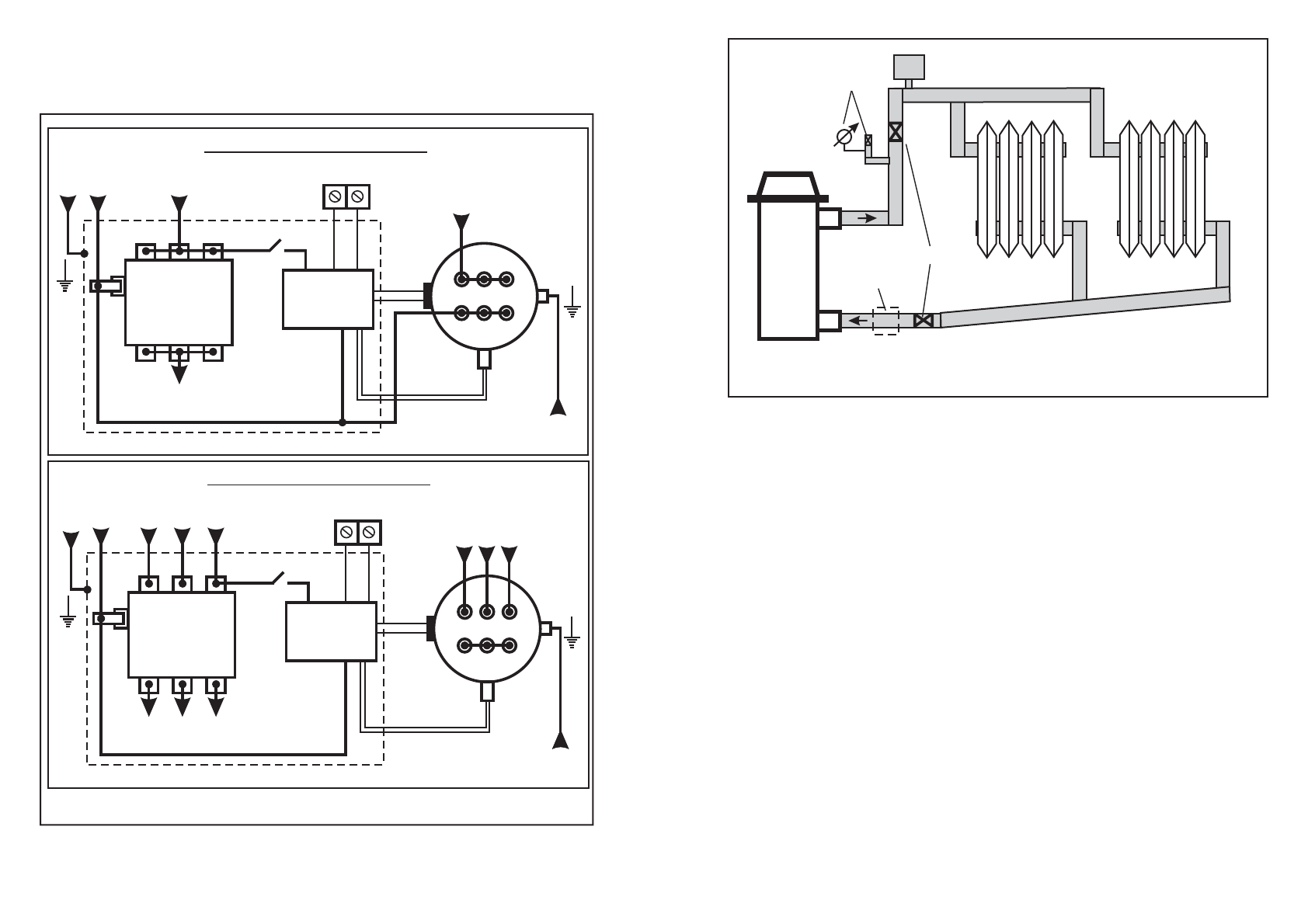
Ðèñóíîê 6 - Ýëåêòðè÷åñêèå ñõåìû ïîäêëþ÷åíèÿ
Òàê êàê ïðè ñðàáàòûâàíèè ïðåäîõðàíèòåëüíîãî êëàïàíà
âîçìîæåí âûáðîñ òåïëîíîñèòåëÿ èëè ïàðà ÷åðåç åãî äðåíàæíîå
îòâåðñòèå, íåîáõîäèìî ê ýòîìó îòâåðñòèþ âûïîëíèòü ñëèâ â
êàíàëèçàöèîííóþ ñèñòåìó, çàùèùàþùèé îò ýòèõ ôàêòîðîâ.
6.1.6. Íà âõîäå è âûõîäå èç êîòëà â ñîîòâåòñòâèè ñ ðèñóíêîì
4 óñòàíàâëèâàþòñÿ øàðîâûå âåíòèëè, ïðèìåíÿåìûå ïðè
äåìîíòàæå, ðåìîíòå è òåõíè÷åñêîì îáñëóæèâàíèè ïðèáîðà.
6.1.7. Äàâëåíèå îïðåññîâêè ñèñòåìû îòîïëåíèÿ ñ êîòëîì ïîñëå
ìîíòàæà - íå áîëåå 0,3 ÌÏà.
6.1.8. Êîò¸ë äîëæåí áûòü ñìîíòèðîâàí â âåðòèêàëüíîì
ïîëîæåíèè (çàùèòíûé êîæóõ - ââåðõó). Ïóëüò
óïðàâëåíèÿ
ìîíòèðóåòñÿ âåðòèêàëüíî íà âûñîòå 1,4 - 1,7 ì îò ïîëà, íà ñòåíàõ
è ñîîðóæåíèÿõ, â õîðîøî îñâåùåííûõ ïîìåùåíèÿõ.
6.1.9. Ïîäêëþ÷åíèå ïóëüòà óïðàâëåíèÿ ê ýëåêòðè÷åñêîé ñåòè
ïðîèçâîäèòñÿ â ñîîòâåòñòâèè ñ ÏÓÝ è ÏÏÁ è òîëüêî ÷åðåç
àâòîìàòè÷åñêèé âûêëþ÷àòåëü (ñì. ï. 5.3.).
Óñòàíîâêà çàïîðíîé àðìàòóðû íà òðóáîïðîâîäå, ñîåäèíÿþùåì
ðàñøèðèòåëüíóþ åìêîñòü ñ ñèñòåìîé îòîïëåíèÿ çàïðåùàåòñÿ!
Ðèñóíîê 4 - Ïðèìåðíàÿ ñõåìà ñèñòåìû îòîïëåíèÿ
Ê - êîò¸ë; ÃÁ - ãðóïïà áåçîïàñíîñòè; ÐÅ - ðàñøèðèòåëüíàÿ
åìêîñòü; ØÂ - øàðîâûé âåíòèëü G1 / ; ÍÖ - íàñîñ öèðêóëÿöèîííûé
1
4
ØÂ
ÍÖ
ÐÅ
Ê
ÃÁ
ÐÅ
ÝÏÎ-7,5;-9,45 (380 Â)
Òåìïåðà-
òóðíîå
ðåëå
ÏÓÑÊÀÒÅËÜ
ÏËÀÒÀ
ÓÏÐÀÂËÅÍÈß
ÏÓËÜÒ
ÓÏÐÀÂËÅÍÈß
Ýëåêòðîñåòü
N
Âûêëþ÷àòåëü
íà ÒÝÍû ýëåêòîïðèáîðà
Â
Êðûøêà ñ ÒÝÍàìè
ñ ïóëüòà óïðàâëåíèÿ
Â
ÊÎÒ¨Ë
À
Äàò÷èê
òåðìî-
ðåãóëÿòîðà
À
Ñ
À
Ñ
 Ñ
1
5
3
2
4
6
“Ðàçúåì Õ1”
( äàò÷èê òåìïå-
ðàòóðû âîçäóõà)
ÐÅ
ÐÅ