Electrolux FSB 50 P - Инструкция по эксплуатации - Страница 22

Котел Electrolux FSB 50 P - инструкция пользователя по применению, эксплуатации и установке на русском языке. Мы надеемся, она поможет вам решить возникшие у вас вопросы при эксплуатации техники.

Если остались вопросы, задайте их в комментариях после инструкции.

"Загружаем инструкцию", означает, что нужно подождать пока файл загрузится и можно будет его читать онлайн. Некоторые инструкции очень большие и время их появления зависит от вашей скорости интернета.
Страница:
/ 28
Загружаем инструкцию
background image

22

  

electrolux

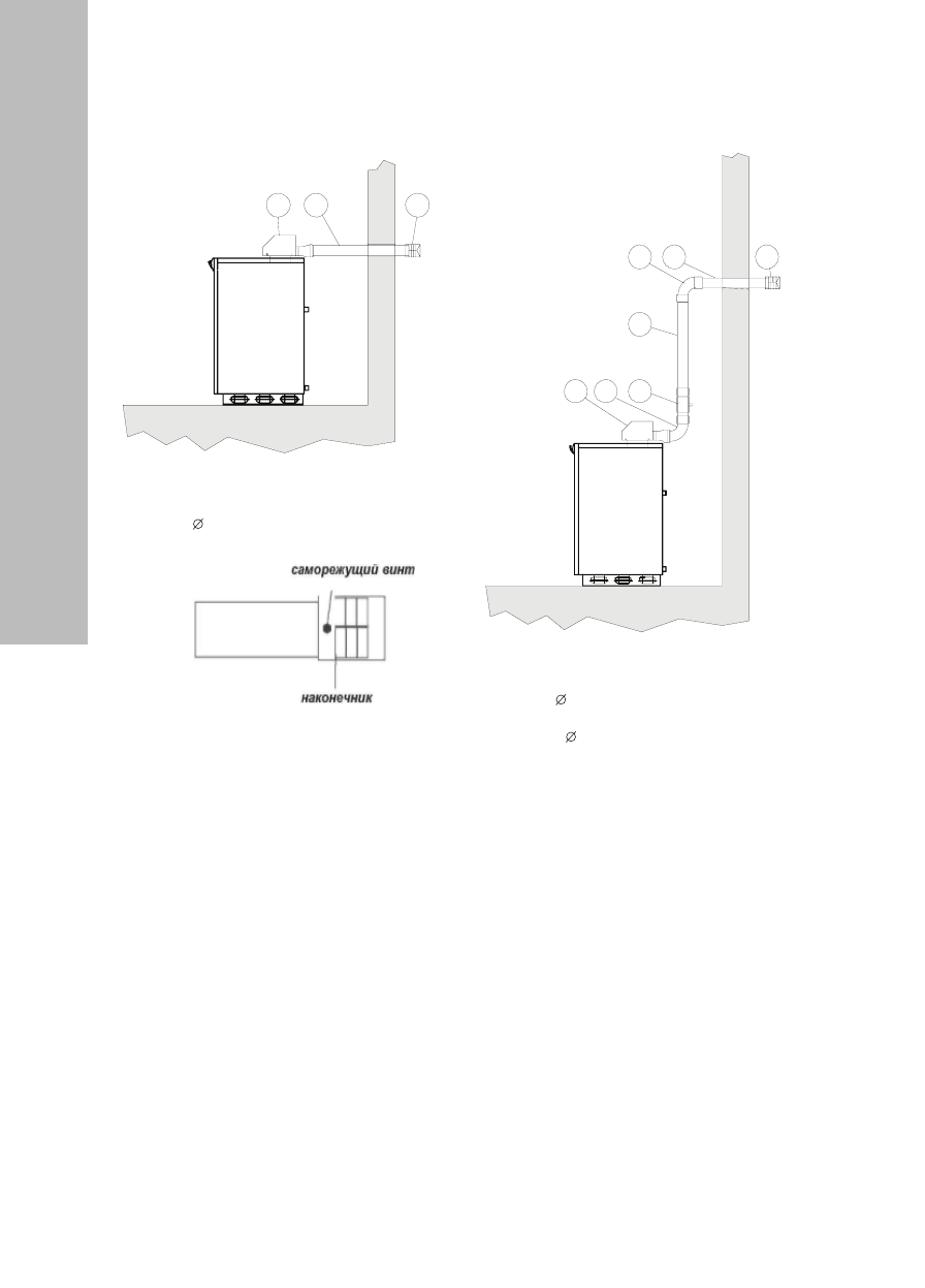
Варианты монтажа дымохода с насадкой 
«TURBO»

1 4

5

4

3

2

2

Обозначения:

1

 – TURBO A, B, C

2

 – труба   80 мм

3

 – защитная решетка от птиц

4

 – колено   80 мм 90

5

 –элемент для отведения конденсата

2

1

3

Обозначения:

1

 – TURBO A, B, C

2

 – труба   80 мм

3

 – защитная решетка от птиц

Характеристики

Оцените статью
tehnopanorama.ru
Остались вопросы?

Не нашли свой ответ в руководстве или возникли другие проблемы? Задайте свой вопрос в форме ниже с подробным описанием вашей ситуации, чтобы другие люди и специалисты смогли дать на него ответ. Если вы знаете как решить проблему другого человека, пожалуйста, подскажите ему :)

Задать вопрос

Часто задаваемые вопросы
Как посмотреть инструкцию к Electrolux FSB 50 P?
Необходимо подождать полной загрузки инструкции в сером окне на данной странице
Руководство на русском языке?
Все наши руководства представлены на русском языке или схематично, поэтому вы без труда сможете разобраться с вашей моделью
Как скопировать текст из PDF?
Чтобы скопировать текст со страницы инструкции воспользуйтесь вкладкой "HTML"