Котел Electrolux Basic Space 11Fi - инструкция пользователя по применению, эксплуатации и установке на русском языке. Мы надеемся, она поможет вам решить возникшие у вас вопросы при эксплуатации техники.
Если остались вопросы, задайте их в комментариях после инструкции.
"Загружаем инструкцию", означает, что нужно подождать пока файл загрузится и можно будет его читать онлайн. Некоторые инструкции очень большие и время их появления зависит от вашей скорости интернета.

газовые котлы
3
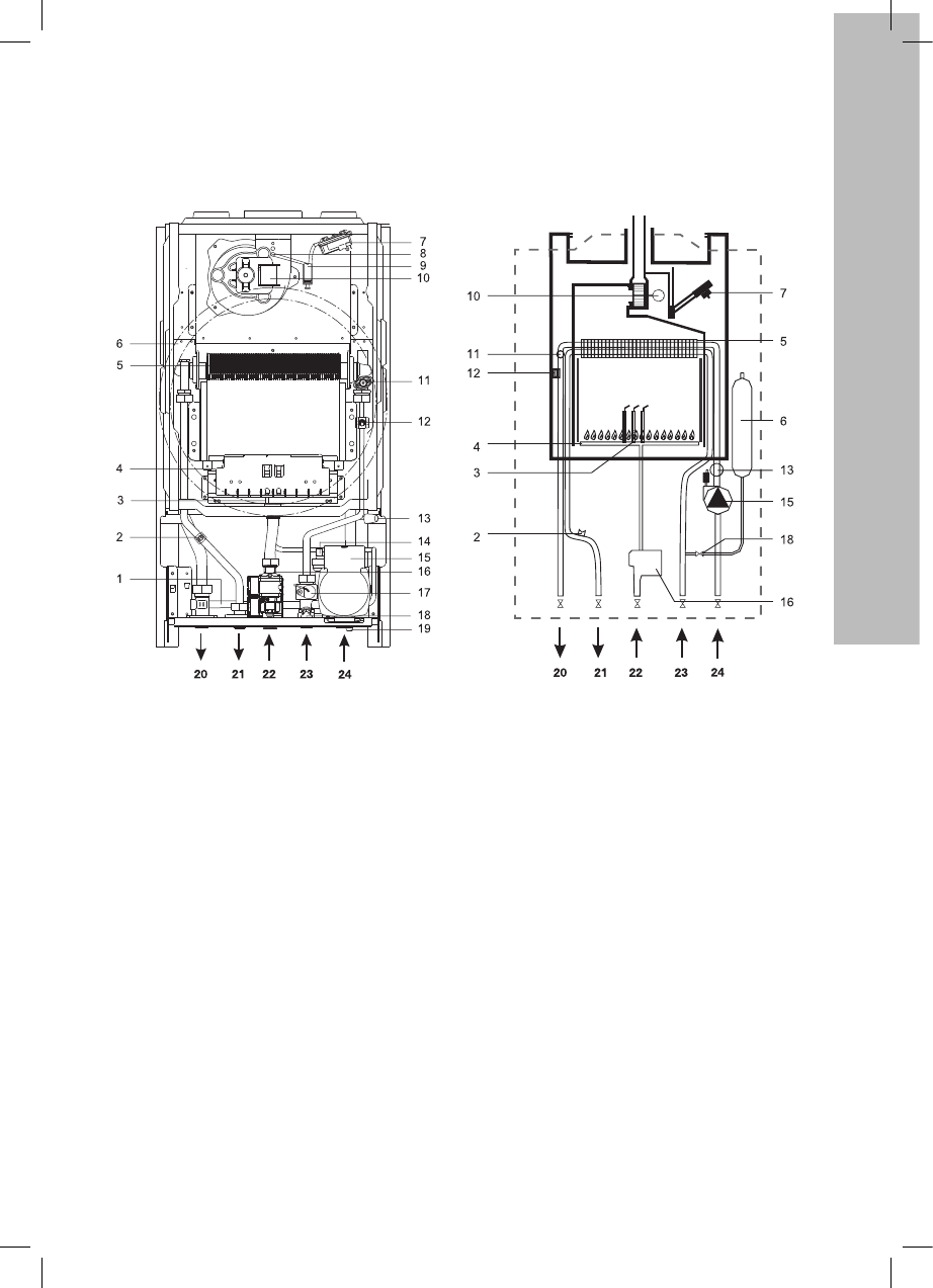
Внутренняя структура котла
1
Байпас
2
NTC датчик температуры ГВС
3
Электрод розжига и контроля пламени
4
Горелка
5
Битермический теплообменник
6
Расширительный бак
7
Прессостат дымоудаления
8
Трубка вентури
9
Конденсатосборник
10
Вентилятор дымоудаления
11
Предельный термостат системы отопления
12
NTC датчик температуры отопления
13
Датчик давления теплоносителя
14
Автоматический воздухоотводчик на насосе
15
Насос
16
Газовый клапан
17
Датчик расхода ГВС
18
Кран подпитки системы отопления
19
Трубка сброса давления
20
Выход контура отопления
21
Выход контура ГВС
22
Вход газа
23
Вход холодной воды
24
Вход контура отопления
Принципиальная схема
Содержание
- 3 газовые котлы; Внутренняя структура котла
- 4 Циркуляционный насос
- 5 Технические характеристики; Общие данные
- 7 Панель управления; Пояснение к ЖК-дисплею
- 8 Подключение газа
- 9 ОN; Начало использования; Режима горячего водоснабжения
- 10 Настройка программатора котла
- 11 Погодозависимое управление котлом; При подключении уличного датчика; Выключение; Выключение котла на долгое время
- 12 Температура теплоносителя более 100; Е3 – ошибка в системе дымоудаления
- 13 Общие неисправности и решения; Hеисправность
- 14 Техническое обслуживание; Распаковка; Размеры
- 15 Требования к воде, используемой в качестве; Присоединение гидравлических систем; Условия установки; Крепление монтажного кронштейна
- 16 Гидравлические подсоединения; Подсоединение газа; Для котлов с закрытой камерой сгорания
- 17 • Коаксиальная система «труба в трубе»; с отводом продуктов сгорания; • Раздельная система труб 80 и 80 мм; с отводом продуктов
- 19 Коаксиальный дымоход
- 20 Электронная плата; Изменяемая функция
- 21 «Настройка минимальной мощ-; Перевод котла на сжиженный газ; форсунок; Настройка газового клапана
- 22 • выключите котел кнопкой на панели управ-; Этикетка котла; Год; Утилизация; Сертификат соответствия:
- 23 Орган по сертификации:
- 24 Га ран тий ный та лон












