Котел Chaffoteaux Alixia 24 FF - инструкция пользователя по применению, эксплуатации и установке на русском языке. Мы надеемся, она поможет вам решить возникшие у вас вопросы при эксплуатации техники.
Если остались вопросы, задайте их в комментариях после инструкции.
"Загружаем инструкцию", означает, что нужно подождать пока файл загрузится и можно будет его читать онлайн. Некоторые инструкции очень большие и время их появления зависит от вашей скорости интернета.

Описание изделия
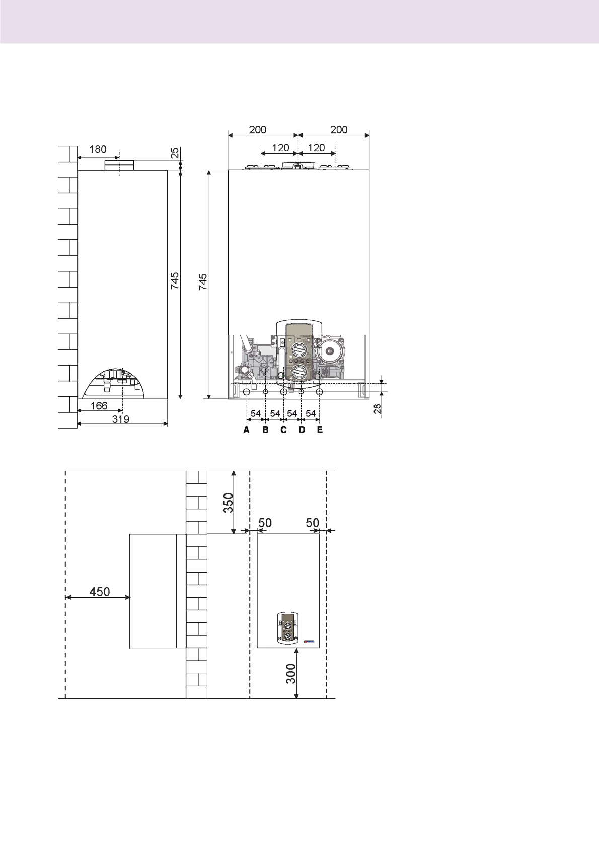
Габаритные размеры котла
A.
Подающий трубо-
провод системы
отопления 3/4"
B.
Выход горячей воды
1/2"
C.
Вход газа 3/4"
D.
Вход холодной воды
(1/2")
E.
Обратный трубопро-
вод системы
отопления 3/4"
Минимальные расстояния
при монтаже
Для того чтобы обеспечить
удобство во время
последующего технического
обслуживания котла,
необходимо во время монтажа
предусмотреть некоторые
минимальные расстояния.
Монтаж производить с
использованием
гидравлического уровня.
Характеристики
Остались вопросы?Не нашли свой ответ в руководстве или возникли другие проблемы? Задайте свой вопрос в форме ниже с подробным описанием вашей ситуации, чтобы другие люди и специалисты смогли дать на него ответ. Если вы знаете как решить проблему другого человека, пожалуйста, подскажите ему :)