Котел Buderus Logamax plus GB172-30 iK H черный - инструкция пользователя по применению, эксплуатации и установке на русском языке. Мы надеемся, она поможет вам решить возникшие у вас вопросы при эксплуатации техники.
Если остались вопросы, задайте их в комментариях после инструкции.
"Загружаем инструкцию", означает, что нужно подождать пока файл загрузится и можно будет его читать онлайн. Некоторые инструкции очень большие и время их появления зависит от вашей скорости интернета.

2
Информация об изделии
Logamax plus – 6720844853 (2015/09)
6
2.5
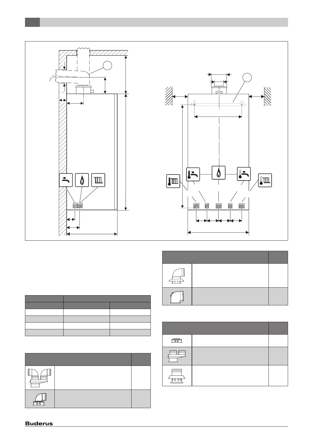
Размеры и минимальные расстояния
Рис. 2 Размеры и минимальные расстояния (мм)
[1]
Узел отвода дымовых газов
[2]
Планка для подвески
A
Расстояние от верхнего края котла до оси горизонтальной
трубы отвода дымовых газов
B
Расстояние от верхнего края котла до потолка
K
Диаметр отверстия
S
Толщина стены
Таб. 4 Диаметр К в зависимости от толщины стены S и диаметра
дымовой трубы
Таб. 5 Расстояние А в зависимости от комплектующих отвода
дымовых газов
Таб. 6 Расстояние В в зависимости от комплектующих отвода
дымовых газов
0 010 005 865-001
B
160
840
360
50
35
A
K
S
5,2 %
440
≥ 100
≥ 100
Ø125
Ø80
65
65
67
R1/2
67
R3/4
R1/2
R3/4
R3/4
760
192
1
2
Толщина стены S Диаметр К [мм] для Ø дымовой трубы [мм]
Ø 80
Ø 80/125
15 - 24 см
110
155
24 - 33 см
115
160
33 - 42 см
120
165
42 - 50 см
145
170
Комплектующие для горизонтальной трубы отвода
дымовых газов
A [мм]
Ø 80/80 мм
Раздельное подключение труб Ø 80/
80 мм,
колена 90 ° Ø 80 мм
208
Ø 80 мм
Переходник Ø 80/125 мм,
колено 90 ° Ø 80 мм
150
Ø 80 мм
Переходник Ø 80/125 мм с подводом
воздуха для горения,
колено 90 ° Ø 80 мм
205
Ø 80/125 мм
Колено Ø 80/125 мм
114
Комплектующие для вертикальной трубы отвода
дымовых газов
B [мм]
Ø 80/125 мм
Переходник Ø 80/125 мм
250
Ø 80/80 мм
Раздельное подключение труб Ø 80/
80 мм
310
Ø 80 мм
Переходник Ø 80 мм с подводом
воздуха для горения
310
Комплектующие для горизонтальной трубы отвода
дымовых газов
A [мм]

