Buderus Logamax plus GB172-30 iK H черный - Инструкция по эксплуатации - Страница 56

Котел Buderus Logamax plus GB172-30 iK H черный - инструкция пользователя по применению, эксплуатации и установке на русском языке. Мы надеемся, она поможет вам решить возникшие у вас вопросы при эксплуатации техники.

Если остались вопросы, задайте их в комментариях после инструкции.

"Загружаем инструкцию", означает, что нужно подождать пока файл загрузится и можно будет его читать онлайн. Некоторые инструкции очень большие и время их появления зависит от вашей скорости интернета.
Страница:
/ 68
Загружаем инструкцию
background image

17

 

Приложение

Logamax plus – 6720844853 (2015/09)

56

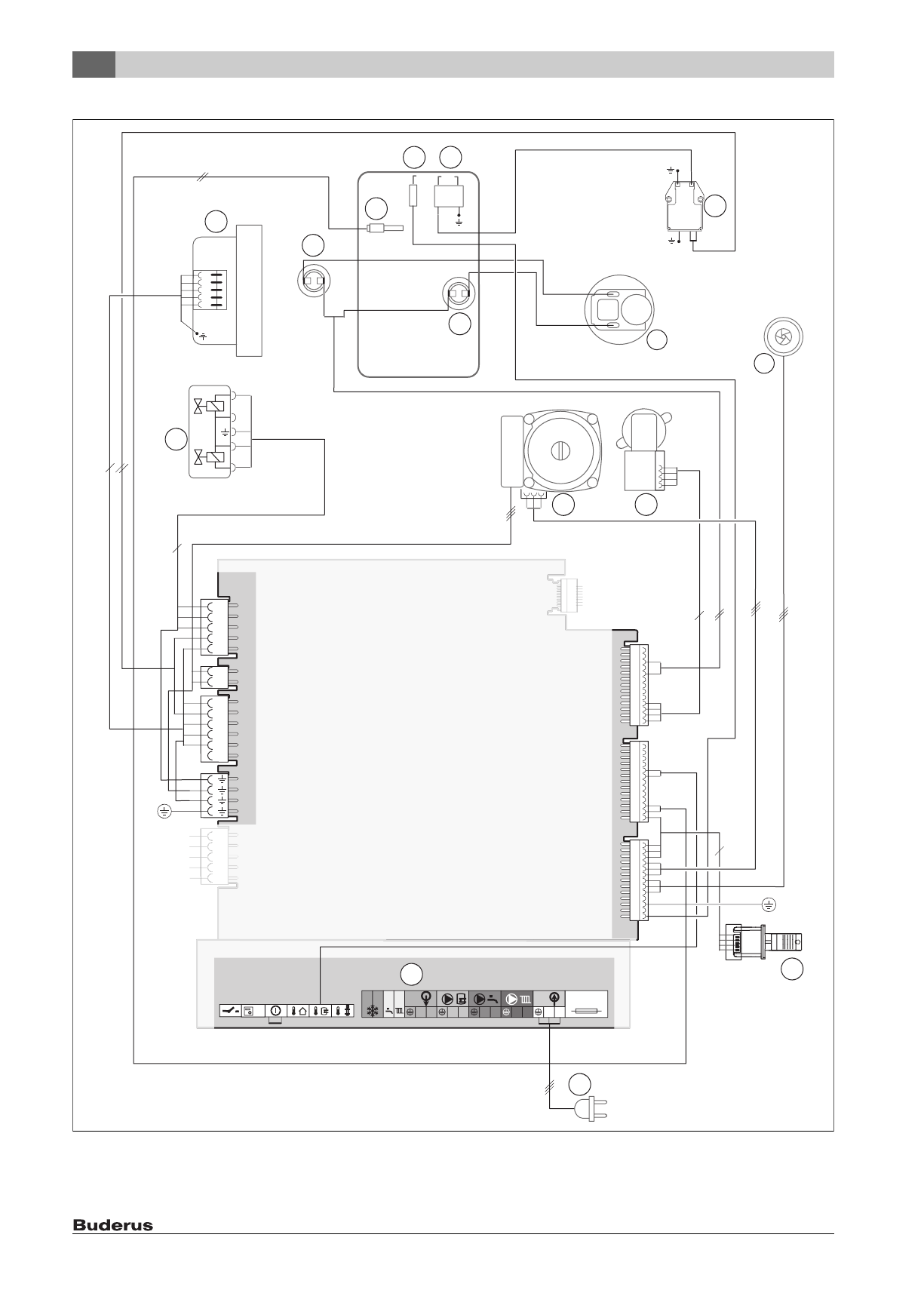
17.2

Электрические соединения

Рис. 77   Электрические соединения

L1

L2

N

N

N

3

1

EMS

EMS

LR LR

FS

FR

230V
OUT

230V
IN

N

L

N

L

N

L

N

L

N

L

Fuse

5AF

6

4

4

4

0 010 008 398-001

6

8

9

11

10

12

13

5

4

2

7

14

15

Полезные видео

Характеристики

Оцените статью
tehnopanorama.ru
Остались вопросы?

Не нашли свой ответ в руководстве или возникли другие проблемы? Задайте свой вопрос в форме ниже с подробным описанием вашей ситуации, чтобы другие люди и специалисты смогли дать на него ответ. Если вы знаете как решить проблему другого человека, пожалуйста, подскажите ему :)

Задать вопрос

Часто задаваемые вопросы
Как посмотреть инструкцию к Buderus Logamax plus GB172-30 iK H черный?
Необходимо подождать полной загрузки инструкции в сером окне на данной странице
Руководство на русском языке?
Все наши руководства представлены на русском языке или схематично, поэтому вы без труда сможете разобраться с вашей моделью
Как скопировать текст из PDF?
Чтобы скопировать текст со страницы инструкции воспользуйтесь вкладкой "HTML"