Котел Beretta NOVELLA MAXIMA 90N RAI - инструкция пользователя по применению, эксплуатации и установке на русском языке. Мы надеемся, она поможет вам решить возникшие у вас вопросы при эксплуатации техники.
Если остались вопросы, задайте их в комментариях после инструкции.
"Загружаем инструкцию", означает, что нужно подождать пока файл загрузится и можно будет его читать онлайн. Некоторые инструкции очень большие и время их появления зависит от вашей скорости интернета.

7
2.2
Компоненты котла
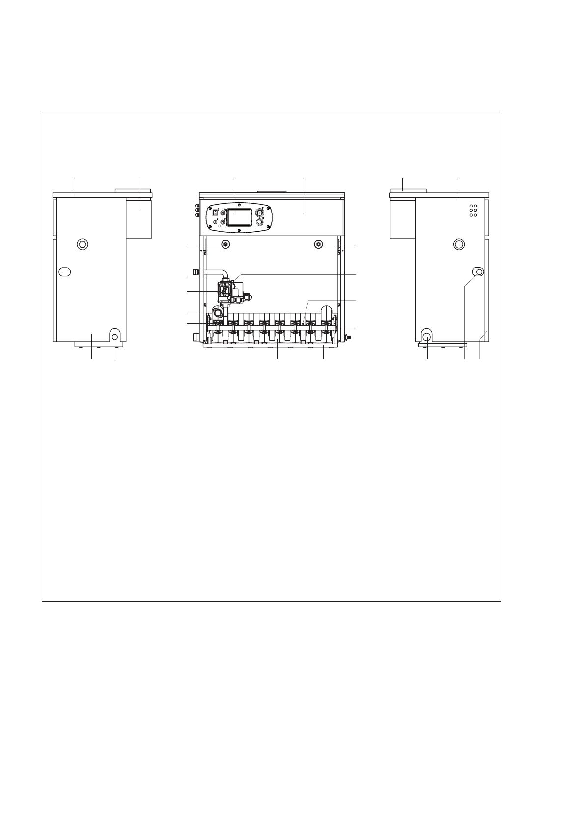
Pис. 2.1
1 - Верхняя панель облицовки котла
2 - Дымосборник
3 - Главная панель управления
4 - Передняя верхняя панель облицовки
котла
5 - Патрубок для присоединения дымохо-
да
6 - Подающая линия контура отопления
7 - Нижняя передняя панель облицовки
котла
8 - Штуцер газа
9 - Обратная линия контура отопления
10 - Гильзы для установки датчиков котла
11 - Штуцер для замера давления 1/8” (толь-
ко 108 N RAI)
12 - Штуцер для замера давления газа на
форсунках
13 - Горелка
14 - Лонжероны основания котла
15 - Корпус котла
16 - Электрод розжига/обнаружения
17 - Глазок пламени
18 - Газовый клапан
19 - Линия подачи газа
20 - Сливной кран котла
21 - Боковая панель облицовки котла
1
2
3
4
5
6
7
8
9
10
10
16
17
18
19
20
11
13
14
15
21
12