Котел Beretta NOVELLA MAXIMA 90N RAI - инструкция пользователя по применению, эксплуатации и установке на русском языке. Мы надеемся, она поможет вам решить возникшие у вас вопросы при эксплуатации техники.
Если остались вопросы, задайте их в комментариях после инструкции.
"Загружаем инструкцию", означает, что нужно подождать пока файл загрузится и можно будет его читать онлайн. Некоторые инструкции очень большие и время их появления зависит от вашей скорости интернета.

19
2
1
2
3
4
2
5
2
6
7
2
2
1
2
MI
RI
65
665
195
MI
RI
75
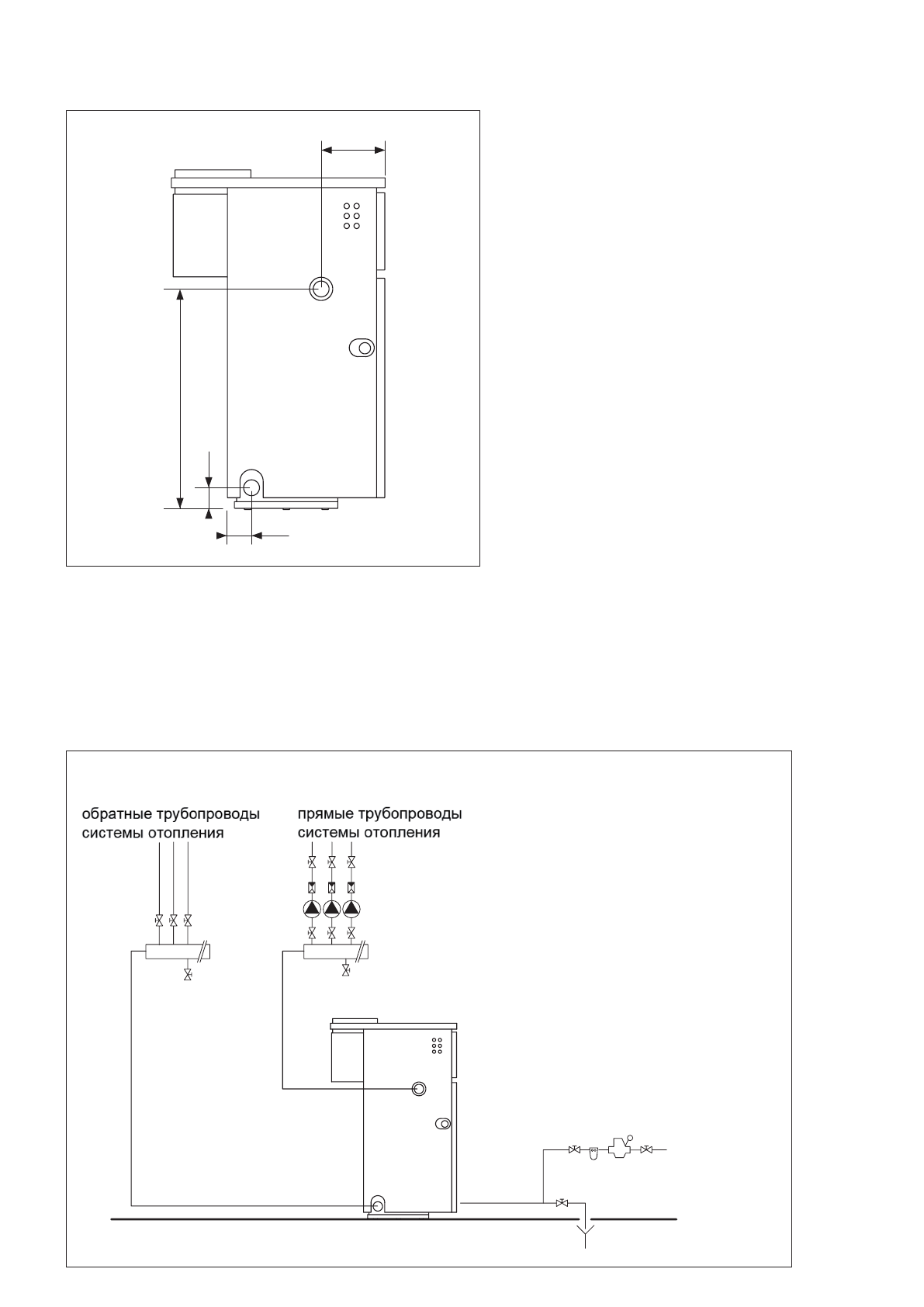
Принципиальная схема
1 - Коллекторы системы
2 - Отсечные клапаны
3 - Циркуляционные насосы
системы отопления
4 - Обратные клапаны
5 - Кран слива котла (на проти-
воположной стороне)
6 - Редуктор
7 - Фильтр умягчитель
3 МОНТАЖ
3.1
Подводка воды
Котлы Novella MAXIMA
предназначены
для установки в системы отопления, а
также для производства горячей сантех-
нической воды при их подключении к соот-
ветствующим системам.
Присоединительные размеры для подклю-
чения воды:
MI - Подача в систему 1 1/2" M
(наружная резьба)
RI - Возврат из системы 1 1/2" M
(наружная резьба)
b
Слив из предохранительного клапан котла
должен соединяться с системой дренажа
и отвода воды.
Производитель котла не несёт ответ-
ственности за ущерб, причинённый сраба-
тыванием предохранительного клапана.
b
Если в систему отопления залит анти-
фриз, необходимо установить гидравличе-
ский разъединитель.
b
Выбор и монтаж компонентов гидравличе-
ской системы должен производиться мон-
тажником, который должен действовать в
соответствии с действующими нормами и
правилами.
Pис. 3.1
Pис. 3.2