Котел Beretta NOVELLA E 70 RAI - инструкция пользователя по применению, эксплуатации и установке на русском языке. Мы надеемся, она поможет вам решить возникшие у вас вопросы при эксплуатации техники.
Если остались вопросы, задайте их в комментариях после инструкции.
"Загружаем инструкцию", означает, что нужно подождать пока файл загрузится и можно будет его читать онлайн. Некоторые инструкции очень большие и время их появления зависит от вашей скорости интернета.

15
A
B
C
D
MI
RI
3.5
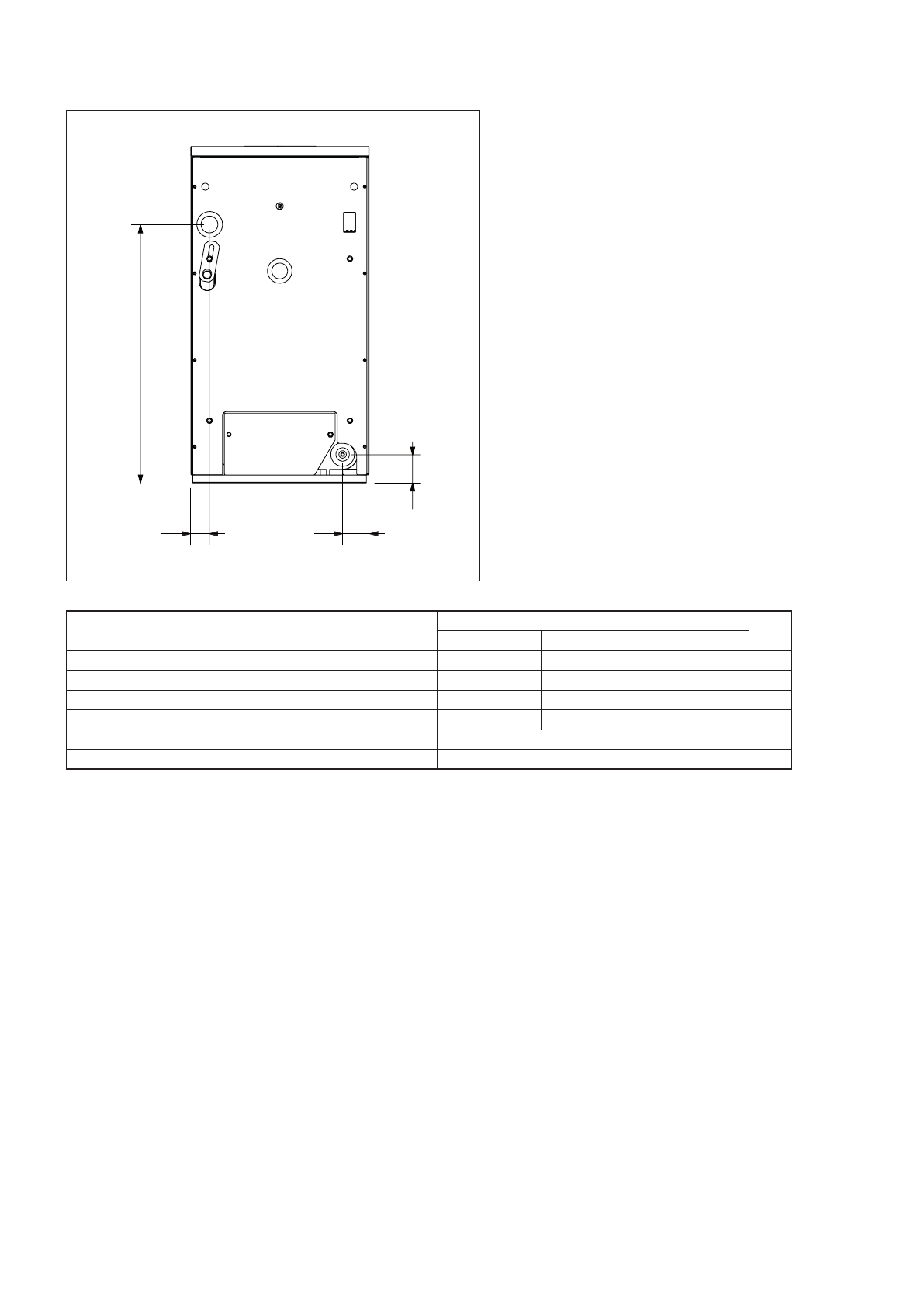
Гидравлические подключения
Рис. 3.1
Описание
NOVELLA
61E RAI
70E RAI
78E RAI
A
72
72
72
мм
B
653
653
653
мм
C
48
48
48
мм
D
66
66
66
мм
MI - прямой трубопровод системы
1 1/4" G F
Ø
RI - обратный трубопровод системы
1 1/4" G F
Ø
Котлы «NOVELLA E RAI» спроектированы
и предназначены для нагрева теплоноси-
теля системы отопления.
Перед тем как начинать установку, реко-
мендуется тщательно промыть все трубо-
проводы в системе отопления.
b
Слив (Sc) из всех установленных
предохранительных клапанов (уста-
навливаются монтажником) должен
соединяться с системой дренажа и
отвода воды.
Производитель котла не несёт ответ-
ственности за ущерб, причинённый
срабатыванием предохранительного
клапана.
b
Если система отопления залита
антифризом, необходимо устано-
вить гидравлические разъединители
(гидравлические стрелки).
b
Выбор и монтаж компонентов гидрав-
лической системы должен произво-
диться монтажником, который дол-
жен действовать в соответствии с
действующими нормами и правилами.
3.6
Электрическое подключение
Все электрические соединения были выполнены на заводе изготовителе и проверены.
Достаточно выполнить следующие подключения:
- к электрической однофазной сети 230 В 50 Гц
- комнатный термостат (ТА).
Смотри инструкции на следующей странице.
b
Обязательно:
- установите комбинированный (маг-
нитотермический) автоматический
выключатель на все полюса, раз-
мыкатель цепи, соответствующий
стандартам CEI-EN (с размыканием
контактов не менее 3 мм);
- соблюдайте полярности L1 (фаза) –
N (нейтраль);
- используйте кабели с сечением
жилы и характеристиками изоляции,
соответствующими требованиям
действующих стандартов монтажа
(сечение не менее 1,5 мм
2
);
- при выполнении любых электриче-
ских работ, производите все соеди-
нения согласно схемам, приведён-
ным в настоящем Руководстве;
- надёжно заземлите котёл;
a
Запрещено использовать трубо-
провод газа и/или воды в качестве
заземлителей для электрооборудо-
вания. Изготовитель не несет ответ-
ственности за ущерб, вызванный
неправильным заземлением котла.