Котел Baxi SLIM 2.300 Fi - инструкция пользователя по применению, эксплуатации и установке на русском языке. Мы надеемся, она поможет вам решить возникшие у вас вопросы при эксплуатации техники.
Если остались вопросы, задайте их в комментариях после инструкции.
"Загружаем инструкцию", означает, что нужно подождать пока файл загрузится и можно будет его читать онлайн. Некоторые инструкции очень большие и время их появления зависит от вашей скорости интернета.

SLIM 2.300 Fi
руководство
для
технического
персонала
15
газовые
напольные
котлы
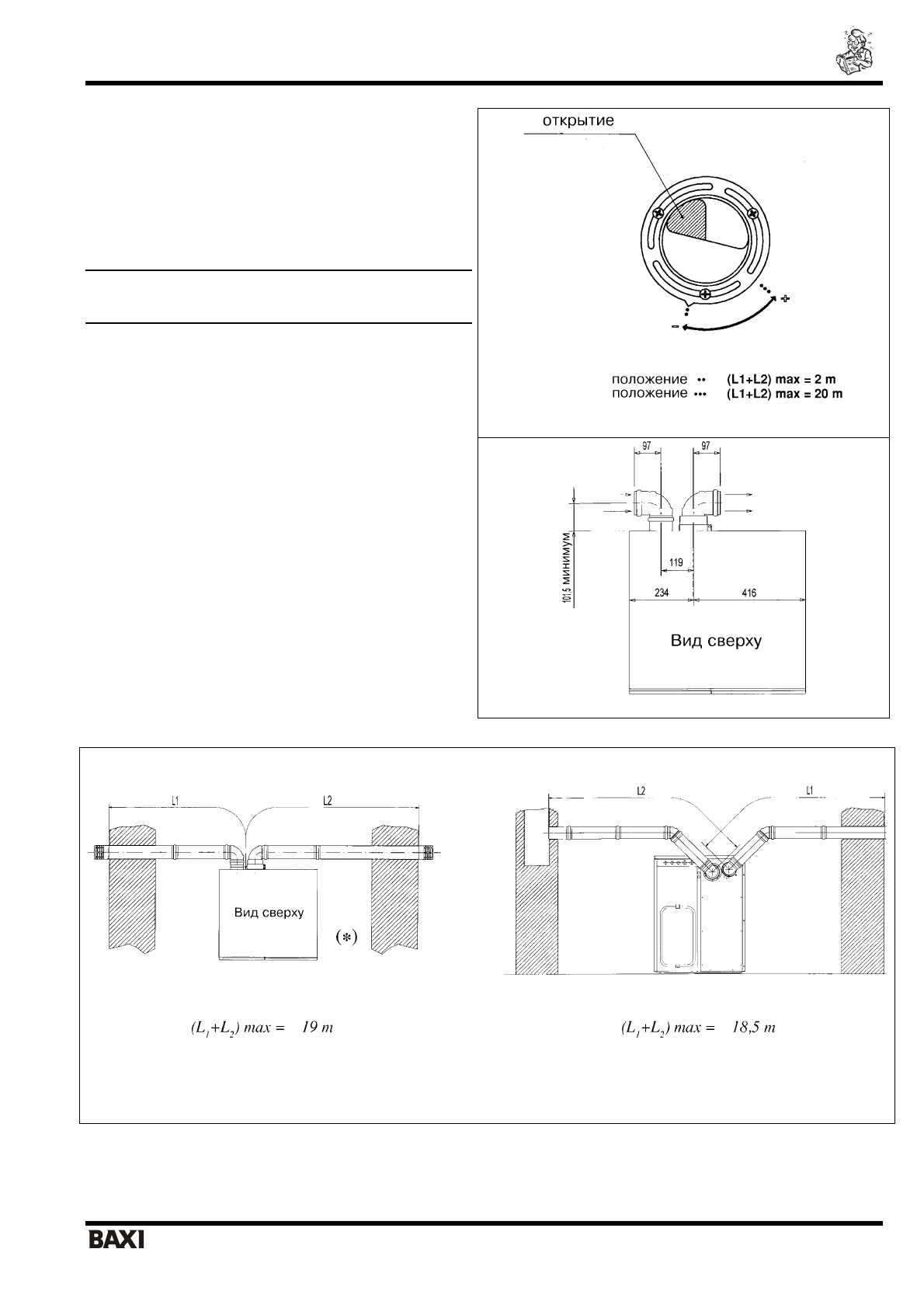
Рис
. 12
Регулировка
заслонки
подачи
воздуха
Регулировка
данной
заслонки
необходима
для
повышения
производительности
и
улучшения
параметров
горения
.
Поворачивая
патрубок
забора
воздуха
,
возможно
установить
нужное
количество
воздуха
в
зависимости
от
общей
длины
труб
забора
воздуха
и
отвода
продуктов
сгорания
.
Патрубок
забора
воздуха
должен
быть
установлен
с
указателем
,
повернутым
в
сторону
нижней
части
котла
(
см
.
рис
. 12)
Для
дальнейшего
улучшения
параметров
сгорания
можно
провести
анализ
продуктов
сгорания
на
количество
CO
2
в
отходящих
газах
при
максимальной
тепловой
мощности
,
после
чего
отрегулировать
заслонку
подачи
воздуха
,
доведя
содержание
CO
2
до
:
•
6,5%
для
природного
газа
(
метан
G20)
•
7%
для
сжиженного
газа
(G30 -G31)
Колено
90
°
позволяет
подсоединить
котел
к
трубам
забора
воздуха
–
отвода
продуктов
сгорания
в
любом
направлении
благодаря
возможности
вращения
на
180
°
.
Данное
колено
может
быть
также
использовано
как
дополнительное
для
коаксиальной
системы
или
для
колена
45
°
.
Каждое
колено
90
°
уменьшает
общую
длину
на
0,5
метра
.
Каждое
колено
45
°
уменьшает
общую
длину
на
0,25
метра
.
Рис
. 13
Примеры
установки
с
горизонтальными
раздельными
трубами
(*)
Оба
терминала
(
забора
воздуха
и
отвода
продуктов
сгорания
)
должны
быть
установлены
на
одной
и
той
же
стороне
здания
.
Рис
. 14
Характеристики
Остались вопросы?Не нашли свой ответ в руководстве или возникли другие проблемы? Задайте свой вопрос в форме ниже с подробным описанием вашей ситуации, чтобы другие люди и специалисты смогли дать на него ответ. Если вы знаете как решить проблему другого человека, пожалуйста, подскажите ему :)