Котел Baxi SLIM 1.400 iN - инструкция пользователя по применению, эксплуатации и установке на русском языке. Мы надеемся, она поможет вам решить возникшие у вас вопросы при эксплуатации техники.
Если остались вопросы, задайте их в комментариях после инструкции.
"Загружаем инструкцию", означает, что нужно подождать пока файл загрузится и можно будет его читать онлайн. Некоторые инструкции очень большие и время их появления зависит от вашей скорости интернета.

SLIM i – iN
руководство
для
технического
персонала
9
газовые
напольные
котлы
Руководство
для
технического
персонала
Нижеприведенные технические инструкции разработаны для установщиков, наладчиков и сервисных мастеров,
обслуживающих данный аппарат и, соответственно, содержат информацию по правильной установке, наладке, и
периодическому техническому обслуживанию котла
.
Инструкции по включению и использованию котла содержатся в первой части данного руководства.
Важная
информация
:
•
При перемещении котла без упаковки рекомендуется заклеить крышку панели управления скотчем, так как крышка
панели может случайно открыться и повредить части котла.
•
Элементы упаковки (пластиковые пакеты, полистирол и т.д.) необходимо беречь от детей, т.к. они представляют
собой потенциальный источник опасности.
•
Котлы поставляются на деревянном поддоне. При транспортировке и перемещении котла его следует держать
снизу только за поддон.
•
Для моделей 1.400 iN -1.490 iN -1.620 iN проверьте наличие картонных коробок с упакованными в них вытяжными
колпаками.
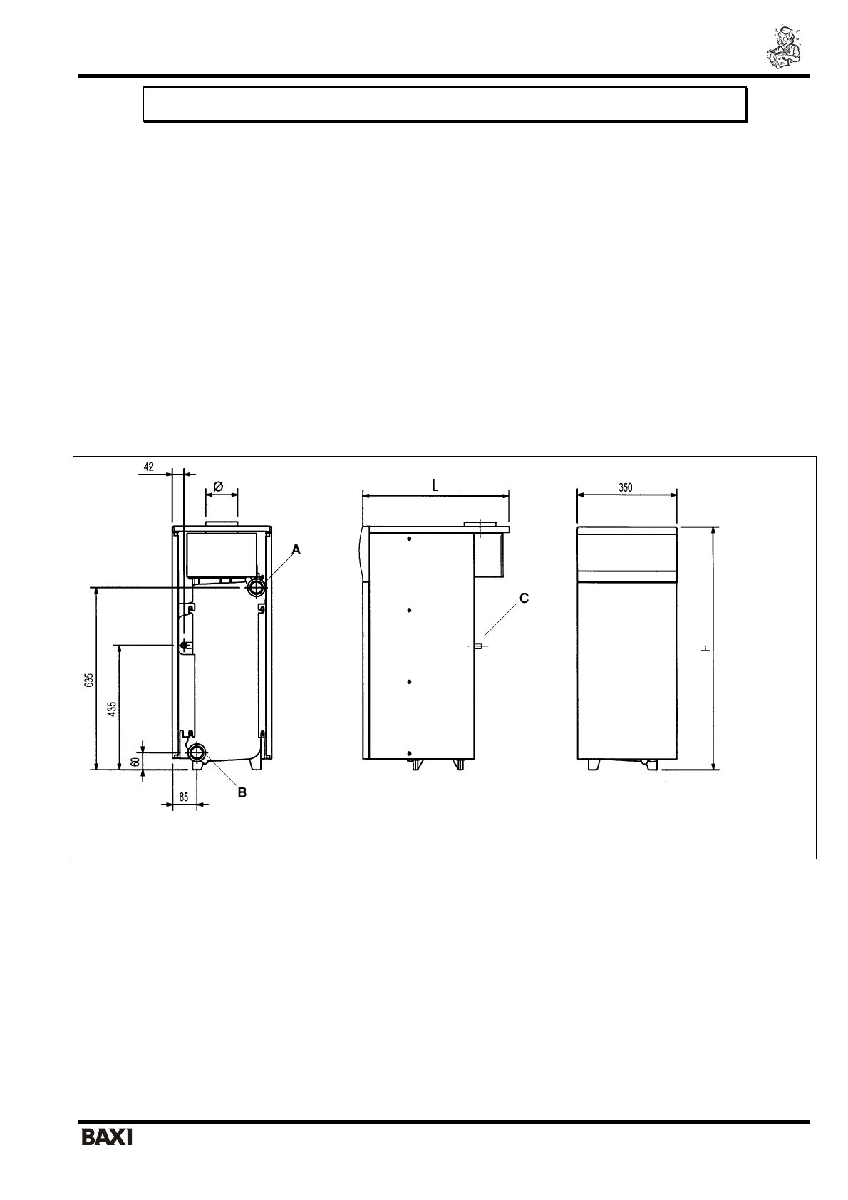
1.
Габаритные
размеры
котла
Модели
1.230 iN, 1.300iN
Рис
. 3:
Габаритные
размеры
для
моделей
1.230 iN, 1.300iN
H = 850
L = 600
680
Характеристики
Остались вопросы?Не нашли свой ответ в руководстве или возникли другие проблемы? Задайте свой вопрос в форме ниже с подробным описанием вашей ситуации, чтобы другие люди и специалисты смогли дать на него ответ. Если вы знаете как решить проблему другого человека, пожалуйста, подскажите ему :)