Котел Baxi Slim 1.400 iN / 1.490 iN / 1.620 iN - инструкция пользователя по применению, эксплуатации и установке на русском языке. Мы надеемся, она поможет вам решить возникшие у вас вопросы при эксплуатации техники.
Если остались вопросы, задайте их в комментариях после инструкции.
"Загружаем инструкцию", означает, что нужно подождать пока файл загрузится и можно будет его читать онлайн. Некоторые инструкции очень большие и время их появления зависит от вашей скорости интернета.

SLIM i - iN
Èíñòðóêöèè äëÿ òåõíè÷åñêîãî ïåðñîíàëà
6
Ãàçîâûå ÷óãóííûå êîòëû
Èíñòðóêöèè äëÿ òåõíè÷åñêîãî ïåðñîíàëà
Íèæåïðèâåäåííûå òåõíè÷åñêèå èíñòðóêöèè ðàçðàáîòàíû äëÿ óñòàíîâùèêîâ, íàëàä÷èêîâ è ñåðâèñíûõ ìàñòåðîâ, îáñëóæèâàþùèõ äàííûé àïïàðàò è,
ñîîòâåòñòâåííî, ñîäåðæàò èíôîðìàöèþ ïî ïðàâèëüíûì óñòàíîâêå, íàëàäêå, è ïåðèîäè÷åñêîìó òåõíè÷åñêîìó îáñëóæèâàíèþ êîòëà..
Èíñòðóêöèè ïî âêëþ÷åíèþ è èñïîëüçîâàíèþ êîòëà ñîäåðæàòñÿ â ïåðâîé ÷àñòè äàííîãî ðóêîâîäñòâà.
Âàæíàÿ èíôîðìàöèÿ:
•
Ïðè ïåðåìåùåíèè êîòëà áåç óïàêîâêè ðåêîìåíäóåòñÿ çàêëåèòü êðûøêó ïàíåëè óïðàâëåíèÿ ñêîò÷åì, òàê êàê êðûøêà ïàíåëè ìîæåò ñëó÷àéíî
îòêðûòüñÿ è ïîâðåäèòü ÷àñòè êîòëà.
•
Ýëåìåíòû óïàêîâêè (ïëàñòèêîâûå ïàêåòû, ïîëèñòèðîë è ò.ä.) íåîáõîäèìî áåðå÷ü îò äåòåé, ò.ê. îíè ïðåäñòàâëÿþò ñîáîé ïîòåíöèàëüíûé èñòî÷íèê
îïàñíîñòè.
•
Êîòëû ïîñòàâëÿþòñÿ íà äåðåâÿííîì ïîääîíå. Ïðè òðàíñïîðòèðîâêå è ïåðåìåùåíèè êîòëà åãî ñëåäóåò äåðæàòü ñíèçó òîëüêî çà ïîääîí.
b
ðèñóíîê 3
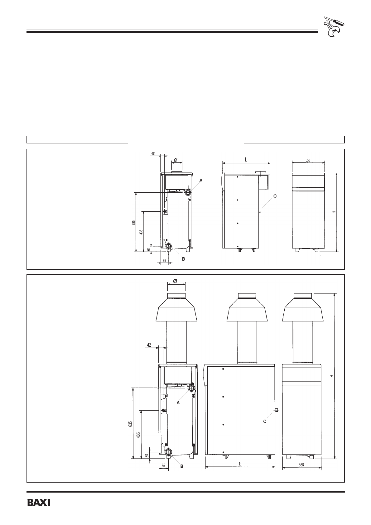
1. Ãàáàðèòíûå ðàçìåðû êîòëà
ðèñóíîê 4
Ìîäåëè 1.230 iN, 1.300 iN
Ìîäåëè 1.400 iN, 1.490 iN, 1.620 iN