Котел BAXI SLIM 1.300 Fi WSB43530301 - инструкция пользователя по применению, эксплуатации и установке на русском языке. Мы надеемся, она поможет вам решить возникшие у вас вопросы при эксплуатации техники.
Если остались вопросы, задайте их в комментариях после инструкции.
"Загружаем инструкцию", означает, что нужно подождать пока файл загрузится и можно будет его читать онлайн. Некоторые инструкции очень большие и время их появления зависит от вашей скорости интернета.

SLIM Fi – FiN
руководство
для
технического
персонала
9
газовые
напольные
котлы
Руководство
для
технического
персонала
Нижеприведенные
технические
инструкции
разработаны
для
установщиков
,
наладчиков
и
сервисных
мастеров
,
обслуживающих
данный
аппарат
и
,
соответственно
,
содержат
информацию
по
правильной
установке
,
наладке
,
и
периодическому
техническому
обслуживанию
котла
.
Инструкции
по
включению
и
использованию
котла
содержатся
в
первой
части
данного
руководства
.
Важная
информация
:
•
При
перемещении
котла
без
упаковки
рекомендуется
заклеить
крышку
панели
управления
скотчем
,
так
как
крышка
панели
может
случайно
открыться
и
повредить
части
котла
.
•
Элементы
упаковки
(
пластиковые
пакеты
,
полистирол
и
т
.
д
.)
необходимо
беречь
от
детей
,
т
.
к
.
они
представляют
собой
потенциальный
источник
опасности
.
•
Котлы
поставляются
на
деревянном
поддоне
.
При
транспортировке
и
перемещении
котла
его
следует
держать
снизу
только
за
поддон
.
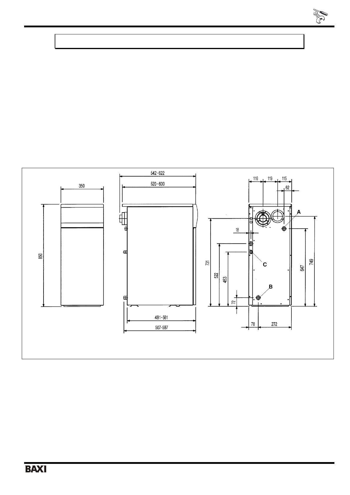
1.
Габаритные
размеры
котла
Модели
1.230 FiN, 1.300 FiN
Вид
спереди
Вид
сбоку
Вид
сзади
Рис
. 3:
Габаритные
размеры
для
моделей
1.230 FiN, 1.300 FiN