Котел BAXI SLIM 1.300 Fi WSB43530301 - инструкция пользователя по применению, эксплуатации и установке на русском языке. Мы надеемся, она поможет вам решить возникшие у вас вопросы при эксплуатации техники.
Если остались вопросы, задайте их в комментариях после инструкции.
"Загружаем инструкцию", означает, что нужно подождать пока файл загрузится и можно будет его читать онлайн. Некоторые инструкции очень большие и время их появления зависит от вашей скорости интернета.

SLIM Fi – FiN
руководство
для
технического
персонала
17
газовые
напольные
котлы
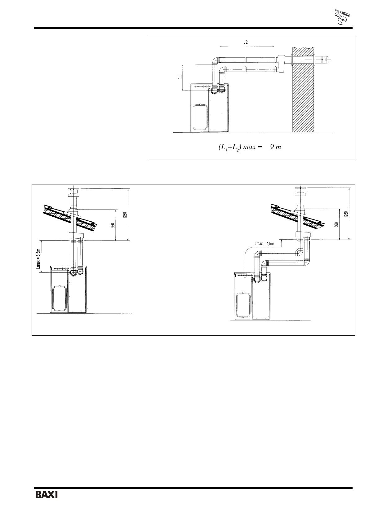
Длина
дымоотводящей
трубы
никогда
не
должны
превышать
10
м
при
колене
90º.
При
длине
трубы
более
6
м
труба
вместе
с
коленами
по
всей
длине
должна
быть
надежно
изолирована
.
Рис
. 15
Примеры
установки
с
вертикальными
раздельными
трубами
Внимание
:
отдельный
канал
для
отвода
продуктов
сгорания
должен
быть
надежно
изолирован
в
точках
соприкосновения
со
стенами
помещения
(
например
,
стекловолокном
).
Более
подробная
информация
по
монтажу
данных
аксессуаров
изложена
в
прилагаемых
к
ним
инструкциях
.
Рис
. 16
5.
Электрическое
присоединение
котла
Котлы
поставляются
с
выполненными
электрическими
соединениями
и
кабелем
электропитания
.
Безопасность
электрического
присоединения
достигается
только
при
правильном
и
надежном
заземлении
устройства
.
Котел
должен
быть
присоединен
к
сети
с
однофазным
напряжением
230
В
и
заземлен
при
помощи
прилагаемого
кабеля
из
трех
проводов
с
соблюдением
полярности
фаз
:
фаза
(L) -
нейтраль
(N)
.
Присоединение
должно
быть
выполнено
при
помощи
двухполюсного
выключателя
с
расстоянием
между
разомкнутыми
контактами
не
менее
3
мм
.
При
замене
кабеля
питания
необходимо
использовать
кабель
с
медными
жилами
3x1
мм
2
с
максимальным
внешним
диаметром
8
мм
или
кабель
с
аналогичными
характеристиками
.
При
возможных
перепадах
(
скачках
)
напряжения
в
сети
электропитания
настоятельно
рекомендуем
установить
перед
котлом
стабилизатор
напряжения
.
Это
позволит
избежать
связанных
с
перепадами
напряжения
блокировок
котла
или
даже
выхода
из
строя
электронных
плат
.
Зная
параметры
местных
электросетей
,
местный
сервисный
центр
в
отдельных
случаях
вправе
требовать
обязательную
установку
стабилизатора
напряжения
.