Котел Baxi ECO 240 Fi (i) / 280 Fi (i) - инструкция пользователя по применению, эксплуатации и установке на русском языке. Мы надеемся, она поможет вам решить возникшие у вас вопросы при эксплуатации техники.
Если остались вопросы, задайте их в комментариях после инструкции.
"Загружаем инструкцию", означает, что нужно подождать пока файл загрузится и можно будет его читать онлайн. Некоторые инструкции очень большие и время их появления зависит от вашей скорости интернета.

ECO i – Fi
руководство
для
технического
персонала
12
газовые
настенные
котлы
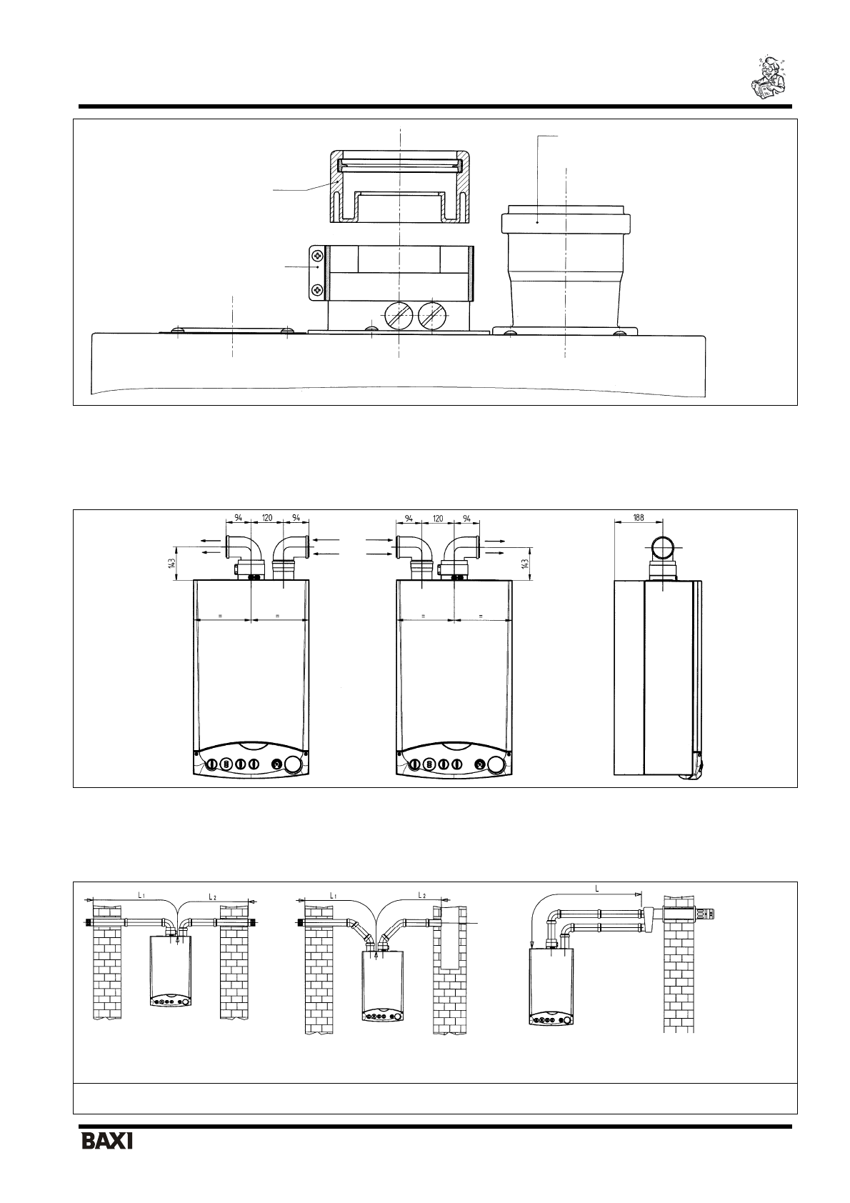
Колено
90°
позволяет
присоединять
котел
к
дымоходу
в
любом
направлении
,
поскольку
оно
может
поворачиваться
на
360°.
Кроме
того
,
колено
90°
может
использоваться
в
качестве
дополнительного
в
сочетании
с
дополнительной
трубой
или
с
коленом
45°.
Колено
90°
сокращает
максимально
возможную
длину
труб
на
0,5
м
.
Колено
45°
сокращает
максимально
возможную
длину
труб
на
0,25
м
.
Варианты
дымоотводящей
системы
по
раздельным
трубам
с
горизонтальными
наконечниками
Обратите
внимание
!
Необходимо
обеспечить
горизонтальный
наклон
труб
в
наружную
сторону
не
менее
1
см
на
каждый
метр
длины
.
При
установке
комплекта
для
сбора
конденсата
дренажная
труба
должна
быть
наклонена
в
сторону
котла
.
Общая
длина
труб
притока
воздуха
не
должна
превышать
10
метров
.
При
длине
дымохода
более
6
м
комплект
для
сбора
конденсата
(
поставляется
дополнительно
)
должен
монтироваться
в
непосредственной
близости
от
котла
.
переходник
воздуховода
(
трубы
подачи
воздуха
)
переходник
дымохода
зажим
(L1+L2)max = 30
м
ECO 1.240 Fi – 240 Fi
(L1+L2)max = 25
м
ECO 280 Fi
Lmax = 10
м
ECO 1.240 Fi – 240 Fi
Lmax = 8
м
ECO 280 Fi