Котел ATON АОГВМНД-12,5Е - инструкция пользователя по применению, эксплуатации и установке на русском языке. Мы надеемся, она поможет вам решить возникшие у вас вопросы при эксплуатации техники.
Если остались вопросы, задайте их в комментариях после инструкции.
"Загружаем инструкцию", означает, что нужно подождать пока файл загрузится и можно будет его читать онлайн. Некоторые инструкции очень большие и время их появления зависит от вашей скорости интернета.

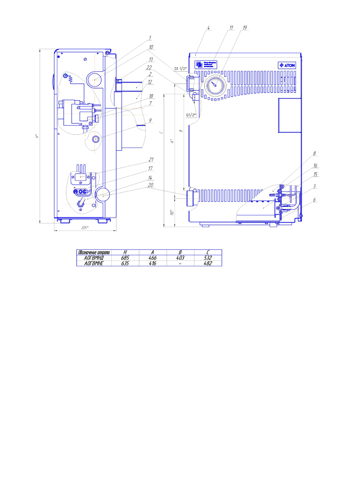
1-
теплообменник;
2-
воздуховод;
3-
форсунка
4-
кожух;
5-
панель боковая;
6-
прокладка;
7-
газовый клапан
автоматики фирмы
"SIT Group";
8-
камера сгорания;
9-
подводной патрубок
водонагревателя;
10-
отводной патрубок
теплоносителя;
11-
проушина;
12-
дымоход;
13-
уплотнитель;
14-
фронтальный лист;
15-
основная горелка;
16-
пилотная горелка;
17-
термопара;
18-
газоподводящий
патрубок;
19-
указатель
температуры;
20-
подводной патрубок
теплоносителя;
21-
смотровое окно;
22-
отводящий патрубок
водонагревателя.
Рисунок 1 - Схема котла АОГВМНД -*ЕВ и АОГВМНЕ -7ЕВ.
19













