Ariston UNOBLOC G 45 RI - Инструкция по эксплуатации - Страница 14

Котел Ariston UNOBLOC G 45 RI - инструкция пользователя по применению, эксплуатации и установке на русском языке. Мы надеемся, она поможет вам решить возникшие у вас вопросы при эксплуатации техники.

Если остались вопросы, задайте их в комментариях после инструкции.

"Загружаем инструкцию", означает, что нужно подождать пока файл загрузится и можно будет его читать онлайн. Некоторые инструкции очень большие и время их появления зависит от вашей скорости интернета.
Страница:
/ 47
Загружаем инструкцию
background image

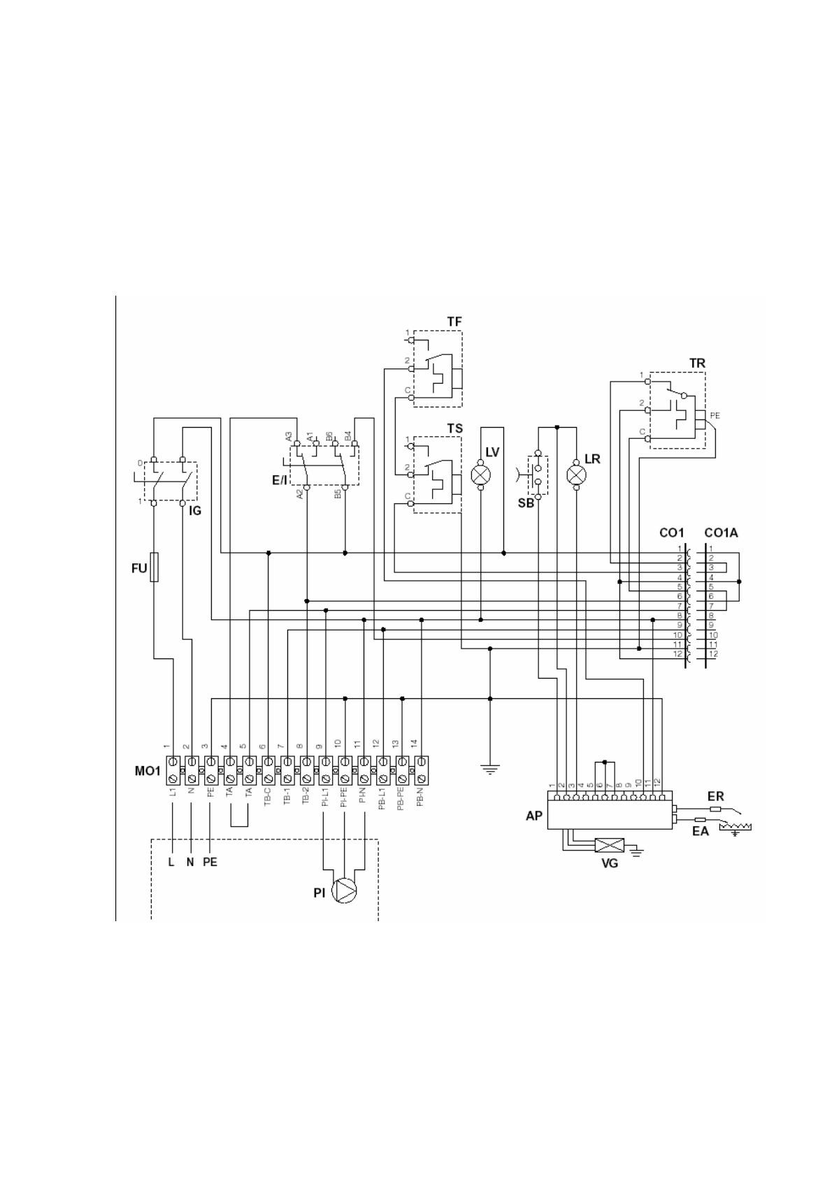
PR1 - 

 

AP –  

 

   

 

  

ER – 

 

ɤ

ɨ

ɧ

ɬ

ɪ

ɨ

ɥ

ɹ

 

  

EA – 

 

  

VG – 

 

  

PI - 

 

ɫ

ɢ

ɫ

ɬ

ɟ

ɦ

ɵ

ɨ

ɬ

ɨ

ɩ

ɥ

ɟ

ɧ

ɢ

ɹ

MO1- 

 

  

 

UNOBLOC G 38 RI   G 45 RI 

 

 
IG – 

ȼ

ɷ

ɥ

ɟ

ɤ

ɬ

ɪ

ɨ

ɩ

ɢ

ɬ

ɚ

ɧ

ɢ

ɹ

  

FU - 

 (6,3 A) 

E/I – 

 

/

  

TF – 

 

 

 ɬ

ɹ

ɝ

ɢ

 

TS – 

 

 

ɩ

ɪ

ɟ

ɞ

ɟ

ɥ

ɶ

ɧ

ɨ

ɣ

ɬ

ɟ

ɦ

ɩ

ɟ

ɪ

ɚ

ɬ

ɭ

ɪ

ɵ

 (110°C 0/-6) (*) 

Полезные видео

Характеристики

Оцените статью
tehnopanorama.ru
Остались вопросы?

Не нашли свой ответ в руководстве или возникли другие проблемы? Задайте свой вопрос в форме ниже с подробным описанием вашей ситуации, чтобы другие люди и специалисты смогли дать на него ответ. Если вы знаете как решить проблему другого человека, пожалуйста, подскажите ему :)

Задать вопрос

Часто задаваемые вопросы
Как посмотреть инструкцию к Ariston UNOBLOC G 45 RI?
Необходимо подождать полной загрузки инструкции в сером окне на данной странице
Руководство на русском языке?
Все наши руководства представлены на русском языке или схематично, поэтому вы без труда сможете разобраться с вашей моделью
Как скопировать текст из PDF?
Чтобы скопировать текст со страницы инструкции воспользуйтесь вкладкой "HTML"