Ariston UNOBLOC G 45 RI - Инструкция по эксплуатации - Страница 10

Котел Ariston UNOBLOC G 45 RI - инструкция пользователя по применению, эксплуатации и установке на русском языке. Мы надеемся, она поможет вам решить возникшие у вас вопросы при эксплуатации техники.

Если остались вопросы, задайте их в комментариях после инструкции.

"Загружаем инструкцию", означает, что нужно подождать пока файл загрузится и можно будет его читать онлайн. Некоторые инструкции очень большие и время их появления зависит от вашей скорости интернета.
Страница:
/ 47
Загружаем инструкцию
background image

 

 

 

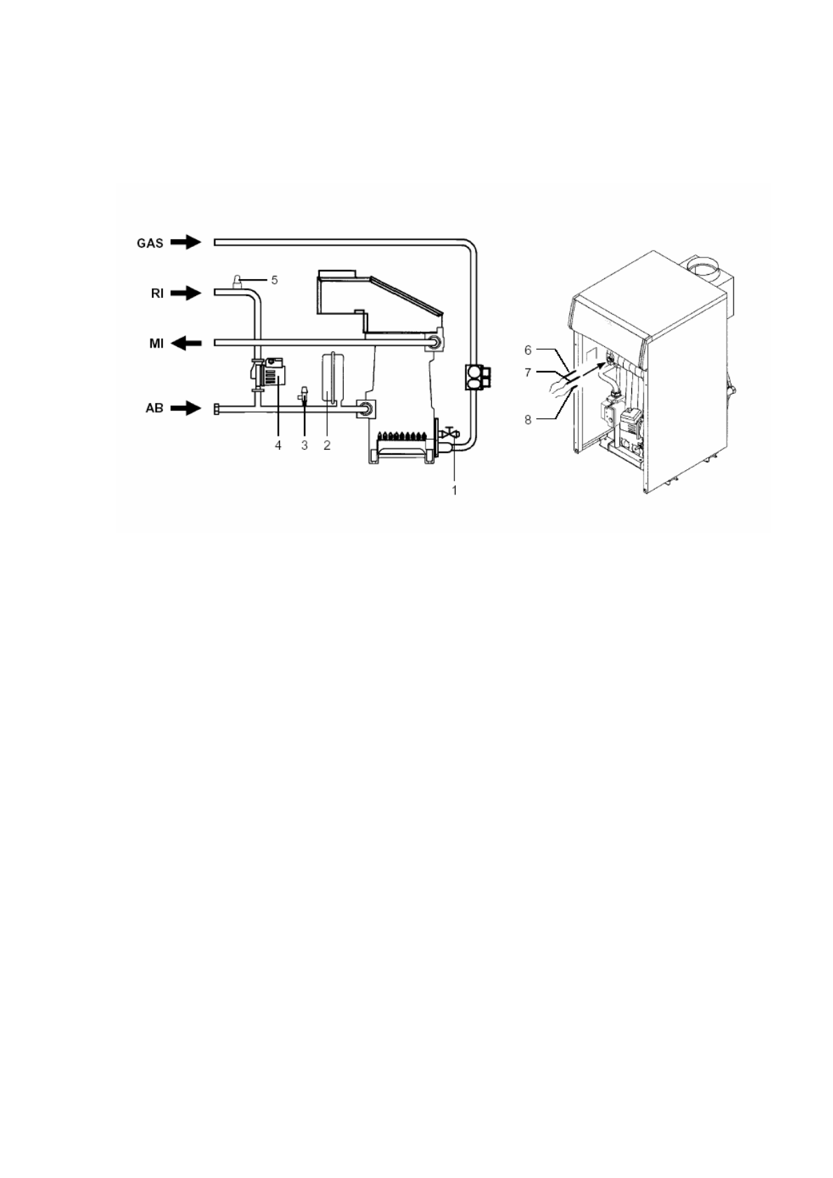
UNOBLOC G PV 24 RI 

 

 GPV 31 RI 

 

MI - 

 

   

  

RI - 

  

AB - 

 

 

 

  

GAS - 

 

  

1 – 

 

  

2 – 

 

  

3 – 

ɋ

ɛ

ɪ

ɨ

ɫ

ɧ

ɨ

ɣ

  

4 – 

ɧ

  

5 – 

  

6 – 

ɬ

 

 

  

7 – 

 

 

  

8 – 

 

 

 

 

 
 
 
 
 
 
 
 
 
 
 
 
 
 
 
 
 
 
 
 

Полезные видео

Характеристики

Оцените статью
tehnopanorama.ru
Остались вопросы?

Не нашли свой ответ в руководстве или возникли другие проблемы? Задайте свой вопрос в форме ниже с подробным описанием вашей ситуации, чтобы другие люди и специалисты смогли дать на него ответ. Если вы знаете как решить проблему другого человека, пожалуйста, подскажите ему :)

Задать вопрос

Часто задаваемые вопросы
Как посмотреть инструкцию к Ariston UNOBLOC G 45 RI?
Необходимо подождать полной загрузки инструкции в сером окне на данной странице
Руководство на русском языке?
Все наши руководства представлены на русском языке или схематично, поэтому вы без труда сможете разобраться с вашей моделью
Как скопировать текст из PDF?
Чтобы скопировать текст со страницы инструкции воспользуйтесь вкладкой "HTML"