Котел Altep Duo Plus 50 36005 - инструкция пользователя по применению, эксплуатации и установке на русском языке. Мы надеемся, она поможет вам решить возникшие у вас вопросы при эксплуатации техники.
Если остались вопросы, задайте их в комментариях после инструкции.
"Загружаем инструкцию", означает, что нужно подождать пока файл загрузится и можно будет его читать онлайн. Некоторые инструкции очень большие и время их появления зависит от вашей скорости интернета.

5
3
Назначение
котла
Котлы предназначены для отопления бытовых, производственных и других
помещений, в которых оборудована система центрального отопления, для подготовки и
подачи тепла на технологические нужды с использованием в качестве топлива дров,
древесных отходов, каменного угля, опилочных и торфяных брикетов, кускового
торфа.
Конструкция котла позволяет максимально эффективно использовать тепло,
выделяемое при сжигании различных видов низкокалорийного твердого топлива, при
этом наибольшая теплопроизводительность котла достигается при сжигании
антрацита.
Продолжительность сгорания разовой загрузки топлива напрямую зависит от вида и
качества топлива и тепловых потерь отапливаемого объекта.
Эксплуатация котла возможна только в режиме ручной подачи твердого топлива.
4
Технические характеристики
котлов
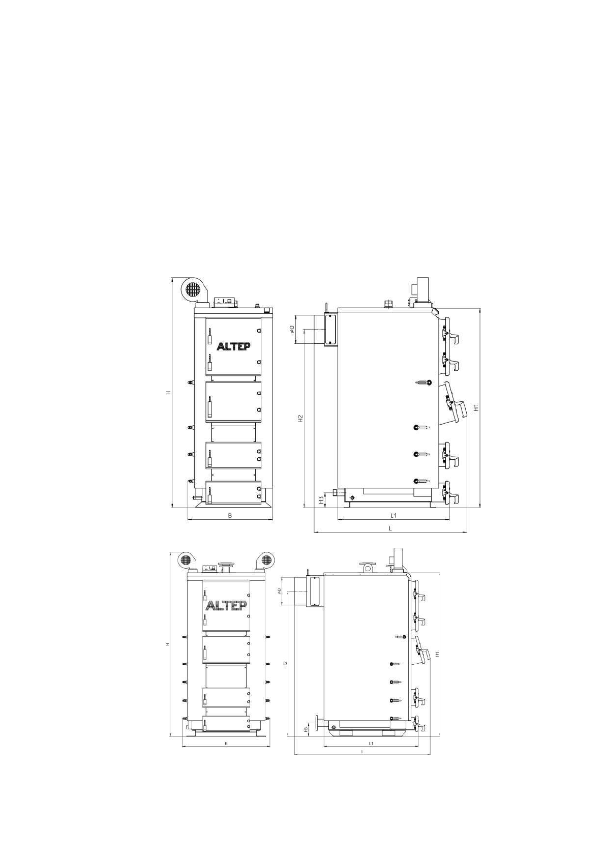
Основные технические характеристики котлов типа КТ
-
2Е (рисунок 1) приведены в
таблице 1.
50-
120 кВт
150-
250 кВт
Рисунок 1
–
Габаритный чертёж котла типа КТ
-
2Е
тепло-хорошо.рф