Котел AEG GBT 228 - инструкция пользователя по применению, эксплуатации и установке на русском языке. Мы надеемся, она поможет вам решить возникшие у вас вопросы при эксплуатации техники.
Если остались вопросы, задайте их в комментариях после инструкции.
"Загружаем инструкцию", означает, что нужно подождать пока файл загрузится и можно будет его читать онлайн. Некоторые инструкции очень большие и время их появления зависит от вашей скорости интернета.

ИНСТРУКЦИЯ ПО УСТАНОВКЕ
6
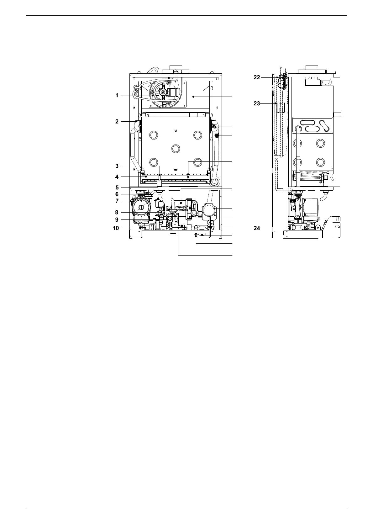
2.3
Внутренние
компоненты
котла
УСЛОВНЫЕ
ОБОЗНАЧЕНИЯ
1.
ВЕНТИЛЯТОР
2.
ТЕПЛООБМЕННИК
3.
ЭЛЕКТРОД
РОЗЖИГА
4.
ГОРЕЛКА
5.
ДАТЧИК
ГОРЯЧЕГО
ВОДОСНАБЖЕНИЯ
6.
ПРОДУВОЧНЫЙ
ВОЗДУШНЫЙ
КЛАПАН
7.
ЦИРКУЛЯЦИОННЫЙ
НАСОС
8.
ПРЕДОХРАНИТЕЛЬНЫЙ
КЛАПАН
НА
3
БАР
9.
ЭЛЕКТРОМАГНИТНЫЙ
ГАЗОВЫЙ
КЛАПАН
10.
СПУСКНОЙ
КЛАПАН
11.
КОЖУХ
ДЫМОХОДА
12.
ТЕРМОСТАТ
С
ЗАЩИТОЙ
ОТ
ОТРАБОТАННЫХ
ГАЗОВ
75° C
13.
ДАТЧИК
НАГРЕВА
14.
ЭЛЕКТРОД
ИОНИЗАЦИИ
15.
ТЕПЛООБМЕННИК
ПЛАСТИНЧАТЫЙ
16.
КЛАПАН
РЕГУЛИРУЮЩИЙ
17.
РЕЛЕ
РАСХОДА
ВОДЫ
18.
РЕЛЕ
ДАВЛЕНИЯ
В
КОНТУРЕ
ОТОПЛЕНИЯ
19.
МАНОМЕТР
20.
КРАН
ПОДПИТКИ
21.
ТРАНСФОРМАТОР
22.
РЕЛЕ
ДАВЛЕНИЯ
ВОЗДУХА
(
ПРЕССОСТАТ
)
23.
РАСШИРИТЕЛЬНЫЙ
БАК
24.
БАЙПАС
12
14
11
15
16
17
18
19
20
13
21
Содержание
- 3 Техническое; уполномоченный
- 4 ОБЩАЯ; Общие
- 6 Соответствие; STIEBEL ELTRON AEG; CE; Stiebel Eltron AEG
- 7 ТЕХНИЧЕСКИЕ; Технические
- 8 Размеры
- 9 Внутренние; УСЛОВНЫЕ
- 10 Гидравлическая
- 11 График
- 12 Печатная; Панель
- 13 УСТАНОВКА; IPX4D
- 14 Распаковка; Stiebel
- 15 Установка
- 16 Гидравлические; HF
- 17 Подключение
- 18 Электрические; Stiebel Eltron AEG.
- 19 Ta; Рис
- 20 Монтаж
- 21 Тип
- 22 МАКСИМАЛЬНАЯ; Максимальная; ПРИМЕЧАНИЕ
- 24 Регулируемые; дымохода
- 25 Комплект
- 26 Настройка
- 27 ВВОД; Предварительные
- 28 Заполнение; bar
- 29 Промывка
- 30 Запуск; W INTER
- 31 РЕГУЛИРОВКА; Таблица
- 32 OFF
- 33 ВЫКЛ
- 37 Регулировка; см; минимального
- 39 Данные; ть
- 40 ТЕХНИЧЕСКОЕ
- 41 Доступ
- 42 Слив; системы
- 43 Монтажные
- 44 Пример; Датчик
- 45 TA–TA
- 46 код; тр
- 47 ко
- 48 Tm
- 50 Диагностика; Коды; Код
- 51 Список; Основные; КОД; SIT
- 54 Почувствовав; Органы
- 55 Нажмите; Управление
- 56 Подпитка
- 57 Обезопасьте












