Кондиционеры Timberk T-PAC09-P09E - инструкция пользователя по применению, эксплуатации и установке на русском языке. Мы надеемся, она поможет вам решить возникшие у вас вопросы при эксплуатации техники.
Если остались вопросы, задайте их в комментариях после инструкции.
"Загружаем инструкцию", означает, что нужно подождать пока файл загрузится и можно будет его читать онлайн. Некоторые инструкции очень большие и время их появления зависит от вашей скорости интернета.

IM2020
14
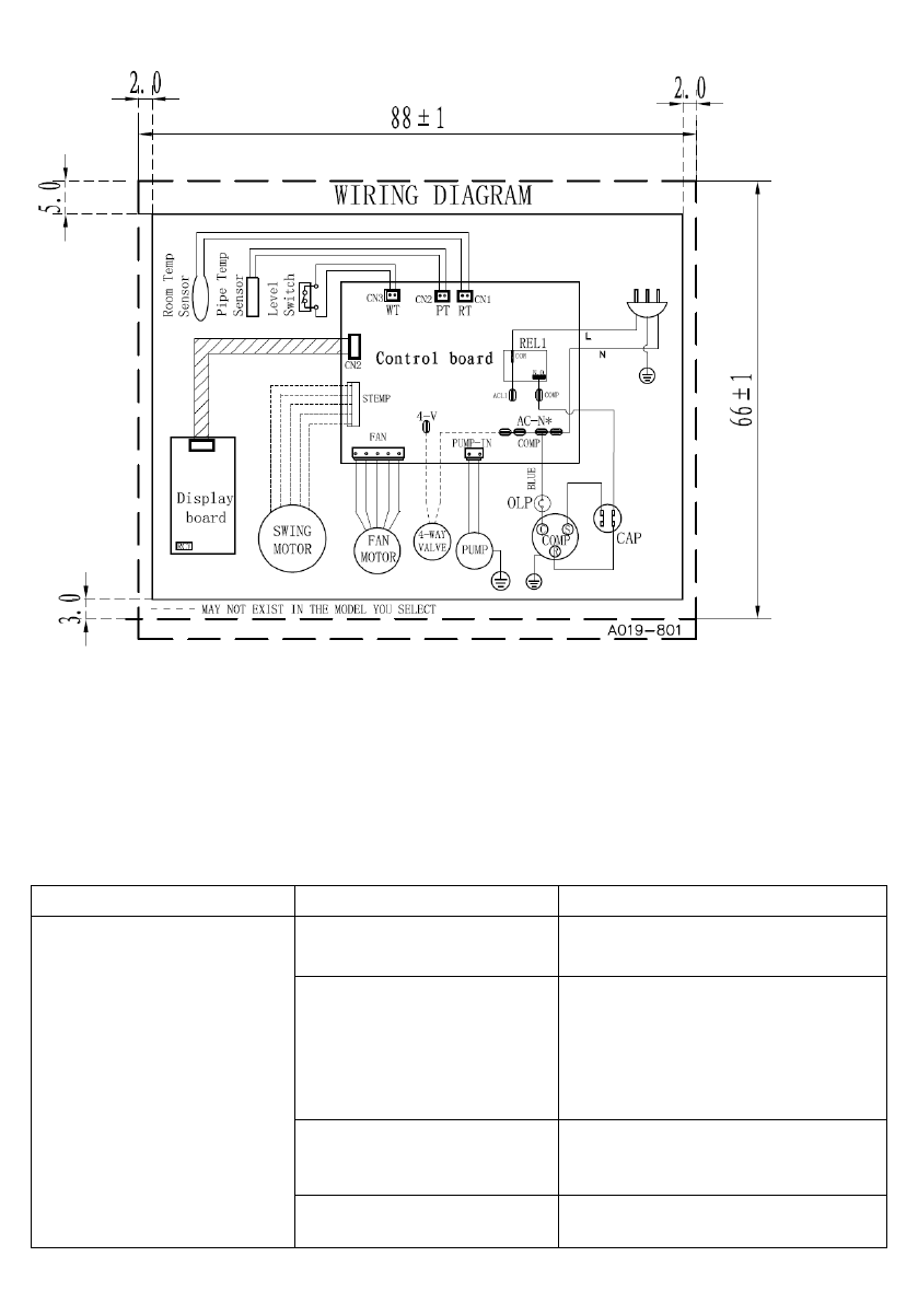
11. WIRING DIAGRAMS
12. TROUBLESHOOTING
In case of emergency, please, use the troubleshooting methods shown in table. If it is impossible
to solve problems with these methods, contact the authorized service center.
Failures and their possible reasons:
Failure
Possible reason
Actions
The appliance does not
operate
Power failure
Wait for restoration of
power supply
The remote control
batteries have run out
Replace remote control batteries.
Do not throw batteries into
common trash cans, the
batteries should be disposed of
in the special containers
situated in the collection points.
Active TIMER-ON function
Wait untill the air conditioner will
turn on by timer or cancel the timer
setting
Device is filled with
condensate
Darin the condensate for the
device (see “Maintenance”)
Характеристики
Остались вопросы?Не нашли свой ответ в руководстве или возникли другие проблемы? Задайте свой вопрос в форме ниже с подробным описанием вашей ситуации, чтобы другие люди и специалисты смогли дать на него ответ. Если вы знаете как решить проблему другого человека, пожалуйста, подскажите ему :)