Кондиционеры Mitsubishi Electric MSZ-DM50VA/MUZ-DM50VA 01-211-301-0-501-083 - инструкция пользователя по применению, эксплуатации и установке на русском языке. Мы надеемся, она поможет вам решить возникшие у вас вопросы при эксплуатации техники.
Если остались вопросы, задайте их в комментариях после инструкции.
"Загружаем инструкцию", означает, что нужно подождать пока файл загрузится и можно будет его читать онлайн. Некоторые инструкции очень большие и время их появления зависит от вашей скорости интернета.

41
Бытовые сплит-системы «М-серии» ― КЛАССИК инвертор
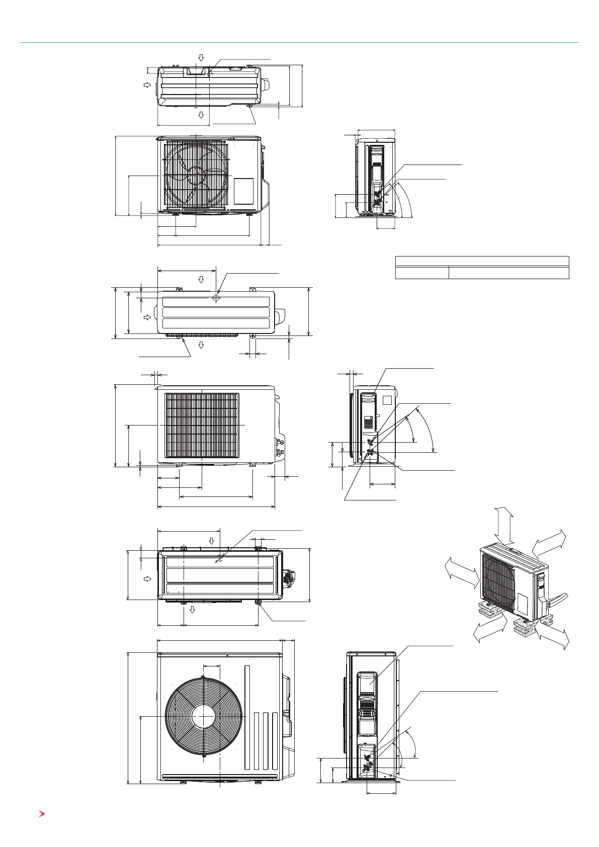
Размеры наружных блоков
НАРУЖНЫЕ БЛОКИ:
MUZ-DM25VA
MUZ-DM35VA
НАРУЖНЫЕ БЛОКИ:
MUZ-DM60VA
MUZ-DM71VA
НАРУЖНЫЙ БЛОК:
MUZ-DM50VA
20 г/м × (длина трубы хладагента (м) – 7)
MUZ-DM25~71VA
Дозаправка хладагента (R410A)
ПРОСТРАНСТВО ДЛЯ УСТАНОВКИ
Более 100 мм
Более 100 мм
Более 100 мм
Более 350 мм
41,5
270,3
157,7
43°
40°
102,7
13,5
538
Вход
воздуха
349,5
55,7
121,4
249
17,9
699
500
121
259
294~267
между болтами
крепления
285
19,6
Фреонопровод (жидкость):
Ø6.35 (вальцовка)
Фреонопровод (газ):
Ø9.52 (вальцовка)
Дренажное отв. Ø33
2 отв. 10,3 × 19,3
Выход воздуха
10
69
800
302,5
500
150
22,3
550
280
164,5
99,5
170,5
23
Сервисная панель
Сервисный штуцер
285
344,5
44
400
Вход воздуха
Выход воздуха
Вход
воздуха
17,5
Болты
крепления 304-325
40
Фреонопровод
(жидкость):
Ø6,35 (вальцовка)
Фреонопровод (газ):
Ø12,7 (вальцовка)
2 отв. 10x21
Дренажное отв. Ø42
Вход воздуха
Вход
воздуха
Выход воздуха
Сервисная панель
Фреонопровод (жидкость):
MUZ-DM60 — Ø6,35 (вальцовка)
MUZ-DM71 — Ø9,52 (вальцовка)
Фреонопровод (газ):
Ø15,88 (вальцовка)
Дренажное отв. Ø42
2 отв. 10×21
417,5
40
175
500 (крепление)
330
50
360
840
109
81
880
452
99,5
164,5
195
Вход воздуха
43°
35°
44°
35°
Примечание.
Размеры наружных блоков
мультисистем MXZ-2DM40VA и
MXZ-3DM50VA, а также
пространство, необходимое для
установки и сервисного
обслуживания, приведены в
разделе «Мультисистемы с
инвертором» на стр. 64.
MUZ-DM25~50 — 200 мм
MUZ-DM60, 71 — 500 мм