Кондиционеры Midea MTB-36HWN1-R/MOU-36HN1-R - инструкция пользователя по применению, эксплуатации и установке на русском языке. Мы надеемся, она поможет вам решить возникшие у вас вопросы при эксплуатации техники.
Если остались вопросы, задайте их в комментариях после инструкции.
"Загружаем инструкцию", означает, что нужно подождать пока файл загрузится и можно будет его читать онлайн. Некоторые инструкции очень большие и время их появления зависит от вашей скорости интернета.

Инструкция по монтажу
6
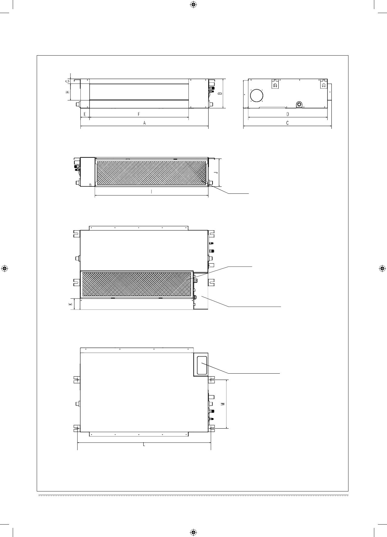
Расположение отверстия в потолке, внутреннего блока и монтажных болтов
При установке см. монтажные размеры для внутреннего блока, указанные на рис. 5-8 и в табл. 5-1.
Габаритные размеры и размер воздуховыпускного отверстия
Единица измерения: мм
Размер воздухозаборного отверстия
Расположение и габариты воздухозаборного
отверстия, направленного вниз
Крепежные размеры
Воздушный фильтр
Воздушный фильтр
Распределительная коробка
Распределительная коробка
Рис. 5-8













