Кондиционеры Candy ACI-12HTR03/R3 - инструкция пользователя по применению, эксплуатации и установке на русском языке. Мы надеемся, она поможет вам решить возникшие у вас вопросы при эксплуатации техники.
Если остались вопросы, задайте их в комментариях после инструкции.
"Загружаем инструкцию", означает, что нужно подождать пока файл загрузится и можно будет его читать онлайн. Некоторые инструкции очень большие и время их появления зависит от вашей скорости интернета.

ACI-07HTR03/R3-OUT/ACI-09HTR03/R3-OUT
1
20
15
1
20
30
ACI-12HTR03/R3-OUT
1
20
15
1.5
20
30
1
25
20
2.5
25
30
Для модели
ACI-24HTR03/R3-OUT
ACI-18HTR03/R3-OUT/ACI-18HTR103/R3-OUT
ACI-24HTR03/R3-OUT
Модель
наружного блока
ACI-07HTR03/R3-OUT
ACI-09HTR03/R3-OUT
Межблочный кабель
4G1.0 мм
Сетевой кабель
1(N
)
2(L
)
3(
C)
1
2
3(C)
7k
9k
:
4 G1.0 мм
2
3G1.0 мм
2
9k
:
сетевой кабель
4G1.0 мм
2
3G .5 мм
2
Для модели
ACI-18HTR03/R3-OUT/ACI-18HTR103/R3-OUT
{
4G1.0 мм
2
3G2.5 мм
2
Сетевой кабель
12k
:
4G1.5 мм
2
ACI-12HTR03/R3-OUT
²
3G1.0 мм²
ACI-18HTR03/R3-OUT
ACI-18HTR103/R3-OUT
ACI-24HTR03/R3-OUT
4G1.5 мм²
3G1.5 мм²
4G1.0 мм²
3G2.5 мм²
3G1.5 мм
2
12K
:
сетевой кабель
Сетевой кабель
ОПАСНО!
СУЩЕСТВУЕТ ОПАСНОСТЬ НАНЕСЕНИЯ ВРЕДА ЗДОРОВЬЮ ИЛИ ДАЖЕ СМЕРТЕЛЬНОГО ИСХОДА
ПЕРЕД ВЫПОЛНЕНИЕМ ЛЮБЫХ ЭЛЕКТРОМОНТАЖНЫХ РАБОТ ОТКЛЮЧИТЕ КОНДИЦИОНЕР РУБИЛЬНИКОМ ОТ
ИСТОЧНИКА ЭЛЕКТРОПИТАНИЯ.
ПЕРЕД ПОДКЛЮЧЕНИЕМ СИЛОВОЙ ЛИНИИ ОБЯЗАТЕЛЬНО СДЕЛАЙТЕ ЗАЗЕМЛЕНИЕ.
Требования при проведении электромонтажных работ
Электромонтажные работы должны выполняться только квалифицированными специалистами, уполномоченными на проведение таких работ.
К одному контактному блоку на клеммной колодке нельзя подключать более трех проводов. На концах подсоединяемых к клеммам проводов должны
быть сделаны обжимные контактные петли, провод должен быть зафиксирован изолированным кабельным зажимом.
Необходимо использовать только медные провода.
Выбор сечения сетевого и межблочного кабелей
Рекомендуемые сечения кабелей и номиналы предохранителей приведены в таблице (исходя из кабеля длиной 20 м при колебаниях напряжения в сети
менее 2%).
При повреждении кабеля он должен заменяться на однотипный. Замену должны осуществлять производитель оборудования, представитель его
авторизованного сервисного центра или уполномоченный квалифицированный специалист.
Электроподключение кондиционера должно выполняться в соответствии с действующими региональными нормами и правилами по выполнению
электромонтажных работ.
В случае перегорания предохранителя на плате управления блока следует заменить его на предохранитель типа Т25А/250В.
Все кабели должны соответствовать Европейским сертификатам и иметь европейскую идентификационную маркировку. Во время монтажных работ в
случае отключения кабеля следует производить отсоединение провода заземления последним.
В качестве прерывателя цепи электропитания кондиционера следует использовать взрывозащищенный выключатель с размыканием всех полюсов и
расстоянием между контактами при размыкании не менее 3 мм. Выключатель должен устанавливаться в стационарной проводке.
Расстояние между клеммными панелями наружного и внутреннего блоков не должно превышать 5 метров. В противном случае сечение кабеля
должно быть увеличено в соответствии с действующими нормами.
В силовом контуре необходимо предусмотреть взрывозащищенный выключатель.
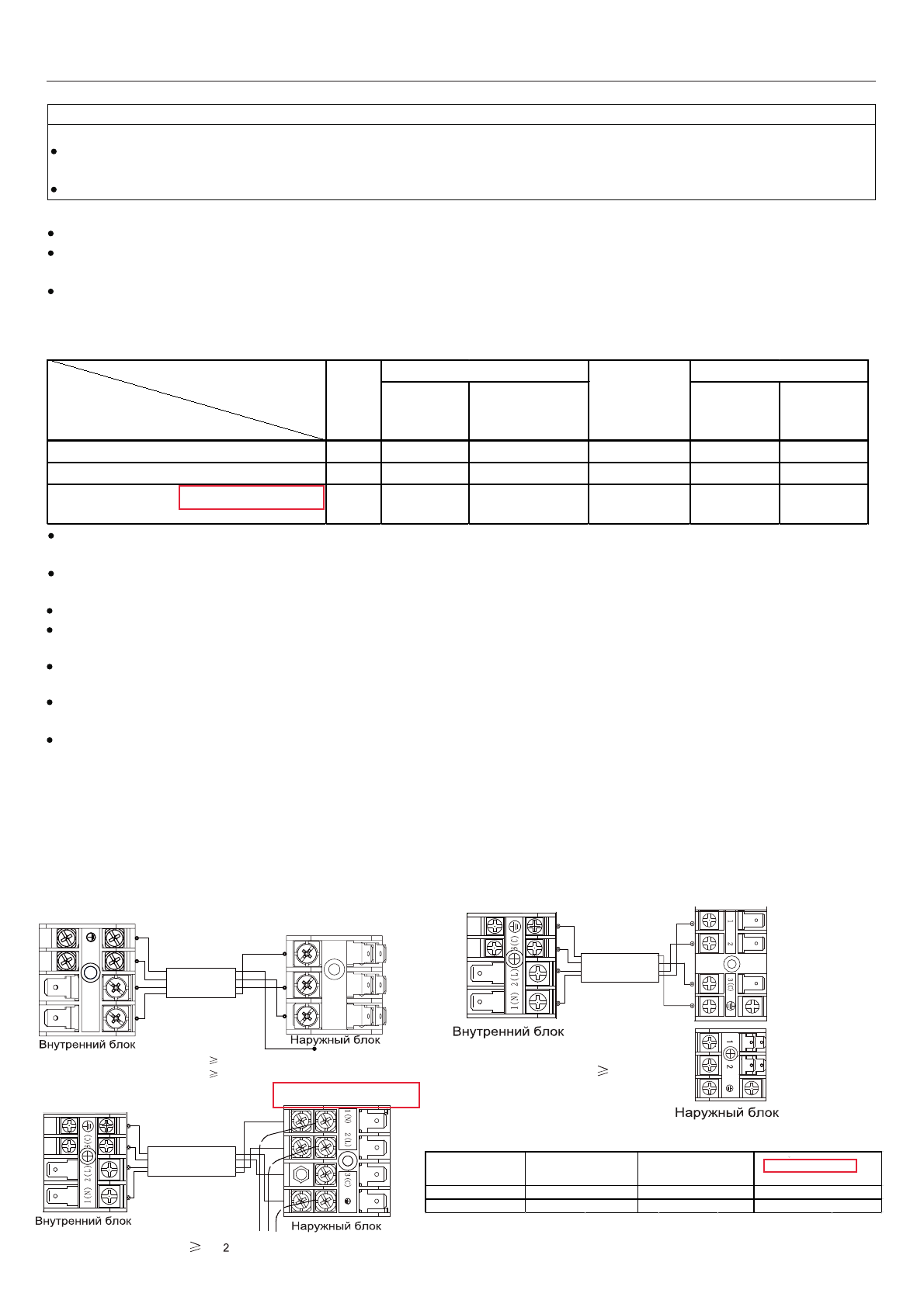
Порядок подключения
1) Вывинтите крепежные винты сбоку, а затем снимите сервисную панель.
2) Подсоедините жилы кабеля к клеммам согласно электросхеме. Закрепите проводку кабельным зажимом рядом с клеммами.
3) Конец кабеля должен подводиться к клеммной колодке через отверстие кабельного ввода в боковой панели блока.
ВНИМАНИЕ!
Подключение кабеля должно выполняться в соответствии с приведенной электросхемой. Несоблюдение данного требования
может привести к выходу оборудования из строя.
Модель блока
Параметр
Кол-во
фаз
Токовый номинал прерывателей цепи
Рубильник
(главный
выключатель),
А
Автомат защиты
от токовой
перегрузки, А
Защита при утечке тока на землю
Автоматич.
выключат., А
Утечка тока,
мА
Минимальное
сечение сетевого
кабеля, мм
2
Монтаж наружного блока
Электроподключение
39
Для модели
ACI-07HTR03/R3-OUT
ACI-09HTR03/R3-OUT
ACI-12HTR03/R3-OUT
Содержание
- 2 в промышленных или коммерческих целях
- 3 Рисунок приведен только для наглядности, внешний вид
- 4 Рекомендации при использовании пульта ДУ:; питания и необходимости их замены.
- 5 Внешний вид пульта; Рабочий режим; Иконка дисплея; ПОВТОР
- 6 Выбор рабочего режима; Регулирование направления
- 7 Функция; Выбор скорости вентилятора
- 8 Функция Healthy
- 10 Монтаж внутреннего блока; Кондиционер предназначен для работы на R32.; более; Необходимые инструменты и
- 11 Прокладка коммуникационных линий
- 12 Межблочный; Дренажная линия всегда должна располагаться под уклоном вниз.; Проверьте следующие пункты
- 13 Уход за кондиционером; Для правильного и эффективного использования кондиционера; Замена дополнительного (опционального) воздушного фильтра
- 14 Меры безопасности; ВНИМАНИЕ; OFF; ПРЕДУПРЕЖДЕНИЕ
- 15 Нижеперечисленные ситуации не требуют обраще-; СПЕЦИФИКАЦИЯ
- 16 Предостережения при монтаже наружного блока; менее 3 м
- 18 M кг; M кг; Меры безопасности при погрузочно-разгрузочных работах,; Безопасность выполнения погрузочно-разгрузочных работ; Инструкции по технике безопасности при монтаже; Меры безопасности при хранении; Минимальная площадь (м
- 20 Требования к электробезопасности; тока утечки соответствующего номинала.; Требования к квалификации монтажников; национального законодательства.; Установка монтажного шаблона на стене; Монтаж наружного блока; ) Установка и подключение
- 21 Вакуумирование; Пробный пуск
- 22 Перемещение блока на другую монтажную позицию; Демонтаж; Инструкции по обслуживанию; Меры предосторожности при сервисном обслуживании; проводить техническое обслуживание и ремонт на месте установки.; Требования к квалификации специалистов Сервисной службы
- 23 Проверка зоны обслуживания; С и которые могут спровоцировать возгорание.; Требования к зоне обслуживания; зоны обслуживания в подвальных помещениях недопустимо.; Методы обнаружения утечек
- 24 Инструкции по безопасности; Техническое обслуживание компонентов; Требования к техническому обслуживанию
- 25 Эвакуация и вакуумирование; Пайка; Процедура заправки хладагента; Требования к месту хранения хладагента:; Утилизация и сдача в отходы
- 26 Регенерация хладагента; Следует обеспечить безопасность слива масла из системы.
- 27 Монтажная схема соединения наружного и внутреннего блоков; Маркировка от до
- 28 Инструкции по технике безопасности; иметь серьезные последствия.
- 30 Проверки перед выполнением монтажа блока
- 31 Перед выполнением тестирования
- 32 Информация, необходимая для ознакомления перед началом монтажа; Необходимые проверки; демонтажа старых труб, чтобы избежать попадания влаги в контур.; Необходимые инструменты и материалы; зующей хладагент R32.
- 33 Спецификация труб; Тип используемых медных труб (справочная информация); Макс. рабочее давление; Материал труб / толщина стенки трубы; региональным техническим требованиям.; Накидная гайка; Размер B
- 34 Проверка трубопровода хладагента на герметичность; Вакуумный насос с обратным клапаном; Заправка хладагента
- 35 Модель; Установочные размеры; Выбор места установки наружного блока; Монтажные и сервисные зазоры; Монтаж наружного блока
- 36 Монтаж соединительного трубопровода; Диаметр и толщина труб соединительного трубопровода; Чрезмерное усилие затяжки при отсутствии центровки может
- 38 Вакуумирование выполняется с помощью вакуумного насоса.; достигает состояния вакуума моментально, проверьте шаг 1 снова.
- 39 Требования при проведении электромонтажных работ; может привести к выходу оборудования из строя.; Электроподключение
- 40 Диагностика неисправностей наружного блока; должен быть включен заранее.
- 41 Технические характеристики; T INVERTOR
- 42 Дата изготовления и