Кондиционеры Daikin RWEYQ-T8 - инструкция пользователя по применению, эксплуатации и установке на русском языке. Мы надеемся, она поможет вам решить возникшие у вас вопросы при эксплуатации техники.
Если остались вопросы, задайте их в комментариях после инструкции.
"Загружаем инструкцию", означает, что нужно подождать пока файл загрузится и можно будет его читать онлайн. Некоторые инструкции очень большие и время их появления зависит от вашей скорости интернета.

RWEYQ8+10T8Y1B
Система
кондиционирования
VRV-W IV
4P399208-3 – 2015.01
Инструкция
по
монтажу
и эксплуатации
9
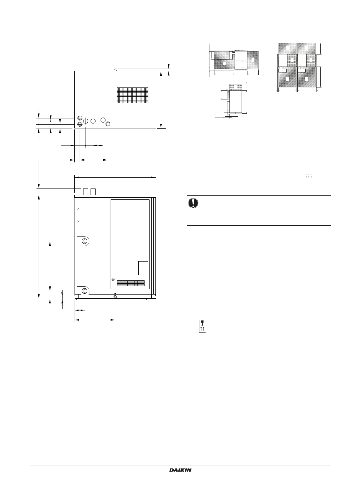
7.
Размеры
и
пространство
для
обслуживания
7.1.
Размеры
блока
Размеры
приведены
в
<
мм
>
7.2.
Зона
обслуживания
В
ходе
установки
необходимо
предусмотреть
свободное
место
согласно
приведенным
ниже
указаниям
.
[1]
Установка
системы
с
одним
наружным
блоком
[2]
Установка
системы
с
несколькими
наружными
блоками
[3]
Вид
сверху
[4]
Вид
сбоку
5
Наружный
блок
6
Зона
обслуживания
(
спереди
)
7
Зона
обслуживания
(
сзади
)
8
Место
прокладки
трубопровода
для
воды
Необходимо
предусмотреть
достаточно
места
,
чтобы
можно
было
снять
лицевую
панель
.
9
Вентилируемое
пространство
над
зоной
(
)
наружного
блока
.
Расстояние
приведено
в
<
мм
>
8.
Осмотр
,
перемещение
и
распаковка
блока
8.1.
Осмотр
Сразу
же
после
доставки
следует
тщательно
осмотреть
упаковку
и
о
любом
замеченном
повреждении
немедленно
сообщить
представителю
организации
,
осуществившей
доставку
.
8.2.
Перемещение
При
перемещении
блока
необходимо
иметь
ввиду
следующее
.
1.
С
блоком
необходимо
обращаться
осторожно
.
Не
переворачивайте
блок
во
избежание
повреждения
компрессора
.
2.
Заранее
наметьте
путь
переноски
блока
.
3.
Во
избежание
повреждения
блока
в
ходе
установки
подни
-
майте
и
переносите
его
,
пользуясь
(
ткаными
)
грузо
-
подъемными
стропами
и
прокладками
.
4.
Поднимая
блок
,
желательно
лебедкой
,
закрепите
его
на
2-
х
стропах
длиной
не
менее
4
м
.
5.
Во
избежание
повреждения
корпуса
блока
подложите
под
стропы
прокладки
или
ветошь
.
6.
При
выполнении
монтажных
работ
следует
использовать
только
стандартные
принадлежности
и
детали
,
входящие
в комплект
поставки
.
780
96
51
390
95
19
107
60
550
20
10
270
43
69
71
1000
78
466
60
38
ПРИМЕЧАНИЕ
Свободное
пространство
спереди
,
сзади
и
по
бокам
выделяется
аналогично
установке
системы
с
одним
блоком
.
900
350
20
300
350
900
500
20
500
20
20
20
100
550
780
1000
9
9
8
8
9
7
7
6
6
6
9
7
8
5
8
390
[4]
[3]
[1]
[2]
5
5
5












