Кондиционеры Daikin RWEYQ-T8 - инструкция пользователя по применению, эксплуатации и установке на русском языке. Мы надеемся, она поможет вам решить возникшие у вас вопросы при эксплуатации техники.
Если остались вопросы, задайте их в комментариях после инструкции.
"Загружаем инструкцию", означает, что нужно подождать пока файл загрузится и можно будет его читать онлайн. Некоторые инструкции очень большие и время их появления зависит от вашей скорости интернета.

RWEYQ8+10T8Y1B
Система
кондиционирования
VRV-W IV
4P399208-3 – 2015.01
Инструкция
по
монтажу
и эксплуатации
7
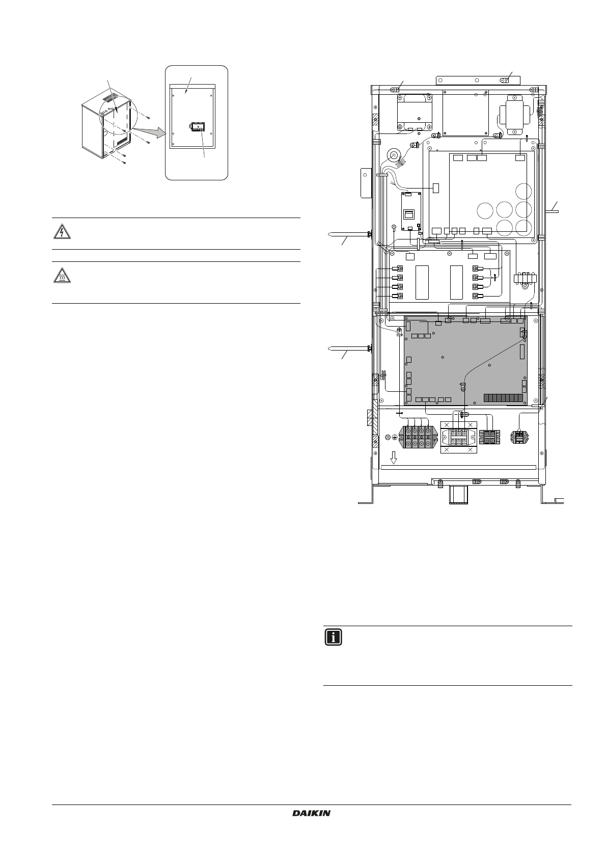
После
снятия
переднего
щитка
можно
получить
доступ
к
блоку
электрических
компонентов
.
Крышка
блока
электрических
компонентов
снимается
следующим
образом
:
1
Блок
электрических
компонентов
2
Крышка
блока
электрических
компонентов
3
Смотровая
крышка
5.2.
Основные
компоненты
блока
Схема
трубопроводов
и
общая
схема
составлены
для
всех
моделей
.
В
зависимости
от
модели
некоторые
компоненты
,
присутствующие
в
списке
основных
компонентов
,
в
блоке
могут
отсутствовать
.
Основные
компоненты
:
см
.
рисунок
1
,
рисунок
2
и
рисунок
3
1
Компрессор
(
ИНВ
)
2
Рамный
теплообменник
3
Приёмное
устройство
4
Маслоотделитель
5
Электронный
расширительный
клапан
(
главный
) (Y1E)
6
Электронный
расширительный
клапан
(
вспомогательный
,
охлаждение
) (Y3E)
7
Электромагнитный
клапан
(
четырехходовой
) (
главный
)
(Y5S)
8
Электромагнитный
клапан
(
четырехходовой
)
(
вспомогательный
) (Y7S)
9
Электромагнитный
клапан
(
горячий
газ
) (Y1S)
10
Электромагнитный
клапан
(
улавливание
масла
) (Y3S)
11
Электромагнитный
клапан
(
впуск
газа
в
приемник
)
(Y3S)
12
Электромагнитный
клапан
(
выпуск
газа
из
приемника
)
(Y4S)
13
Электромагнитный
клапан
(
труба
жидкого
хладагента
)
(Y6S)
14
Блок
электрических
компонентов
15
Реле
высокого
давления
(S1PH)
16
Датчик
высокого
давления
(S1NPH)
17
Датчик
низкого
давления
(S1NPL)
18
Сервисное
отверстие
19
Запорный
клапан
в
контуре
ВД
/
НД
газообразного
хладагента
20
Запорный
клапан
во
всасывающем
контуре
газообразного
хладагента
21
Запорный
клапан
в
контуре
жидкого
хладагента
5.2.1
Схема
трубопроводов
См
.
рисунок
3
.
5.2.2
Общая
схема
См
.
рисунок
1
+
рисунок
2
.
5.3.
Основные
компоненты
в
блоке
электрических
компонентов
1
X1M:
Клемма
подключения
электропитания
:
Основная
клеммная
колодка
,
которая
позволяет
легко
подключать
проводку
электропитания
,
прокладываемую
по
месту
установки
.
2
X2M:
Выходная
рабочая
клемма
насоса
.
3
X3M:
Клемма
подключения
цепи
блокировки
.
4
A1P:
Основная
плата
5
X1M:
Клемма
на
основной
плате
:
Клеммная
колодка
для
проводов
управления
.
6
Крепления
стяжек
кабелей
:
крепления
позволяют
прикреплять
прокладываемую
на
месте
проводку
со стяжками
кабелей
к
блоку
электрических
компонентов
,
устраняя
натяжение
.
ОПАСНО
!
Поражение
электрическим
током
См
.
"2.
Общие
меры
предосторожности
"
на
странице
2
.
ОПАСНО
!
Запрещается
прикасаться
к
трубо
-
проводам
и
внутренним
деталям
.
См
.
"2.
Общие
меры
предосторожности
"
на
странице
2
.
1
2
3
ИНФОРМАЦИЯ
Чтобы
получить
более
подробную
информацию
,
см
.
электрическую
схему
блоков
.
Электрическая
схема
находится
на
внутренней
стороне
блока
электрических
компонентов
.
2
1
4
5
U
V
W
3
6
6
6
6
6
6
6












