Кондиционеры Daikin FXUQ-A - инструкция пользователя по применению, эксплуатации и установке на русском языке. Мы надеемся, она поможет вам решить возникшие у вас вопросы при эксплуатации техники.
Если остались вопросы, задайте их в комментариях после инструкции.
"Загружаем инструкцию", означает, что нужно подождать пока файл загрузится и можно будет его читать онлайн. Некоторые инструкции очень большие и время их появления зависит от вашей скорости интернета.

Русский
19
<
Система
номер
3:
При
использовании
BS
блока
>
ПРИМЕЧАНИЕ
•
Проводка
пульта
дистанционного
управления
и
про
-
водки
цепи
передачи
не
имеют
полярности
.
ПРЕДУПРЕЖДЕНИЕ
Проконтролируйте
установку
выключателя
тока
утечки
на
землю
.
В
противном
случае
возможно
поражение
электриче
-
ским
током
или
возгорание
.
8-6
ДЛЯ
УПРАВЛЕНИЯ
2-
МЯ
ПУЛЬТАМИ
ДИСТАН
-
ЦИОННОГО
УПРАВЛЕНИЯ
(
ДЛЯ
УПРАВЛЕНИЯ
1
ВНУТРЕННИМ
БЛОКОМ
2-
МЯ
ПУЛЬТАМИ
ДИСТАНЦИОННОГО
УПРАВЛЕНИЯ
)
•
Для
управления
с
использованием
2
пультов
дистанци
-
онного
управления
настройте
один
пульт
как
ведущий
,
а
другой
–
как
ведомый
.
<
Смена
настроек
пульта
с
ведущего
на
ведомый
и
обратно
>
Инструкции
по
установке
см
.
в
руководстве
по
монтажу
,
прилагаемому
к
пульту
дистанционного
управления
.
<
Способ
прокладки
проводки
>
(1)
Снимите
крышку
блока
управления
в
соответствии
с
“
8-4
МЕТОД
СОЕДИНЕНИЯ
ПРОВОДКИ
”.
(2)
Выполните
дополнительную
проводку
от
пульта
дистанционного
управления
2 (
Ведомого
)
к
контактам
(P1·P2)
к
проводке
пульта
дистанционного
управле
-
ния
на
клеммной
колодке
(X1M)
в
блоке
управления
.
<
Предостережение
>
При
одновременном
использовании
группового
контр
-
оля
и
2
пультов
дистанционного
управления
подключите
пульт
дистанционного
управления
2 (
Ведомый
)
к
наруж
-
ному
блоку
в
конце
переходника
(
последний
номер
).
(
См
.
Рис
. 44)
8-7
ДЛЯ
ЦЕНТРАЛИЗОВАННОГО
УПРАВЛЕНИЯ
•
При
использовании
централизованного
оборудования
(
такого
как
блок
централизованного
управления
)
для
управления
необходимо
настроить
групповой
№
на
пульте
дистанционного
управления
.
Более
подробную
информацию
можно
найти
в
руковод
-
стве
,
прилагаемом
к
централизованному
оборудованию
.
•
Подключите
централизованное
оборудование
к
вну
-
треннему
блоку
,
подключенному
к
пульту
дистанцион
-
ного
управления
.
8-8
ДЛЯ
ПУЛЬТА
ДИСТАНЦИОННОГО
УПРАВЛЕ
-
НИЯ
(
ПРИНУДИТЕЛЬНОЕ
ОТКЛЮЧЕНИЕ
И
ВКЛЮЧЕНИЕ
/
ОТКЛЮЧЕНИЕ
)
(1)
Способ
подключения
проводки
и
технические
характеристики
•
Пульт
дистанционного
управления
доступен
с
помо
-
щью
подключения
внешнего
входа
к
разъемам
T1
и
T2
на
клеммной
колодке
для
пульта
дистанционного
управления
и
проводки
цепи
передачи
.
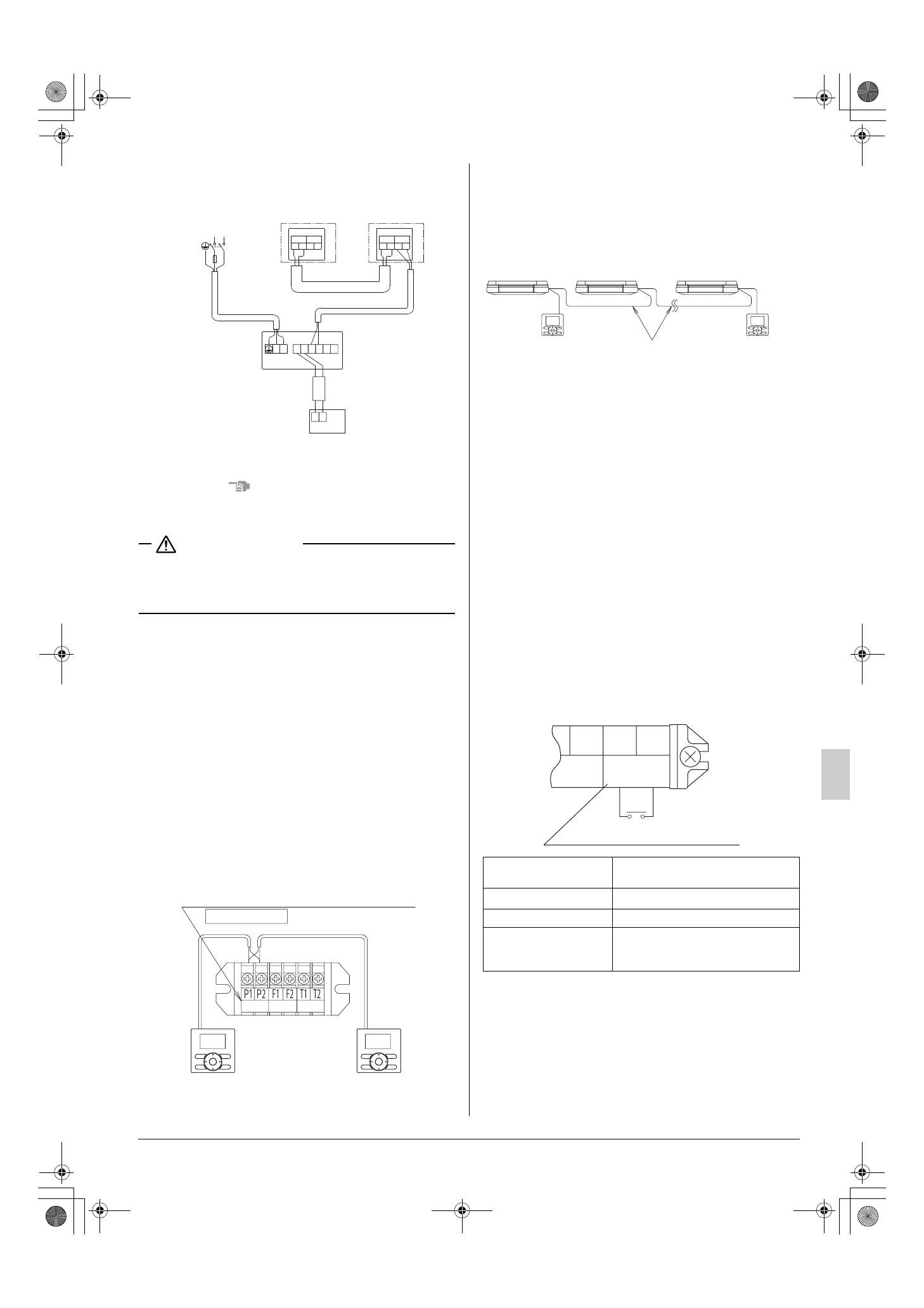
Наружный блок
BS блок
L N
Внутренний
блок A
Пульт дистанционного
управления (выбор)
F2
F1
F2
F1
F2
F1
F2
F1
IN/D
IN/D
OUT/D
OUT/D
N
L
Рис. 42
Источник питания
220-240В/220·230В
~
50Гц/60Гц
P1 P2 F1 F2 T1 T2
P1 P2
Рис. 43
Нет полярности
Пульт дистанционного
управления 2 (Ведомый)
Пульт дистанционного
управления 1 (Ведущий)
Клеммная коробка (X1M) для проводки
пульта дистанционного управления (P1, P2)
Спецификации
проводов
Виниловый
шнур
в
оболочке
или
2-
жильный
кабель
Сечение
провода
0,75-1,25
мм
2
Длина
провода
Макс
. 100
м
Тех
.
характ
.
внешнего
контакта
Контакт
,
который
может
сделать
и
прервать
мин
.
нагрузку
15
В
посто
-
янного
тока
· 1
мА
Рис. 44
Внутренний
блок 1
Внутренний
блок 2
Внутренний блок Самый
большой номер
Кроссовер
(Пульт
дистанционного
управления)
Пульт
дистанционного
управления 1
(Ведущий)
Пульт
дистанционного
управления 2
(Ведомый)
FORCED
OFF
Вход А
F2 T1 T2
ПРИНУДИТЕЛЬНОЕ ВЫКЛЮЧЕНИЕ
09_RU_3P177351-7S.fm Page 19 Thursday, March 21, 2013 8:19 PM