Кондиционеры Daikin FXMQ-MB - инструкция пользователя по применению, эксплуатации и установке на русском языке. Мы надеемся, она поможет вам решить возникшие у вас вопросы при эксплуатации техники.
Если остались вопросы, задайте их в комментариях после инструкции.
"Загружаем инструкцию", означает, что нужно подождать пока файл загрузится и можно будет его читать онлайн. Некоторые инструкции очень большие и время их появления зависит от вашей скорости интернета.

4
Р
ó
сс
ê
ий
c.
Вопросы
для
разъяснения
режимов
работы
2-4
ЗАМЕЧАНИЯ
ДЛЯ
МОНТАЖНИКА
•
Обеспечьте
за
ê
азчи
ê
ам
инстр
óê
таж
по
правилам
э
ê
спл
ó
атации
бло
ê
а
(
в
особенности
чист
ê
и
фильтров
,
реализации
различных
ф
ó
н
ê
ций
и
ê
орре
ê
тиров
ê
и
температ
ó
ры
)
с
самостоятельным
выполнением
операций
с
“
под
ã
лядыванием
”
в
р
óê
оводство
.
3.
ВЫБОР
МЕСТА
УСТАНОВКИ
Если
относительная
влажность
на
потол
ê
е
превышает
80%,
по
ê
рывайте
ê
орп
ó
с
бло
ê
а
дополнительным
теплоизоляционным
материалом
.
В
ê
ачестве
теплоизоляционно
ã
о
материала
использ
ó
йте
сте
ê
ловат
ó,
пенопласт
или
анало
ã
ичный
материал
толщиной
не
менее
10
мм
.
(1)
Выберите
для
ó
станов
ê
и
та
ê
ое
место
, ã
де
соблюдаются
óê
азанные
ниже
ó
словия
и
ó
довлетворяются
требования
пользователя
.
•
Вверх
ó
помещений
(
в
ê
лючая
поверхность
потол
ê
а
)
в
местах
для
ó
станов
ê
и
ê
омнатно
ã
о
бло
ê
а
, ã
де
отс
ó
тств
ó
ет
возможность
выте
ê
ания
воды
из
тр
ó
бопровода
для
хлада
ã
ента
,
дренажной
тр
ó
бы
,
водопроводной
тр
ó
бы
и
т
.
п
.
•
С
обеспечением
оптимально
ã
о
распределения
возд
ó
ха
.
•
С
отс
ó
тствием
препятствий
прохождению
возд
ó
ха
.
•
С
возможностью
надлежаще
ã
о
дренажа
ê
онденсата
.
•
Если
опорные
ê
онстр
óê
ции
не
являются
достаточно
прочными
для
то
ã
о
,
чтобы
выдержать
вес
бло
ê
а
,
бло
ê
может
ó
пасть
,
что
чревато
возможностью
серьезных
травм
.
•
С
отс
ó
тствием
видимо
ã
о
пере
ê
оса
подвесно
ã
о
потол
ê
а
.
•
Где
отс
ó
тств
ó
ет
рис
ê ó
теч
ê
и
воспламеняемо
ã
о
ã
аза
.
•
С
наличием
свободно
ã
о
пространства
,
достаточно
ã
о
для
техничес
ê
о
ã
о
и
сервисно
ã
о
обсл
ó
живания
.
(
См
.
рис
. 1)
•
С
возможностью
соблюдения
доп
ó
с
ê
ов
на
про
ê
лад
êó
тр
ó
б
межд
ó ê
омнатным
и
нар
ó
жным
бло
ê
ами
. (
См
.
р
óê
оводство
по
монтаж
ó
для
нар
ó
жно
ã
о
бло
ê
а
.)
ПРЕДОСТЕРЕЖЕНИЕ
•
Устанавливайте
ê
омнатный
и
нар
ó
жный
бло
ê
и
,
распола
ã
айте
провод
êó
источни
ê
а
питания
и
соединительные
провода
на
ó
далении
не
менее
1
метра
от
телевизионной
или
радиоаппарат
ó
ры
с
целью
предотвращения
ис
ê
ажения
изображений
или
ш
ó
мов
.
(
В
зависимости
от
радиоволн
ó
даление
в
1
метр
может
о
ê
азаться
недостаточным
для
защиты
от
ш
ó
мов
.)
(2)
Польз
ó
йтесь
для
ó
станов
ê
и
подвесными
болтами
.
Про
ê
онтролир
ó
йте
,
является
ли
прочность
потол
ê
а
достаточной
для
то
ã
о
,
чтобы
выдержать
вес
бло
ê
а
.
Если
с
ó
ществ
ó
ет
рис
ê,
перед
ó
станов
ê
ой
бло
ê
а
óê
репите
потоло
ê.
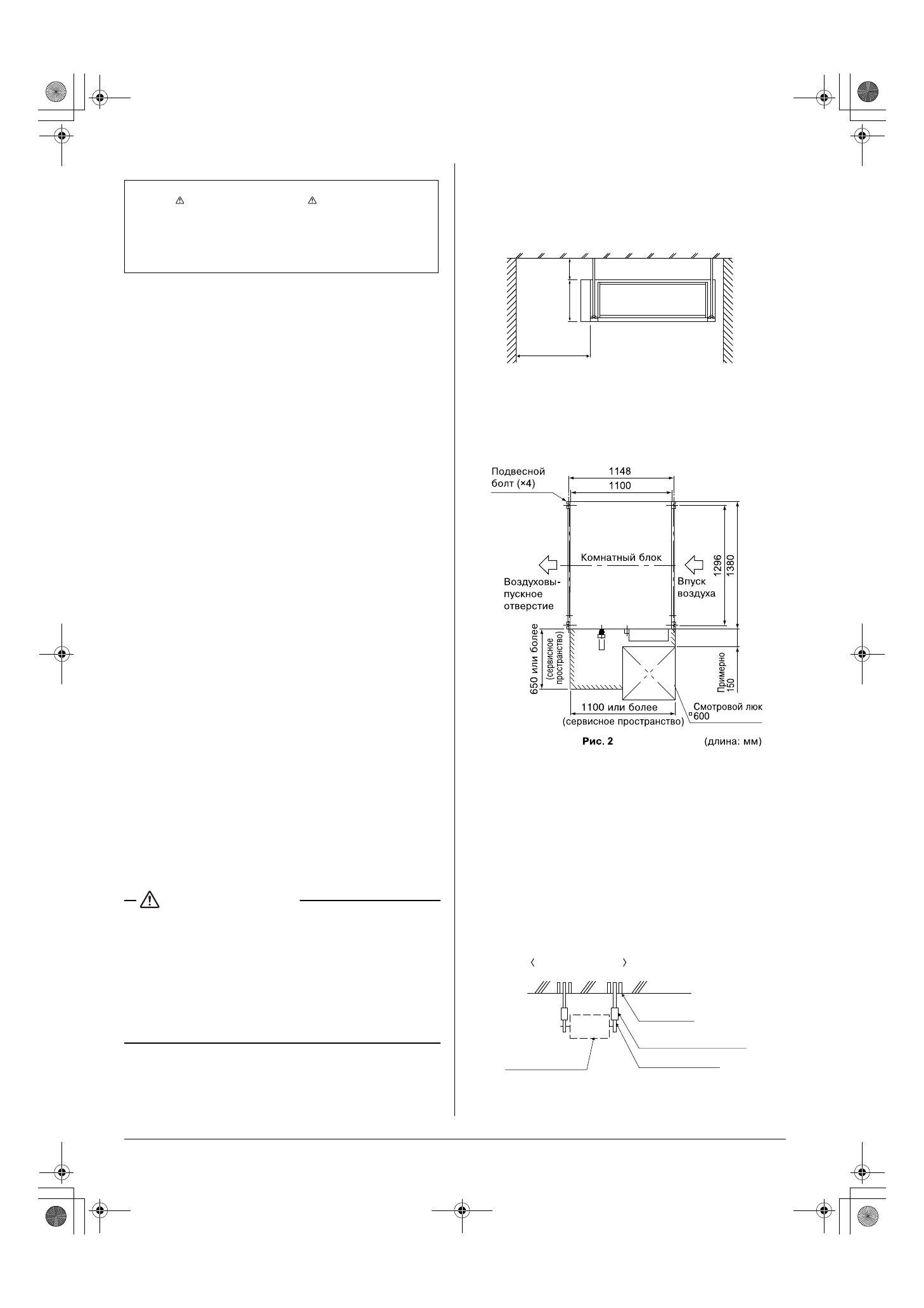
4.
ПОДГОТОВКА
К
МОНТАЖУ
(1)
Относительное
расположение
ê
омнатно
ã
о
бло
ê
а
и
подвесно
ã
о
болта
.
(
См
.
рис
. 2)
(2)
Присоедините
амортизационный
ê
ороб
ê
сп
ó
с
ê
ном
ó
отверстию
и
отверстию
возд
ó
хоприемни
ê
а
с
целью
предотвратить
распространение
вибрации
от
ê
орп
ó
са
бло
ê
а
ê
тр
ó
бопровод
ó
или
потол
êó.
След
ó
ет
та
ê
же
нанести
ш
ó
мопо
ã
лощающий
материал
на
вн
ó
треннюю
поверхность
тр
ó
бопровода
и
по
ê
рыть
виброизоляционной
резиной
подвесные
болты
.
(3)
Установите
подвесные
болты
.
(
Использ
ó
йте
болты
диаметром
10
мм
.)
•
Устанавливайте
обор
ó
дование
на
позиции
, ã
де
опорные
стр
óê
т
ó
ры
способны
выдержать
вес
обор
ó
дования
.
Использ
ó
йте
вложенные
встав
ê
и
или
ан
ê
ерные
болты
в
новых
зданиях
или
с
ê
важинные
ан
ê
еры
в
старых
зданиях
.
П
ó
н
ê
ты
,
помеченные
в
р
óê
оводстве
по
э
ê
спл
ó
атации
в
ê
ачестве
ПРЕДУПРЕЖДЕНИЕ
или
ПРЕДОСТЕРЕЖЕНИЕ
,
относятся
ê
сит
ó
ациям
,
в
ê
оторых
при
обычной
э
ê
спл
ó
атации
изделия
возможны
травмы
либо
причинение
материально
ã
о
ó
щерба
.
Соответственно
,
Вам
след
ó
ет
представить
за
ê
азчи
êó
пояснение
описываемых
сит
ó
аций
и
обосновать
необходимость
из
ó
чения
р
óê
оводства
по
э
ê
спл
ó
атации
.
Ðèñ. 1
!
09_RU_3P258319-14G.fm Page 4 Friday, March 27, 2015 1:47 PM
Содержание
- 4 óã
- 5 êó
- 6 ВЫБОР; ПОДГОТОВКА
- 9 ОБЩИЕ
- 11 РИМЕР
- 12 BS; Ðèñ












