Кондиционеры Daikin FXHQ-A - инструкция пользователя по применению, эксплуатации и установке на русском языке. Мы надеемся, она поможет вам решить возникшие у вас вопросы при эксплуатации техники.
Если остались вопросы, задайте их в комментариях после инструкции.
"Загружаем инструкцию", означает, что нужно подождать пока файл загрузится и можно будет его читать онлайн. Некоторые инструкции очень большие и время их появления зависит от вашей скорости интернета.

15
Русский
<
Смена
настроек
пульта
с
ведущего
на
ведомый
и
обратно
>
Инструкции
по
установке
см
.
в
руководстве
по
монтажу
,
прилагаемому
к
пульту
дистанционного
управления
.
<
Способ
прокладки
проводки
>
(1)
Снимите
крышку
блока
управления
с
учетом
требова
-
ний
к
подключению
проводки
.
(2)
Выполните
дополнительную
проводку
от
пульта
дистанционного
управления
2 (
Вспомогательный
)
к
контактам
(P
1
, P
2
)
к
проводке
пульта
дистанционного
управления
на
клеммной
колодке
(X1M)
в
блоке
управ
-
ления
.
<
ПРЕДОСТЕРЕЖЕНИЕ
>
При
одновременном
использовании
группового
контроля
и
2
пультов
дистанционного
управления
подключите
пульт
дистанционного
управления
2 (
Вспомогательный
)
к
наружному
блоку
в
конце
переходника
(
последний
номер
).
(
См
.
рис
. 34)
8-7
ДЛЯ
ЦЕНТРАЛИЗОВАННОГО
УПРАВЛЕНИЯ
•
При
использовании
централизованного
оборудования
(
такого
как
блок
централизованного
управления
)
для
управления
необходимо
настроить
групповой
№
на
пульте
дистанционного
управления
.
Более
подробную
информацию
можно
найти
в
руковод
-
стве
,
прилагаемом
к
централизованному
оборудованию
.
•
Подключите
централизованное
оборудование
к
вну
-
треннему
блоку
,
подключенному
к
пульту
дистанцион
-
ного
управления
.
8-8
ДЛЯ
ПУЛЬТА
ДИСТАНЦИОННОГО
УПРАВЛЕ
-
НИЯ
(
ПРИНУДИТЕЛЬНОЕ
ОТКЛЮЧЕНИЕ
И
ВКЛЮЧЕНИЕ
/
ОТКЛЮЧЕНИЕ
)
(1)
Способ
подключения
проводки
и
технические
характеристики
•
Пульт
дистанционного
управления
доступен
при
передаче
внешнего
ввода
на
разъемы
Т
1
и
Т
2
на
клеммной
колодке
для
пульта
дистанционного
управления
и
цепи
передачи
.
(2)
Ввод
в
действие
•
Ввод
А
,
через
который
контролируется
ПРИНУДИ
-
ТЕЛЬНОЕ
ОТКЛЮЧЕНИЕ
,
а
также
ВКЛЮЧЕНИЕ
/
ВЫКЛЮЧЕНИЕ
,
будет
расположен
,
как
показано
на
таблице
ниже
.
(3)
Выбор
операции
ПРИНУДИТЕЛЬНОЕ
ВЫКЛЮЧЕ
-
НИЕ
или
ОПЕРАЦИЯ
ВКЛЮЧЕНИЯ
/
ВЫКЛЮЧЕНИЯ
•
Чтобы
задействовать
ПРИНУДИТЕЛЬНОЕ
ОТКЛЮ
-
ЧЕНИЕ
или
функцию
ВКЛЮЧЕНИЯ
/
ВЫКЛЮЧЕНИЯ
,
необходима
настройка
пульта
дистанционного
управления
. (
См
.
10.
НАСТРОЙКА
НА
МЕСТЕ
И
ПРОВЕРКА
)
9.
УСТАНОВКА
РЕШЕТКИ
ВОЗДУХОЗА
-
БОРНИКА
·
ДЕКОРАТИВНОЙ
БОКО
-
ВОЙ
ПАНЕЛИ
Установите
декоративную
панель
и
решетку
воздухозаборника
,
выполнив
действия
процедуры
их
снятия
в
обратном
порядке
.
•
При
установке
решетки
воздухозаборника
навесьте
трос
решетки
воздухозаборника
на
подвешенную
часть
внутреннего
блока
,
показанную
на
рис
. 35
.
ПРЕДОСТЕРЕЖЕНИЕ
Трос
может
помешать
закрытию
решетки
воздухозабор
-
ника
.
Перед
закрытием
убедитесь
,
что
трос
не
выбива
-
ется
из
-
за
края
решетки
воздухозаборника
.
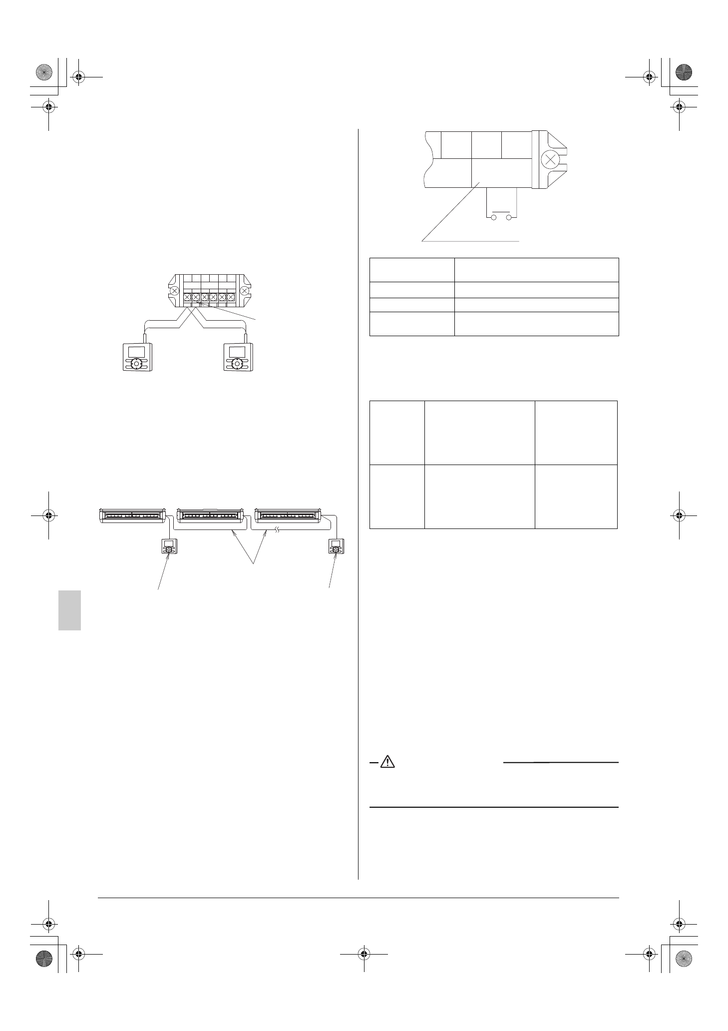
Пульт дистанционного
управления 1
(Главный)
Пульт дистанционного
управления 2
(Вспомогательный)
Разъем для проводки
пульта дистанционного
управления
Рис. 33
P
1
P
2
Пульт дистанционного
управления 1
(Главный)
Пульт дистанционного
управления 2
(Вспомогательный)
Перекрестная проводка
(пульт дистанционного управления)
Внутренний блок 1
Внутренний блок 2
№ последнего
внутреннего блока
Рис. 34
Спецификации
про
-
водов
Виниловый
шнур
в
оболочке
или
2-
жиль
-
ный
кабель
Сечение
провода
0,75-1,25
мм
2
Длина
провода
Макс
. 100
м
Тех
.
характ
.
внеш
-
него
контакта
Контакт
,
способный
выдержать
мин
.
нагрузку
в
15
В
- 1
мА
постоянного
тока
В
случае
ПРИНУДИ
-
ТЕЛЬНОГО
ОТКЛЮЧЕ
-
НИЯ
ПРИНУДИТЕЛЬНОЕ
ОТКЛЮЧЕНИЕ
на
вводе
А
“
ЗАДЕЙСТВОВАНО
”
(
Использование
пульта
дистанционного
управле
-
ния
запрещено
)
Разрешение
работы
пульта
дистанцион
-
ного
управления
на
вводе
А
“
ОТКЛЮ
-
ЧЕНО
”
В
случае
ОПЕРАЦИИ
ВКЛЮЧЕ
-
НИЯ
/
ВЫКЛЮЧЕ
-
НИЯ
Функционирование
на
вводе
А
“
ЗАДЕЙСТВО
-
ВАНО
”
“
ОТКЛЮЧЕНО
”
Остановка
работы
на
вводе
А
“
ЗАДЕЙ
-
СТВОВАНА
”
“
ОТКЛЮЧЕНА
”
F2
T1
FORCED
OFF
T2
Ввод А
ПРИНУДИТЕЛЬНОЕ
ВЫКЛЮЧЕНИЕ
09_RU_3P368557-2.fm Page 15 Tuesday, December 16, 2014 11:48 AM