Кондиционеры Daikin FWXV-A - инструкция пользователя по применению, эксплуатации и установке на русском языке. Мы надеемся, она поможет вам решить возникшие у вас вопросы при эксплуатации техники.
Если остались вопросы, задайте их в комментариях после инструкции.
"Загружаем инструкцию", означает, что нужно подождать пока файл загрузится и можно будет его читать онлайн. Некоторые инструкции очень большие и время их появления зависит от вашей скорости интернета.

Addendum book for optional equipment
11
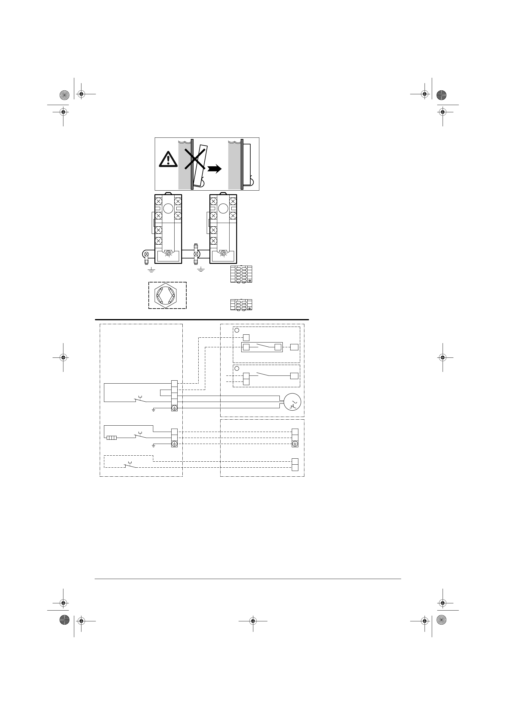
Unit + digital I/O PCB, demand PCB, solar kit, wired room thermostat, wireless room thermostat,
heat pump convector, bottom plate heater, domestic hot water tank, remote indoor sensor
*HBH/X*C* + *HVH/X*C*
4P318524-1B – 2012.11
*KHWS*B*V3
*
KSOLHWAV1
TYPE 1 & 2
TYPE 2
*
KHWS_B
*
V3
2
1
1
2
Q2L
E4H
1
3
2
4
1
Q3L
2
1
2
19
20
X4
X3
21
13a
28
X6M
X8M
X4M
1
M
BLU
BRN
YLW/GRN
X2M
4
Q2L
X2M
13
14
3
BRN
BRN
BRN
BRN
BRN
BLK
YLW/GRN
YLW/GRN
X2M
TYPE 2
:
*
KHB
H
X _ AA /AB or
*
D/B
L
HQ _ AA
TYPE 1
:
*
(K)HB
H
X _ B
*
/C
*
or
*
D/B
L
HQ _ B
*
K7M
1
A4P
TYPE 1
X2M
X2M
1
3
E4H
RESET
230V
X6M
X8M
2
1
1
2
4
Q2L
&
Q3L
Q2L
&
Q3L
H
2
O
H
2
O
Q2L
85°C
Q2T
1
1
2
2
3
4
RESET
Q3L
85°C
Q3T
1
1
2
2
3
4
*
KHWS
*
B
*
V3
4P318524-1B.book Page 11 Monday, November 5, 2012 9:18 AM