Кондиционеры Daikin FTXM-K - инструкция пользователя по применению, эксплуатации и установке на русском языке. Мы надеемся, она поможет вам решить возникшие у вас вопросы при эксплуатации техники.
Если остались вопросы, задайте их в комментариях после инструкции.
"Загружаем инструкцию", означает, что нужно подождать пока файл загрузится и можно будет его читать онлайн. Некоторые инструкции очень большие и время их появления зависит от вашей скорости интернета.

5
Русский
Монтаж
внутреннего
агрегата
1.
Установка
монтажной
пластины
•
Монтажную
пластину
следует
установить
на
стену
,
которая
способна
выдержать
вес
внутреннего
агрегата
.
1)
Временно
закрепите
монтажную
пластину
на
стене
.
Убедитесь
в
том
,
что
панель
расположена
горизонтально
и отметьте
точки
для
сверления
отверстий
на
стене
.
2)
Закрепите
монтажную
пластину
на
стене
винтами
.
Рекомендуемые
точки
крепления
монтажной
пластины
и
размеры
2.
Сверление
отверстия
в
стене
и
монтаж
заделываемой
в
стену
трубы
•
Если
стена
содержит
металлическую
раму
или
металлическую
пластину
,
используйте
в
сквозном
отверстии
заделываемую
в
стену
трубу
и
настенную
крышку
,
чтобы
предотвратить
возможный
нагрев
,
поражение
электрическим
током
или
пожар
.
•
Загерметизируйте
зазоры
вокруг
трубопроводов
уплотняющим
материалом
,
чтобы
предотвратить
протечку
воды
.
1)
Просверлите
сквозное
отверстие
диаметром
65
мм
с
уклоном
в сторону
наружной
поверхности
.
2)
Вставьте
заделываемую
в
стену
трубу
в
отверстие
.
3)
Вставьте
настенную
крышку
в
трубу
.
4)
После
завершения
монтажа
трубопровода
хладагента
,
проводки
и дренажного
трубопровода
заполните
зазор
замазкой
.
3.
Монтаж
внутреннего
агрегата
•
В
случае
перегиба
или
деформации
трубопроводов
хладагента
примите
следующие
меры
предосторожности
.
Если
работы
не
выполнены
должным
образом
,
возможно
возникновение
ненормального
звука
.
1)
Сильно
не
прижимайте
трубопроводы
хладагента
к
нижней
раме
.
2)
Сильно
не
прижимайте
трубопроводы
хладагента
к
передней
решетке
.
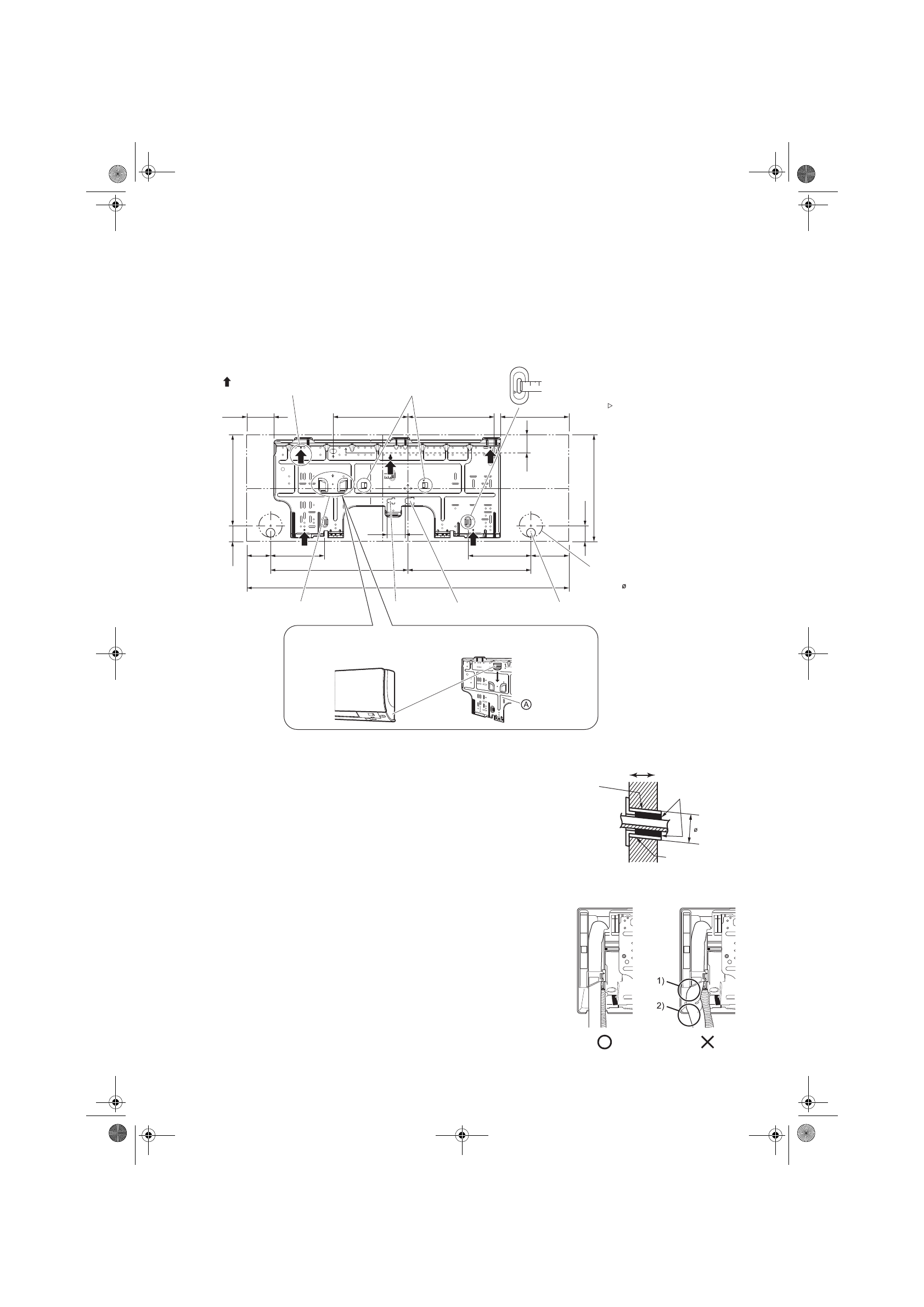
209
241
191,5
66
106
176
150
384
900
344
75,5
48
250
48
298
50
50
Используйте рулетку,
как показано.
единицы измерения: мм
Снятая крышка
отверстия под трубопровод
Рекомендуемые токи крепления
монтажной пластины (всего 5 точек)
Установите уровень
на выступы.
Положение дренажного
шланга
Место хранения крышки, вырезанной
из агрегата для трубопровода
Конец жидкостной
линии
Конец газовой
линии
Монтажная
пластина
* Снятую крышку отверстия под
трубопровод можно можно хранить
в кармане на монтажной пластине.
Положение конца мерной
ленты на метке .
Сквозное
отверстие
в стене 65 мм
Внутри
Снаружи
Замазка
Заделываемая
в стену труба
(приобретается по
месту установки)
Крышка отверстия
в стене
(приобретается по
месту установки)
Заделываемая
в стену труба
(приобретается по
месту установки)
65
3PRU387973-3D.book Page 5 Monday, November 30, 2015 4:25 PM












