Кондиционеры Daikin BS-Q14AV1 - инструкция пользователя по применению, эксплуатации и установке на русском языке. Мы надеемся, она поможет вам решить возникшие у вас вопросы при эксплуатации техники.
Если остались вопросы, задайте их в комментариях после инструкции.
"Загружаем инструкцию", означает, что нужно подождать пока файл загрузится и можно будет его читать онлайн. Некоторые инструкции очень большие и время их появления зависит от вашей скорости интернета.

Русский
6
4. ПОДГОТОВКА К МОНТАЖУ
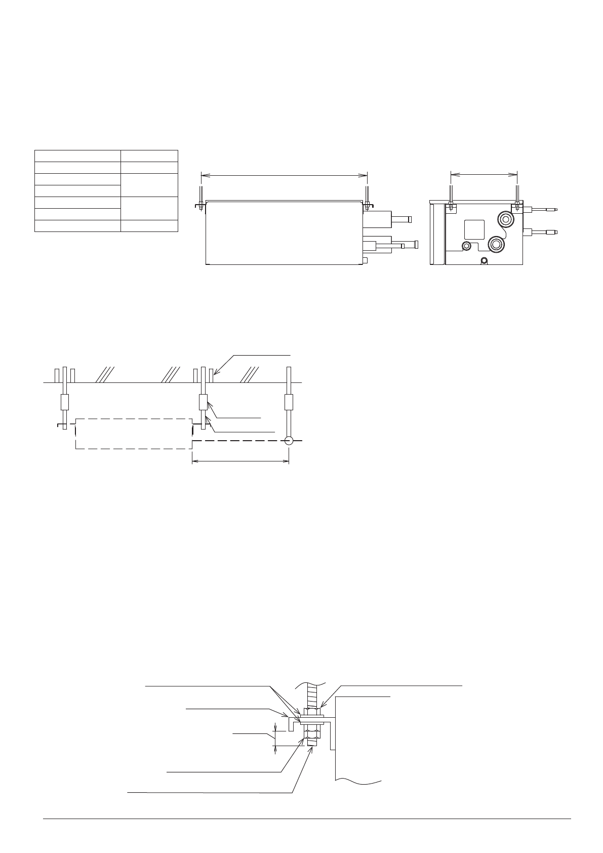
Установите подвесные болты и кронштейны, как показано на рисунке ниже.
•
ИспользуйтеподвесныеболтыразмеромМ8илиМ10.
•
Используйтезалитыезакладныедеталиивложенныефундаментныеболтывновыхсооружениях
либовставляемыевотверстияанкерныеболтыилианалогичныйкрепежвимеющихся
сооружениях.Конструкциядолжнавыдерживатьвесблока.
Единицыизмерения:мм
БлокBS
A
BS4Q14AV1B
415
BS6Q14AV1B
625
BS8Q14AV1B
BS10Q14AV1B
865
BS12Q14AV1B
BS16Q14AV1B
1105
A
308
<Расстояниемеждуцентрамиподвесныхболтов>
•
Используйтеподвесныекронштейныдляопорысоединительныхтрубопроводовспередней
изаднейстороныблокавпределах1мотстенкиблока.
ЕслиразместитьчрезмерныйгрузнаподвесныхкронштейнахблокаBS,возможнопадение
блокаитравмы.
Плита
Анкерныйболт
Длиннаягайка
иливинтовая
стяжка
Подвеснойболт
До1м
Агрегат
Соединительная
труба
Всепоказанныевышекомпонентыприобретаютсянаместе
<Примермонтажа>
5. МОНТАЖ БЛОКА BS
Для монтажа блока пользуйтесь исключительно деталями и принадлежностями, которые
соответствуют указанным техническим характеристикам.
1.
УстановитеблокBSивременнозакрепитеегонаместе.
Прикрепитеподвесныекронштейныкподвеснымболтамсогласноследующемурисункусправа.
Установитегайки(М8илиМ10,по3шт.в4местах)ишайбы(наружныйдиаметр24–28ммдля
М8илинаружныйдиаметр30–34ммдляМ10:по2шт.в4местах)(приобретаютсянаместе)
сверхуиснизуподвесныхкронштейновсобеихсторонблока,чтобызакрепитьегонаместе.
2.
Отрегулируйтевысотублока.
3.
Спомощьюуровняубедитесьвтом,чтоблокправильновыровненпогоризонтали.
(Блокдолженрасполагатьсялибогоризонтально,либосуклоном1°всторонудренажногопатрубка.)
Гайка(сдвоеннаягайка)
(приобретаетсянаместе)
Подвеснойболт(приобретаетсянаместе)
10–15мм
Подвеснойкронштейн
Шайба(приобретаетсянаместе)
Гайка(приобретаетсянаместе)
БлокBS