Кондиционеры Daikin ATX-KV - инструкция пользователя по применению, эксплуатации и установке на русском языке. Мы надеемся, она поможет вам решить возникшие у вас вопросы при эксплуатации техники.
Если остались вопросы, задайте их в комментариях после инструкции.
"Загружаем инструкцию", означает, что нужно подождать пока файл загрузится и можно будет его читать онлайн. Некоторые инструкции очень большие и время их появления зависит от вашей скорости интернета.

Русский
7
Русс
кий
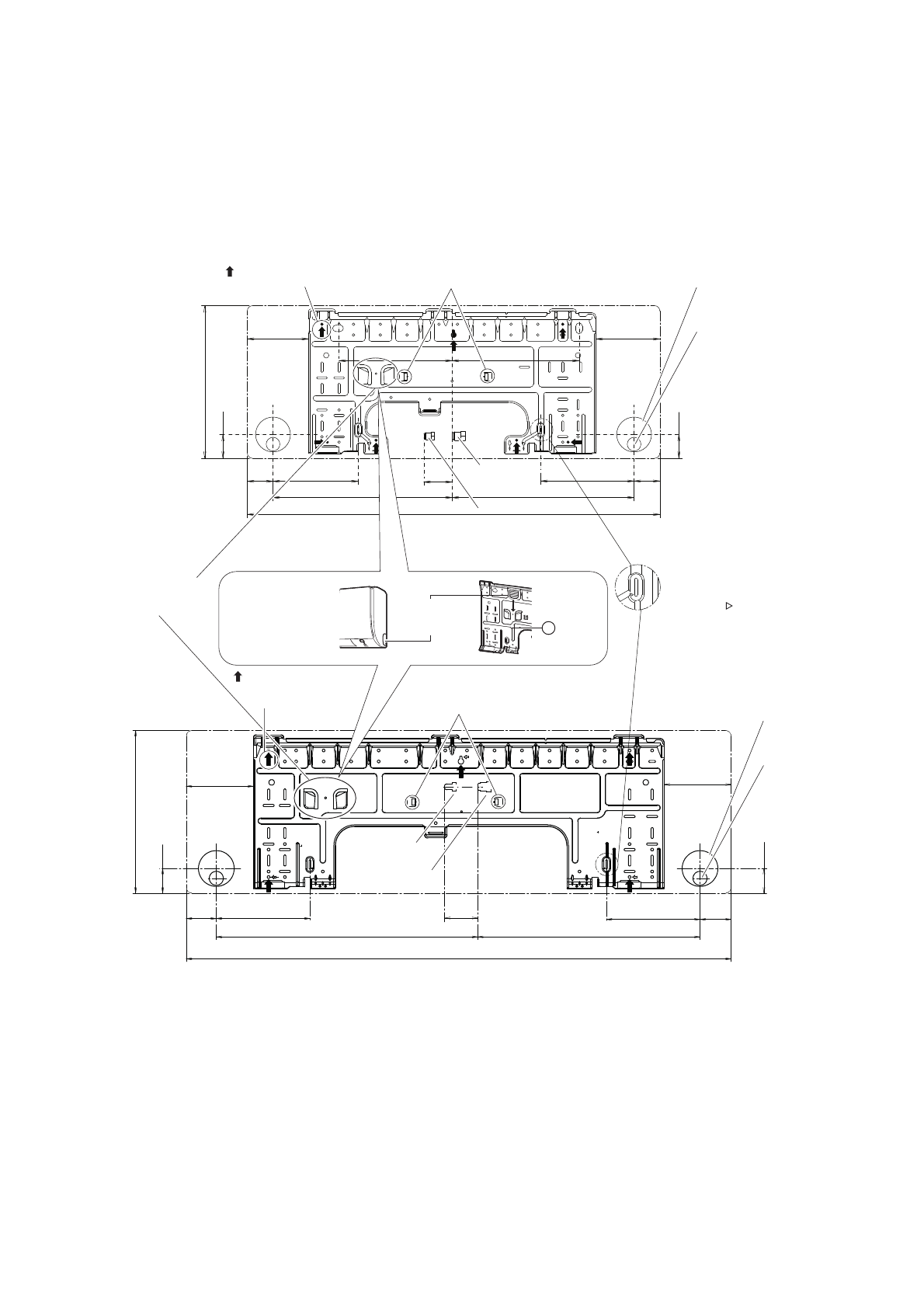
Монтаж внутреннего агрегата
1.
Установка монтажной пластины
• Монтажную пластину следует установить на стену, которая способна выдержать вес внутреннего агрегата.
1) Временно закрепите монтажную пластину на стене. Убедитесь в том, что панель расположена горизонтально
и отметьте точки для сверления отверстий на стене.
2) Закрепите монтажную пластину на стене винтами.
Рекомендуемые точки крепления монтажной пластины и размеры
337
770
A
A
285
44,5
170
48
48
44,5
116,5
117
337
50
213
237
170
ɉɨɦɟɫɬɢɬɟɤɪɵɲɤɭ
ɨɬɜɟɪɫɬɢɹɩɨɞ
ɬɪɭɛɨɩɪɨɜɨɞɜɷɬɨ
ɝɧɟɡɞɨ
ɍɫɬɚɧɨɜɢɬɟɭɪɨɜɟɧɶ
ɧɚɷɬɢɜɵɫɬɭɩɵ
Ɋɟɤɨɦɟɧɞɭɟɦɵɟɬɨɱɤɢɤɪɟɩɥɟɧɢɹ
ɦɨɧɬɚɠɧɨɣɩɥɚɫɬɢɧɵɜɫɟɝɨɬɨɱɟɤ
ɋɤɜɨɡɧɨɟɨɬɜɟɪɫɬɢɟ
ɜɫɬɟɧɟ
I
65
ɉɨɥɨɠɟɧɢɟɞɪɟɧɚɠɧɨɝɨ
ɲɥɚɧɝɚ
Ʉɨɧɟɰɝɚɡɨɜɨɣ
ɥɢɧɢɢ
Ʉɨɧɟɰɠɢɞɤɨɫɬɧɨɣɥɢɧɢɢ
ɂɫɩɨɥɶɡɭɣɬɟɪɭɥɟɬɤɭ
ɤɚɤɩɨɤɚɡɚɧɨ
Ɋɚɡɦɟɫɬɢɬɟɤɨɧɟɰɪɭɥɟɬɤɢ
ɧɚɦɟɬɤɟ
990
295
170
60
170
44,5
44,5
122
121,5
56,5
56,5
404
475
ɍɞɚɥɟɧɧɭɸɤɪɵɲɤɭ
ɨɬɜɟɪɫɬɢɹɩɨɞ
ɬɪɭɛɨɩɪɨɜɨɞɦɨɠɧɨ
ɫɨɯɪɚɧɢɬɶɜɝɧɟɡɞɟɧɚ
ɦɨɧɬɚɠɧɨɣɩɥɚɫɬɢɧɟ
Ɇɨɧɬɚɠɧɚɹ
ɩɥɚɫɬɢɧɚ
ɍɞɚɥɟɧɧɚɹ
ɤɪɵɲɤɚɨɬɜɟɪɫɬɢɹ
ɩɨɞɬɪɭɛɨɩɪɨɜɨɞ
A
Ʉɥɚɫɫ
Ʉɥɚɫɫ
ɐȿɇɌɊɈɌȼȿɊɋɌɂəɉɈȾ
ɌɊɍȻɈɉɊɈȼɈȾɇȺɦɦ
Ʌȿȼȿȿ
ɐȿɇɌɊɈɌȼȿɊɋɌɂəɉɈȾ
ɌɊɍȻɈɉɊɈȼɈȾɇȺɦɦ
Ʌȿȼȿȿ
ɍɫɬɚɧɨɜɢɬɟɭɪɨɜɟɧɶ
ɧɚɷɬɢɜɵɫɬɭɩɵ
Ʉɨɧɟɰɝɚɡɨɜɨɣ
ɥɢɧɢɢ
Ʉɨɧɟɰɠɢɞɤɨɫɬɧɨɣ
ɥɢɧɢɢ
ɋɤɜɨɡɧɨɟ
ɨɬɜɟɪɫɬɢɟ
ɜɫɬɟɧɟ
I
65
ɉɨɥɨɠɟɧɢɟ
ɞɪɟɧɚɠɧɨɝɨ
ɲɥɚɧɝɚ
Ɋɟɤɨɦɟɧɞɭɟɦɵɟɬɨɱɤɢ
ɤɪɟɩɥɟɧɢɹɦɨɧɬɚɠɧɨɣ
ɩɥɚɫɬɢɧɵɜɫɟɝɨɬɨɱɟɤ
Содержание
- 5 Русский; Меры предосторожности; ПРЕДУПРЕЖДЕНИЕ; ɉɟɪɟɞɷɤɫɩɥɭɚɬɚɰɢɟɣɛɥɨɤɚɜɧɢɦɚɬɟɥɶɧɨ
- 6 Принадлежности; ПРЕДОСТЕРЕЖЕНИЕ
- 7 Выбор места монтажа; Внутренний агрегат
- 8 Подготовка к монтажу; Снятие и установка передней панели; Снятие и установка передней решетки; Настройка других адресов
- 11 Монтаж внутреннего агрегата; Установка монтажной пластины
- 12 Сверление отверстия в стене и монтаж заделываемой в стену трубы
- 13 Замена сливной пробки и дренажного шланга
- 16 Проводка
- 17 Дренажный трубопровод
- 19 Монтаж трубопровода хладагента; Развальцовка конца трубы; Трубопроводы хладагента
- 20 -1. Предостережения относительно обращения
- 21 Опытная эксплуатация и испытания; указанному диапазону.; Позиции проверки