Кондиционеры Daikin 3MXM-M - инструкция пользователя по применению, эксплуатации и установке на русском языке. Мы надеемся, она поможет вам решить возникшие у вас вопросы при эксплуатации техники.
Если остались вопросы, задайте их в комментариях после инструкции.
"Загружаем инструкцию", означает, что нужно подождать пока файл загрузится и можно будет его читать онлайн. Некоторые инструкции очень большие и время их появления зависит от вашей скорости интернета.

22
Русский
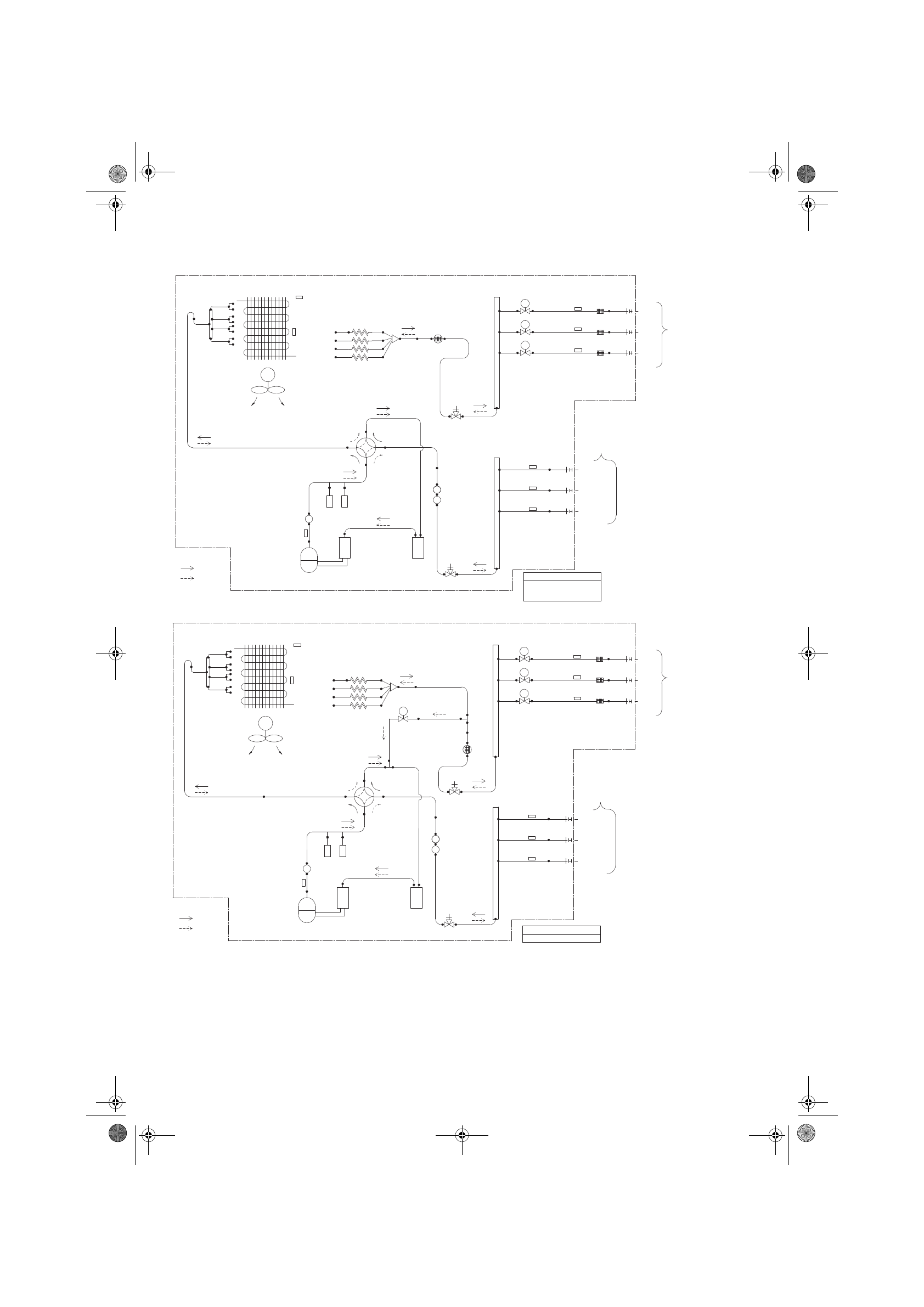
Схема
трубопроводов
Категории
оборудования
согласно
PED:
переключатели
высокого
давления
–
Категория
IV;
компрессор
–
Категория
II;
аккумулятор
–
Категория
I;
другое
оборудование
,
указанное
в
§3
статьи
3.
ПРИМЕЧАНИЕ
:
После
срабатывания
переключателя
высокого
давления
его
сброс
должен
выполнить
вручную
квалифицированный
специалист
.
7,9 CuT
7,9 CuT
7,9 CuT
7,9 CuT
12,7 CuT
M
12,7 CuT
(12,7 CuT)
9,5 CuT
(12,7 CuT)
12,7 CuT
12,7 CuT
12,7 CuT
Ɉɛɜɹɡɤɚɬɪɭɛɨɩɪɨɜɨɞɨɜɩɨɦɟɫɬɭ
Ɍɟɪɦɢɫɬɨɪɝɚɡ
Ɋɚɡɜɟɬɜɢɬɟɥɶ
5HILQHWɧɚɫɚɞɤɚ
12,7 CuT
Ɂɚɩɨɪɧɵɣɜɟɧɬɢɥɶɝɚɡɚ
12,7 CuT
15,9 CuT
Ƚɥɭɲɢɬɟɥɶ
Ƚɥɭɲɢɬɟɥɶ
15,9 CuT
15,9 CuT
ɇɚɤɨɩɢɬɟɥɶ
Ʉɨɦɩɪɟɫɫɨɪ
7,9 CuT
Ƚɥɭɲɢɬɟɥɶ
9,5 CuT
12,7 CuT
ɯɨɞɨɜɨɣɤɥɚɩɚɧ
Ɍɟɩɥɨɨɛɦɟɧɧɢɤ
ɉɪɨɩɟɥɥɟɪɧɵɣ
ɜɟɧɬɢɥɹɬɨɪ
Ⱦɜɢɝɚɬɟɥɶɜɟɧɬɢɥɹɬɨɪɚ
7,9 CuT
7,9 CuT
7,9 CuT
MV
MV
MV
A
B
C
ɗɥɟɤɬɪɨɧɧɵɣɬɟɪɦɨɪɟɝɭɥɢɪɭɸɳɢɣɜɟɧɬɢɥɶ
6,4 CuT
6,4 CuT
6,4 CuT
Ɏɢɥɶɬɪ
ɉɨɦɟɳɟɧɢɟ$
ɉɨɦɟɳɟɧɢɟ%
ɉɨɦɟɳɟɧɢɟ&
Ɉɛɜɹɡɤɚ
ɬɪɭɛɨɩɪɨɜɨɞɨɜ
ɩɨɦɟɫɬɭ
ɀɢɞɤɨɫɬɧɚɹ
Ƚɚɡɨɜɚɹ
(6,4 CuT)
(6,4 CuT)
(6,4 CuT)
ɉɨɦɟɳɟɧɢɟ$
ɉɨɦɟɳɟɧɢɟ%
ɉɨɦɟɳɟɧɢɟ&
9,5 CuT
Ɂɚɩɨɪɧɵɣɜɟɧɬɢɥɶ
ɠɢɞɤɨɫɬɢ
9,5 CuT
9,5 CuT
9,5 CuT
7,9 CuT
Ƚɥɭɲɢɬɟɥɶɫɮɢɥɶɬɪɨɦ
Ʉɚɩɢɥɥɹɪɧɚɹɬɪɭɛɤɚ
Ɋɚɫɩɪɟɞɟɥɢɬɟɥɶ
Ɋɚɫɯɨɞɯɥɚɞɚɝɟɧɬɚ
Ɋɚɡɜɟɬɜɢɬɟɥɶ
5HILQHWɧɚɫɚɞɤɚ
ɇɚɤɨɩɢɬɟɥɶ
Ɍɟɪɦɢɫɬɨɪɬɪɭɛɨɩɪɨɜɨɞɚ
ɧɚɝɧɟɬɚɧɢɹ
Ɍɟɪɦɢɫɬɨɪɠɢɞɤɨɫɬɶ
ɇɚɝɪɟɜ
Ɉɯɥɚɠɞɟɧɢɟ
Ɋɚɡɜɟɬɜɢɬɟɥɶ
5HILQHWɧɚɫɚɞɤɚ
ɋɨɨɬɜɟɬɫɬɜɭɸɳɢɟɦɨɞɟɥɢ
3MXM52M2V1B
3MXM40M2V1B
3AMXM52M2V1B
S1PH
S2PH
ɉɟɪɟɤɥɸɱɚɬɟɥɶɜɵɫɨɤɨɝɨɞɚɜɥɟɧɢɹ
Ɋɭɱɧɨɣɫɛɪɨɫ
Ⱥɜɬɨɦɚɬɢɱɟɫɤɢɣɫɛɪɨɫ
ɇɚɪɭɠɧɵɣɚɝɪɟɝɚɬ
Ɍɟɪɦɢɫɬɨɪɬɟɩɥɨɨɛɦɟɧɧɢɤɚ
Ɍɟɪɦɢɫɬɨɪɬɟɦɩɟɪɚɬɭɪɵɧɚɪɭɠɧɨɝɨɜɨɡɞɭɯɚ
7,9 CuT
7,9 CuT
7,9 CuT
7,9 CuT
12,7 CuT
M
12,7 CuT
(12,7 CuT)
9,5 CuT
(12,7 CuT)
12,7 CuT
12,7 CuT
12,7 CuT
Ɉɛɜɹɡɤɚɬɪɭɛɨɩɪɨɜɨɞɨɜɩɨɦɟɫɬɭ
Ɍɟɪɦɢɫɬɨɪɝɚɡ
Ɋɚɡɜɟɬɜɢɬɟɥɶ
5HILQHWɧɚɫɚɞɤɚ
12,7 CuT
Ɂɚɩɨɪɧɵɣɜɟɧɬɢɥɶɝɚɡɚ
15,9 CuT
15,9 CuT
Ƚɥɭɲɢɬɟɥɶ
Ƚɥɭɲɢɬɟɥɶ
15,9 CuT
15,9 CuT
ɇɚɤɨɩɢɬɟɥɶ
Ʉɨɦɩɪɟɫɫɨɪ
9,5 CuT
Ƚɥɭɲɢɬɟɥɶ
9,5 CuT
12,7 CuT
ɯɨɞɨɜɨɣɤɥɚɩɚɧ
Ɍɟɩɥɨɨɛɦɟɧɧɢɤ
ɉɪɨɩɟɥɥɟɪɧɵɣ
ɜɟɧɬɢɥɹɬɨɪ
Ⱦɜɢɝɚɬɟɥɶɜɟɧɬɢɥɹɬɨɪɚ
7,9 CuT
7,9 CuT
7,9 CuT
MV
MV
MV
A
B
C
ɗɥɟɤɬɪɨɧɧɵɣɬɟɪɦɨɪɟɝɭɥɢɪɭɸɳɢɣɜɟɧɬɢɥɶ
6,4 CuT
6,4 CuT
6,4 CuT
Ɏɢɥɶɬɪ
ɉɨɦɟɳɟɧɢɟ$
ɉɨɦɟɳɟɧɢɟ%
ɉɨɦɟɳɟɧɢɟ&
Ɉɛɜɹɡɤɚ
ɬɪɭɛɨɩɪɨɜɨɞɨɜ
ɩɨɦɟɫɬɭ
ɀɢɞɤɨɫɬɧɚɹ
Ƚɚɡɨɜɚɹ
(6,4 CuT)
(6,4 CuT)
(6,4 CuT)
ɉɨɦɟɳɟɧɢɟ$
ɉɨɦɟɳɟɧɢɟ%
ɉɨɦɟɳɟɧɢɟ&
9,5 CuT
Ɂɚɩɨɪɧɵɣɜɟɧɬɢɥɶɠɢɞɤɨɫɬɢ
9,5 CuT
9,5 CuT
9,5 CuT
7,9 CuT
Ƚɥɭɲɢɬɟɥɶɫɮɢɥɶɬɪɨɦ
Ʉɚɩɢɥɥɹɪɧɚɹɬɪɭɛɤɚ
Ɋɚɫɩɪɟɞɟɥɢɬɟɥɶ
Ɋɚɫɯɨɞɯɥɚɞɚɝɟɧɬɚ
Ɋɚɡɜɟɬɜɢɬɟɥɶ
5HILQHWɧɚɫɚɞɤɚ
ɇɚɤɨɩɢɬɟɥɶ
Ɍɟɪɦɢɫɬɨɪɬɪɭɛɨɩɪɨɜɨɞɚ
ɧɚɝɧɟɬɚɧɢɹ
Ɍɟɪɦɢɫɬɨɪɠɢɞɤɨɫɬɶ
ɇɚɝɪɟɜ
Ɉɯɥɚɠɞɟɧɢɟ
Ɋɚɡɜɟɬɜɢɬɟɥɶ
5HILQHWɧɚɫɚɞɤɚ
ɋɨɨɬɜɟɬɫɬɜɭɸɳɢɟɦɨɞɟɥɢ
3MXM68M2V1B
S1PH
S2PH
ɉɟɪɟɤɥɸɱɚɬɟɥɶɜɵɫɨɤɨɝɨɞɚɜɥɟɧɢɹ
Ɋɭɱɧɨɣɫɛɪɨɫ
Ⱥɜɬɨɦɚɬɢɱɟɫɤɢɣɫɛɪɨɫ
SV
ɗɥɟɤɬɪɨɦɚɝɧɢɬɧɵɣɤɥɚɩɚɧ
9,5 CuT
9,5 CuT
6,4 CuT
12,7 CuT
ɇɚɪɭɠɧɵɣɚɝɪɟɝɚɬ
Ɍɟɪɦɢɫɬɨɪɬɟɩɥɨɨɛɦɟɧɧɢɤɚ
Ɍɟɪɦɢɫɬɨɪɬɟɦɩɟɪɚɬɭɪɵɧɚɪɭɠɧɨɝɨɜɨɡɞɭɯɚ
15,9 CuT
3PRU417620-1F.book Page 22 Friday, June 10, 2016 11:09 AM