Кондиционеры Daikin 3MXM-M - инструкция пользователя по применению, эксплуатации и установке на русском языке. Мы надеемся, она поможет вам решить возникшие у вас вопросы при эксплуатации техники.
Если остались вопросы, задайте их в комментариях после инструкции.
"Загружаем инструкцию", означает, что нужно подождать пока файл загрузится и можно будет его читать онлайн. Некоторые инструкции очень большие и время их появления зависит от вашей скорости интернета.

Русский
11
Монтаж
трубопровода
хладагента
5.
Заправка
хладагентом
1)
Если
общая
длина
трубопровода
для
всех
помещений
превышает
указанное
ниже
значение
,
дополнительно
заправьте
20
г
хладагента
(R32)
на
каждый
дополнительный
метр
трубопровода
.
ПРИМЕЧАНИЕ
:
Национальные
требования
по
внедрению
нормативной
документации
ЕС
по
определенным
газам
,
вызывающим
парниковый
эффект
,
могут
требовать
использования
для
записей
на
блоке
национального
языка
.
Следовательно
,
на
блоке
должен
иметься
дополнительный
мультиязычный
ярлык
о
вызывающих
парниковый
эффект
фторсодержащих
газах
.
Инструкции
по
наклеиванию
изображены
на
оборотной
стороне
этого
ярлыка
.
ПРЕДОСТЕРЕЖЕНИЕ
Даже
если
запорные
вентили
полностью
закрыты
,
возможна
незначительная
утечка
хладагента
.
Не
оставляйте
накидные
гайки
снятыми
в
течение
длительного
времени
.
Класс
производительности
наружного
агрегата
3MXM40M, 3MXM52M, 3AMXM52M,
3MXM68M, 4MXM68M, 4MXM80M, 5MXM90M
Общая
длина
трубопровода
для
всех
помещений
30
м
3
5
6
2
1
4
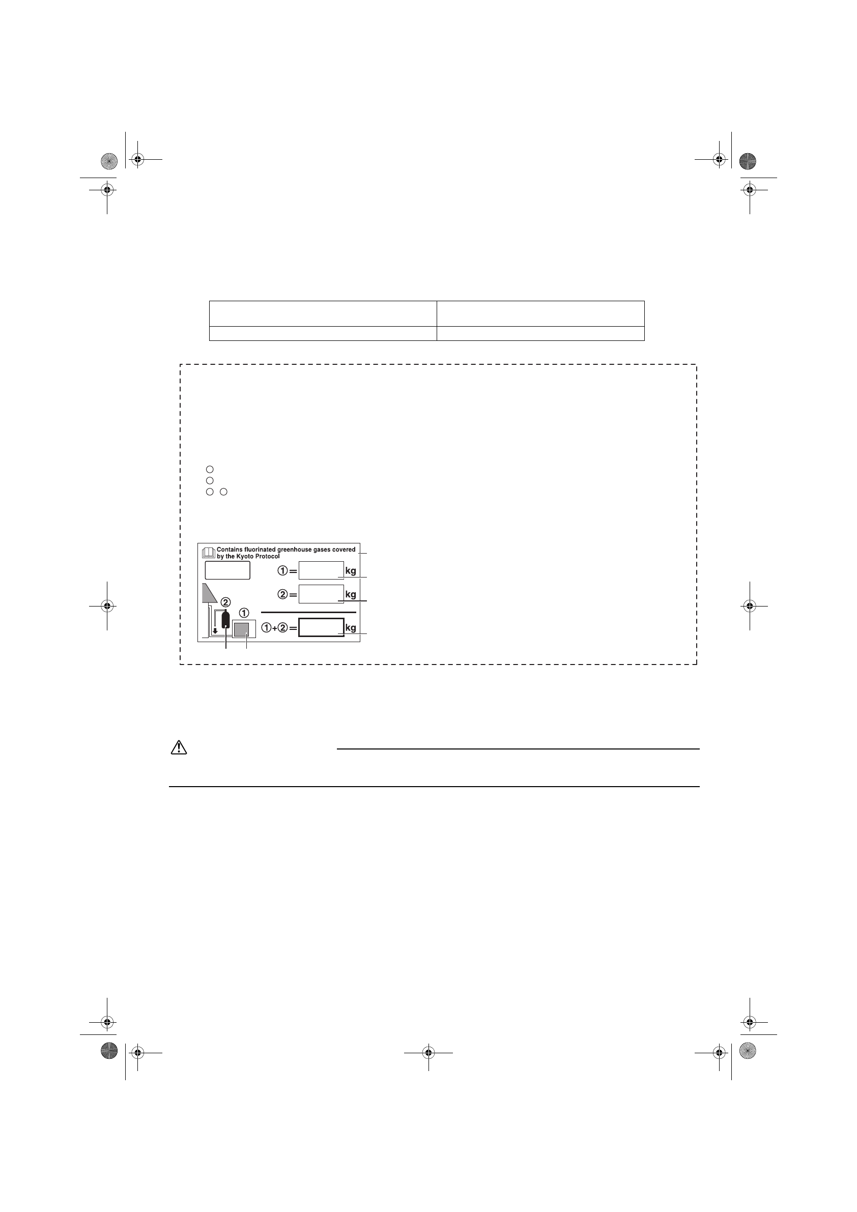
ȼɩɢɲɢɬɟɧɟɫɦɵɜɚɟɦɵɦɢɱɟɪɧɢɥɚɦɢ
1
ɨɛɴɟɦɡɚɜɨɞɫɤɨɣɡɚɩɪɚɜɤɢɯɥɚɞɚɝɟɧɬɨɦ
2
ɨɛɴɟɦɞɨɩɨɥɧɢɬɟɥɶɧɨɡɚɩɪɚɜɥɟɧɧɨɝɨɯɥɚɞɚɝɟɧɬɚ
ɨɛɳɟɟɤɨɥɢɱɟɫɬɜɨɡɚɩɪɚɜɥɟɧɧɨɝɨɯɥɚɞɚɝɟɧɬɚ
ɧɚɷɬɢɤɟɬɤɟɨɡɚɩɪɚɜɤɟɯɥɚɞɚɝɟɧɬɨɦɤɨɬɨɪɚɹɩɨɫɬɚɜɥɹɟɬɫɹɜɤɨɦɩɥɟɤɬɟ
ȼɚɠɧɚɹɢɧɮɨɪɦɚɰɢɹɨɛɢɫɩɨɥɶɡɭɟɦɨɦɯɥɚɞɚɝɟɧɬɟ
Ⱦɚɧɧɨɟɢɡɞɟɥɢɟɫɨɞɟɪɠɢɬɢɦɟɸɳɢɟɩɚɪɧɢɤɨɜɵɣɷɮɮɟɤɬɮɬɨɪɢɪɨɜɚɧɧɵɟɝɚɡɵɧɚɤɨɬɨɪɵɟɪɚɫɩɪɨɫɬɪɚɧɹɟɬɫɹ
ɞɟɣɫɬɜɢɟɄɢɨɬɫɤɨɝɨɩɪɨɬɨɤɨɥɚɇɟɜɵɩɭɫɤɚɣɬɟɝɚɡɵɜɚɬɦɨɫɮɟɪɭ
ɡɚɜɨɞɫɤɚɹɡɚɩɪɚɜɤɚɫɢɫɬɟɦɵɯɥɚɞɚɝɟɧɬɨɦɫɦɬɚɛɥɢɱɤɭ
ɫɧɚɢɦɟɧɨɜɚɧɢɟɦɢɡɞɟɥɢɹ
ɨɛɴɟɦɞɨɩɨɥɧɢɬɟɥɶɧɨɡɚɩɪɚɜɥɟɧɧɨɝɨɯɥɚɞɚɝɟɧɬɚ
ɋɦɩɪɟɞɫɬɚɜɥɟɧɧɭɸɜɵɲɟɢɧɮɨɪɦɚɰɢɸɨɬɧɨɫɢɬɟɥɶɧɨɨɛɴɟɦɚ
ɞɨɛɚɜɥɹɟɦɨɝɨɯɥɚɞɚɝɟɧɬɚ
ɨɛɳɟɟɤɨɥɢɱɟɫɬɜɨɡɚɩɪɚɜɥɟɧɧɨɝɨɯɥɚɞɚɝɟɧɬɚ
ɫɨɞɟɪɠɢɬɢɦɟɸɳɢɟɩɚɪɧɢɤɨɜɵɣɷɮɮɟɤɬɮɬɨɪɢɪɨɜɚɧɧɵɟɝɚɡɵ
ɧɚɤɨɬɨɪɵɟɪɚɫɩɪɨɫɬɪɚɧɹɟɬɫɹɞɟɣɫɬɜɢɟɄɢɨɬɫɤɨɝɨɩɪɨɬɨɤɨɥɚ
ɧɚɪɭɠɧɵɣɛɥɨɤ
ɛɚɥɥɨɧɫɯɥɚɞɚɝɟɧɬɨɦɢɦɚɧɨɦɟɬɪɢɱɟɫɤɢɣɤɨɥɥɟɤɬɨɪɞɥɹɡɚɩɪɚɜɤɢ
ɗɬɢɤɟɬɤɚɨɡɚɩɪɚɜɤɟɞɨɥɠɧɚɧɚɤɥɟɢɜɚɬɶɫɹɪɹɞɨɦɫɩɨɪɬɨɦɡɚɩɪɚɜɤɢɯɥɚɞɚɝɟɧɬɨɦɧɚɩɪɢɦɟɪɧɚɜɧɭɬɪɟɧɧɟɣ
ɫɬɨɪɨɧɟɤɪɵɲɤɢɡɚɩɨɪɧɵɯɜɟɧɬɢɥɟɣ
R32
Ɍɢɩɯɥɚɞɚɝɟɧɬɚ
R32
ɁɧɚɱɟɧɢɟɉȽɉ
ɉȽɉ ɩɨɬɟɧɰɢɚɥɝɥɨɛɚɥɶɧɨɝɨɩɨɬɟɩɥɟɧɢɹ
3PRU417620-1F.book Page 11 Friday, June 10, 2016 11:09 AM