Компрессоры Медицинский FINI MED 102-24V-0.75M 100045306 - инструкция пользователя по применению, эксплуатации и установке на русском языке. Мы надеемся, она поможет вам решить возникшие у вас вопросы при эксплуатации техники.
Если остались вопросы, задайте их в комментариях после инструкции.
"Загружаем инструкцию", означает, что нужно подождать пока файл загрузится и можно будет его читать онлайн. Некоторые инструкции очень большие и время их появления зависит от вашей скорости интернета.

L / 14
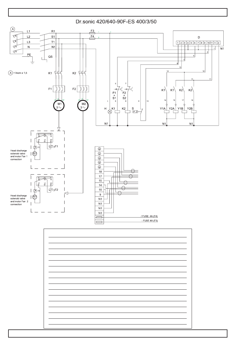
8. ЭЛЕКТРОСХЕМЫ
Подключение
Электроклапана
Вывода
воздуха с
торцевой части
и Пред. импел.
Двигателя 1
ЭЛЕКТРОКЛАПАН Y2B
ЭЛЕКТРОКЛАПАН Y1B
ЭЛЕКТРОКЛАПАН Y2A
ЭЛЕКТРОКЛАПАН Y1A
СЛУЖЕБНЫЙ ПРЕССОСТАТ (S) / PRESSURE SWITCH
Подключение
Электроклапана
Вывода
воздуха с
торцевой части
и Пред. импел.
Двигателя 2
ПЛАВКИЙ ПРЕДОХРАНТЕЛЬ
ПЛАВКИЙ ПРЕДОХРАНТЕЛЬ
QS
Главный выключатель
F3-F4 Предохранители 5x20 4A
F7-F8 Защиты от перегрузок вентиляторов
ST1-ST2 Внутренние термостаты окружающей среды
MV1-MV2 Двигатели внутренних вентиляторов
M1-M2 Двигатели компрессоров
K1
Счетчик двигателя компрессора 1
K2
Счетчик двигателя компрессора 2
F1+S1 Термореле со сбросом двигателя компрессора 1
F2+S2 Термореле со сбросом двигателя компрессора 2
S
Служебный прессостат
D
Станция управления
H
Зелёный световой сигнал
Yt1-Yt2 Электроклапаны разгрузки торцевой части
Y1A-Y2A Электроклапаны сушильной колонны 1
Y1B-Y2B Электроклапаны сушильной колонны 2
Содержание
- 2 ПРЕДИСЛОВИЕ; Применение руководства; ВНИМАНИЕ; Информация о технической поддержке
- 3 РУССКИЙ; Предусмотренное пользование; Очень внимательно прочесть Руководство; ИНФОРМАЦИЯ ОБЩЕГО ХАРАКТЕРА
- 4 с баком свыше 24 литров:; ТРАНСОПРТИРОВКА И ПОГРУЗОЧНО-РАЗГРУЗОЧНЫЕ РАБОТЫ
- 5 вентиляционная решётка находилась не менее 20 см; Подключение к сети электропитания; Мощность компрессора ЛС; мм; Подача выключателя; ВЫКЛ
- 7 SW; ФУНКЦИОНИРОВАНИЕ И ЭКСПЛУАТАЦИЯ
- 9 Защита от перегрузок; аварийный выключатель двигателя; Выключить компрессор и вывести
- 10 Операции последующего техобслуживания; года или каждые 2000 часов; Неполадка
- 11 СУШИЛКА – DRYER; YT