Измерительные приборы Condtrol Laser 3D - инструкция пользователя по применению, эксплуатации и установке на русском языке. Мы надеемся, она поможет вам решить возникшие у вас вопросы при эксплуатации техники.
Если остались вопросы, задайте их в комментариях после инструкции.
"Загружаем инструкцию", означает, что нужно подождать пока файл загрузится и можно будет его читать онлайн. Некоторые инструкции очень большие и время их появления зависит от вашей скорости интернета.

10
Laser 3D CONDTROL
Руководство по эксплуатации
ЛАЗЕРНЫЙ НИВЕЛИР
RU
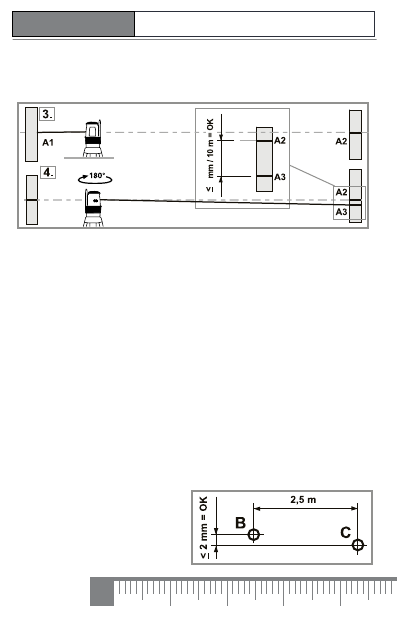
4. Поверните прибор на 180° и нанесите точку A3. Разница между точками
A2 и A3 является допустимым отклонением.
3
Примечание:
если расстояние между точками A2 и A3 больше, чем 3мм
на 10м, то устройство необходимо откалибровать. В этом случае Вам не
-
обходимо связаться с авторизованным дилером или сервисным отделом
CONDTROL.
ПРОВЕРКА ВЕРТИКАЛЬНОЙ ЛИНИИ
Поставьте прибор на расстоянии около 5 м от стены. С помощью шнура
закрепите на стене отвес длиной 2,5м. С помощью кнопок V1 и V2 отре
-
гулируйте лазер, совместив его луч с линией отвеса. Отклонение между
лазером и шнуром отвеса по вертикали не должно превышать ±1 мм.
ПРОВЕРКА ГОРИЗОНТАЛЬНОЙ ЛИНИИ
Поставьте прибор на расстоянии около 5 м от стены и включите пере
-
крёстный лазер. Сделайте отметку В на стене. Поворачивайте прибор,
пока лазерный крест не сдвинется на 2,5 м вправо. Сделайте отметку С.
Расстояние между горизонтальными линиями,
проведенными через эти две точ
-
ки, не должно превышать ± 2 мм.