Холодильник Samsung RF 61 K 90407 F - инструкция пользователя по применению, эксплуатации и установке на русском языке. Мы надеемся, она поможет вам решить возникшие у вас вопросы при эксплуатации техники.
Если остались вопросы, задайте их в комментариях после инструкции.
"Загружаем инструкцию", означает, что нужно подождать пока файл загрузится и можно будет его читать онлайн. Некоторые инструкции очень большие и время их появления зависит от вашей скорости интернета.

Орнату
Казақ
26
Орнату
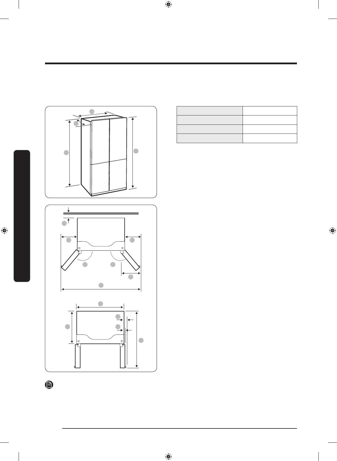
Бос орын
Орнату кезінде қалдыратын бос орынды төмендегі суреттер мен кестеден қараңыз.
A
B
C
D
"А" тереңдігі
733
"В" ені
908
"С" биіктігі
1797
"D" жалпы биіктігі
1825
(өлшем бірлігі: мм)
01
02
02
04
04
05
03
06
08
09
07
10
01
50 мм
02
125°
03
1519 мм
04
300 мм
05
305,5 мм
06
908 мм
07
610 мм
08
72,3 мм
09
43 мм
10
1075 мм
ЕСКЕРТПЕ
Жоғарыдағы кестеде берілген өлшемдер, өлшеу тәсіліне қарай өзгеруі мүмкін.
Untitled-2 26
2016-02-05 4:39:54
Содержание
- 4 Важные знаки безопасности и меры предосторожности:
- 5 Примечание CE; Важные замечания по установке; ПРЕДУПРЕЖДЕНИЕ
- 7 Меры предосторожности при установке; ВНИМАНИЕ
- 8 Важные замечания по использованию
- 11 Меры предосторожности при эксплуатации
- 12 Меры предосторожности при очистке; Важные замечания по утилизации
- 13 Дополнительные советы по надлежащему использованию
- 14 Советы по экономии энергии
- 16 Установка; Краткий обзор холодильника; ПРИМЕЧАНИЕ
- 17 Освобождение места в морозильной камере
- 18 Демонтаж двери для удобства транспортировки; Необходимые инструменты (не входят в комплект)
- 20 Демонтаж дверцы морозильной камеры
- 22 Установка дверцы морозильной камеры на место
- 23 Установка дверцы холодильной камеры на место
- 25 Пошаговая установка; Выбор места; Класс
- 27 Напольное покрытие; Настройка выравнивающих ножек
- 28 Настройка высоты и зазора дверцы; Упорное кольцо
- 30 Первоначальные настройки; Окончательная проверка
- 31 Эксплуатация; Панель функций
- 34 Особенности; Приготовление льда (только в применимых моделях); отметки
- 37 Обслуживание; Использование и уход; Полки из закаленного стекла (холодильная камера)
- 38 Дверные отсеки
- 40 Очистка; Внешние и внутренние поверхности; Устройство для устранения запаха; Замена деталей; Светодиодные лампы
- 41 Общие неисправности; Неисправность; Холодильник издает шум.; Устранение неисправностей
- 43 МОДЕЛЬ
- 44 Страна