Холодильник Samsung RF 61 K 90407 F - инструкция пользователя по применению, эксплуатации и установке на русском языке. Мы надеемся, она поможет вам решить возникшие у вас вопросы при эксплуатации техники.
Если остались вопросы, задайте их в комментариях после инструкции.
"Загружаем инструкцию", означает, что нужно подождать пока файл загрузится и можно будет его читать онлайн. Некоторые инструкции очень большие и время их появления зависит от вашей скорости интернета.

O‘rnatish
O'zbek
26
O‘rnatish
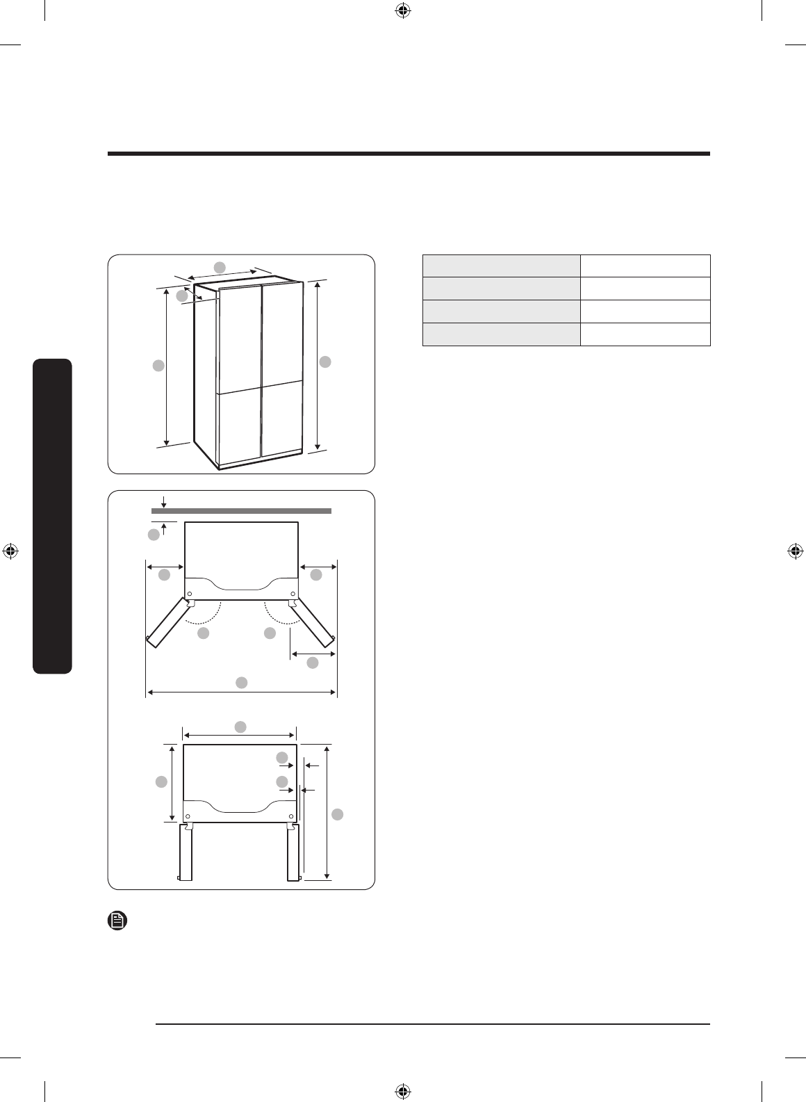
Oraliq bo'shliqlari
O'rnatish uchun kerakli bo'shliq talablari bo'yicha quyidagi rasm va jadvalga qarang.
A
B
C
D
Chuqurligi “A”
733
Eni “B”
908
Bo‘yi “C”
1797
Jami balandligi “D”
1825
(o'lchov birligi: mm)
01
02
02
04
04
05
03
06
08
09
07
10
01
50 mm
02
125°
03
1519 mm
04
300 mm
05
305,5 mm
06
908 mm
07
610 mm
08
72,3 mm
09
43 mm
10
1075 mm
IZOH
Yuqoridagi jadvaldagi hisob-kitoblar o‘lchov usuliga qarab farqlanishi mumkin.
Untitled-3 26
2016-02-05 4:41:08
Содержание
- 4 Важные знаки безопасности и меры предосторожности:
- 5 Примечание CE; Важные замечания по установке; ПРЕДУПРЕЖДЕНИЕ
- 7 Меры предосторожности при установке; ВНИМАНИЕ
- 8 Важные замечания по использованию
- 11 Меры предосторожности при эксплуатации
- 12 Меры предосторожности при очистке; Важные замечания по утилизации
- 13 Дополнительные советы по надлежащему использованию
- 14 Советы по экономии энергии
- 16 Установка; Краткий обзор холодильника; ПРИМЕЧАНИЕ
- 17 Освобождение места в морозильной камере
- 18 Демонтаж двери для удобства транспортировки; Необходимые инструменты (не входят в комплект)
- 20 Демонтаж дверцы морозильной камеры
- 22 Установка дверцы морозильной камеры на место
- 23 Установка дверцы холодильной камеры на место
- 25 Пошаговая установка; Выбор места; Класс
- 27 Напольное покрытие; Настройка выравнивающих ножек
- 28 Настройка высоты и зазора дверцы; Упорное кольцо
- 30 Первоначальные настройки; Окончательная проверка
- 31 Эксплуатация; Панель функций
- 34 Особенности; Приготовление льда (только в применимых моделях); отметки
- 37 Обслуживание; Использование и уход; Полки из закаленного стекла (холодильная камера)
- 38 Дверные отсеки
- 40 Очистка; Внешние и внутренние поверхности; Устройство для устранения запаха; Замена деталей; Светодиодные лампы
- 41 Общие неисправности; Неисправность; Холодильник издает шум.; Устранение неисправностей
- 43 МОДЕЛЬ
- 44 Страна