Холодильник Samsung RB36T604FEL - инструкция пользователя по применению, эксплуатации и установке на русском языке. Мы надеемся, она поможет вам решить возникшие у вас вопросы при эксплуатации техники.
Если остались вопросы, задайте их в комментариях после инструкции.
"Загружаем инструкцию", означает, что нужно подождать пока файл загрузится и можно будет его читать онлайн. Некоторые инструкции очень большие и время их появления зависит от вашей скорости интернета.

O‘rnatish
O'zbek
34
O
‘rnatish
02
04
05
06
07
03
02
04
05
06
07
03
01
01
01
01
01
01
Model
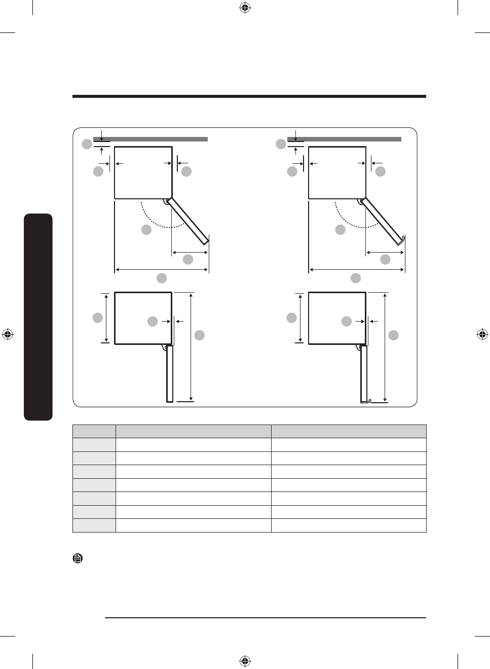
Oʻyiq tutqich turi
Dastali tutqich turi
01
50 mm.dan ortiq bo‘lishi tavsiya etiladi
50 mm.dan ortiq bo‘lishi tavsiya etiladi
02
135°
135°
03
404
433
04
999
1028
05
595
595
06
6
6
07
1210
1217,5
(birlik : mm)
IZOH
O‘lchash usuliga qarab, jadvalda keltirilgan o‘lchovlar farqlanishi mumkin.
Untitled-6 34
2020-08-19 11:12:30
Содержание
- 3 Что необходимо знать об инструкциях по безопасности
- 6 Важные знаки безопасности и меры предосторожности:; получению серьезной травмы, повреждению; ВНИМАНИЕ; получению серьезной травмы и/или; ПРИМЕЧАНИЕ
- 7 Важные меры предосторожности
- 9 Минимизация потребления энергии
- 11 ПРЕДУПРЕЖДЕНИЕ
- 12 Важные замечания по установке
- 16 Меры предосторожности при установке
- 17 Важные замечания по использованию
- 22 Меры предосторожности при эксплуатации
- 25 Меры предосторожности при очистке
- 27 Важные замечания по утилизации
- 28 Дополнительные советы по надлежащему использованию
- 30 Информацию об обязательствах компании Samsung по охране
- 31 Установка; Краткий обзор холодильника
- 32 Пошаговая установка; Выбор места
- 35 Разделение (только в соответствующих моделях)
- 36 Первоначальные настройки
- 37 Окончательная проверка
- 38 Эксплуатация; Панель управления
- 40 Особенности; Диспенсер воды (только в соответствующих моделях)
- 41 Зона оптимальной свежести+ (только в соответствующих моделях)
- 44 Как лучше всего хранить продукты; Размещение продуктов; Рекомендуемая температура
- 45 Сроки хранения продуктов в холодильной и морозильной камерах
- 47 Обслуживание
- 48 Перестановка дверец (только в соответствующих моделях); Необходимые инструменты (не входят в комплект поставки)
- 49 Принадлежности; Перестановка дверцы на противоположную сторону
- 62 Использование и уход
- 63 Складывающаяся полка (только в соответствующих моделях)
- 64 Очистка; Внутренняя и наружная часть; Замена деталей; Светодиодные лампы
- 65 Устранение неисправностей; Общие неисправности; Температура
- 66 Запахи
- 67 Конденсат
- 68 Холодильник издает странные звуки?; Следующие звуки являются нормальными:













