Холодильник Samsung RB36T604FEL - инструкция пользователя по применению, эксплуатации и установке на русском языке. Мы надеемся, она поможет вам решить возникшие у вас вопросы при эксплуатации техники.
Если остались вопросы, задайте их в комментариях после инструкции.
"Загружаем инструкцию", означает, что нужно подождать пока файл загрузится и можно будет его читать онлайн. Некоторые инструкции очень большие и время их появления зависит от вашей скорости интернета.

Қазақ 31
Орнат
у
02
04
05
06
07
03
02
04
05
06
07
03
01
01
01
01
01
01
Үлгі
Ұя тұтқасының түрі
Ұзынша тұтқа түрі
01
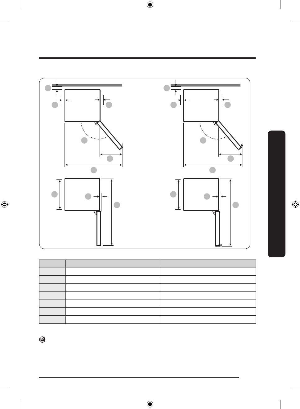
50 мм-ден артық орын қалдыруды ұсынамыз
50 мм-ден артық орын қалдыруды ұсынамыз
02
135°
135°
03
404
433
04
999
1028
05
595
595
06
6
6
07
1210
1217,5
(өлшем бірлігі: мм)
ЕСКЕРТПЕ
Өлшеу әдісіне байланысты кестедегі өлшемдер өзгеруі мүмкін.
Untitled-5 31
2020-08-19 11:09:11
Содержание
- 3 Что необходимо знать об инструкциях по безопасности
- 6 Важные знаки безопасности и меры предосторожности:; получению серьезной травмы, повреждению; ВНИМАНИЕ; получению серьезной травмы и/или; ПРИМЕЧАНИЕ
- 7 Важные меры предосторожности
- 9 Минимизация потребления энергии
- 11 ПРЕДУПРЕЖДЕНИЕ
- 12 Важные замечания по установке
- 16 Меры предосторожности при установке
- 17 Важные замечания по использованию
- 22 Меры предосторожности при эксплуатации
- 25 Меры предосторожности при очистке
- 27 Важные замечания по утилизации
- 28 Дополнительные советы по надлежащему использованию
- 30 Информацию об обязательствах компании Samsung по охране
- 31 Установка; Краткий обзор холодильника
- 32 Пошаговая установка; Выбор места
- 35 Разделение (только в соответствующих моделях)
- 36 Первоначальные настройки
- 37 Окончательная проверка
- 38 Эксплуатация; Панель управления
- 40 Особенности; Диспенсер воды (только в соответствующих моделях)
- 41 Зона оптимальной свежести+ (только в соответствующих моделях)
- 44 Как лучше всего хранить продукты; Размещение продуктов; Рекомендуемая температура
- 45 Сроки хранения продуктов в холодильной и морозильной камерах
- 47 Обслуживание
- 48 Перестановка дверец (только в соответствующих моделях); Необходимые инструменты (не входят в комплект поставки)
- 49 Принадлежности; Перестановка дверцы на противоположную сторону
- 62 Использование и уход
- 63 Складывающаяся полка (только в соответствующих моделях)
- 64 Очистка; Внутренняя и наружная часть; Замена деталей; Светодиодные лампы
- 65 Устранение неисправностей; Общие неисправности; Температура
- 66 Запахи
- 67 Конденсат
- 68 Холодильник издает странные звуки?; Следующие звуки являются нормальными:













