Холодильник Liebherr SKBes 4380 - инструкция пользователя по применению, эксплуатации и установке на русском языке. Мы надеемся, она поможет вам решить возникшие у вас вопросы при эксплуатации техники.
Если остались вопросы, задайте их в комментариях после инструкции.
"Загружаем инструкцию", означает, что нужно подождать пока файл загрузится и можно будет его читать онлайн. Некоторые инструкции очень большие и время их появления зависит от вашей скорости интернета.

фруктов Fruit &
Vegetable-Safe
Указание
u
Места для хранения, выдвижные ящики или корзины
в состоянии поставки расположены для оптимального
энергосбережения.
1.2 Область применения устройства
Применение по назначению
Данное устройство предназначено исключи-
тельно для охлаждения пищевых продуктов
в домашних условиях или условиях, близких
к домашним. Сюда относится, например,
следующее использование:
-
на кухнях частных лиц, в столовых,
-
в частных пансионатах, отелях, мотелях и
других местах проживания,
-
при обеспечении готовым питанием и
аналогичных услугах оптовой торговли.
Устройство не предназначено для замора-
живания пищевых продуктов.
Устройство не предназначено для использо-
вания в качестве встраиваемого прибора.
Все другие виды применения являются
недопустимыми.
Предсказуемое ненадлежащее исполь-
зование
Следующее использование запрещается в
явном виде:
-
Хранение и охлаждение медикаментов,
плазмы крови, лабораторных препаратов
или аналогичных веществ и продуктов,
лежащих в основе директивы по медицин-
ской продукции 2007/47/EG
-
Использование во взрывоопасных зонах.
-
Использование на подвижных носителях,
таких как корабли, рельсовый транспорт
или самолеты.
-
Хранение живых животных.
Неправильное использование устройства
может привести к повреждению хранящихся
изделий или к их порче.
Климатические классы
Устройство
предназначено
для
эксплуатации в ограниченном диапазоне
температуры окружающей среды в зависи-
мости от климатического класса. Климати-
ческий класс, соответствующий данному
устройству, указан на заводской табличке.
Указание
u
Для обеспечения безупречной работы
соблюдать заданную температуру окру-
жающей среды.
Климатиче-
ский класс
для температуры окружающего воздуха
SN
10 °C до 32 °C
N
16 °C до 32 °C
ST
16 °C до 38 °C
T
16 °C до 43 °C
1.3 Декларация соответствия
Контур хладагента проверен на герметичность. Устрой-
ство отвечает соответствующим предписаниям по технике
безопасности, а также директивам ЕС 2014/35/EU,
2014/30/EU, 2009/125/EG, 2011/65/EU и 2010/30/EU.
Отделение BioFresh соответствует требованиям, предъя-
вляемым к холодильным отделениям согласно стандарту
DIN EN 62552:2020.
1.4 База данных EPREL
С 1 марта 2021 года информацию о маркировке класса
энергопотребления и требованиях по экологическому
проектированию электропотребляющей продукции можно
найти в Европейской базе данных для продукции, подле-
жащей энергетической маркировке (EPREL). Эту базу
данных можно открыть по ссылке https://eprel.ec.europa.
eu/. Здесь нужно ввести идентификатор модели. Данные
об идентификаторе модели см. на заводской табличке.
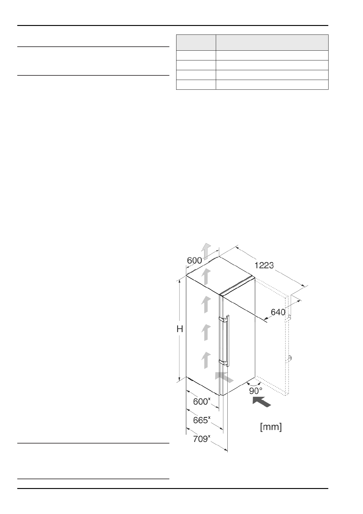
1.5 Габариты для установки
Fig. 2
Основные отличительные особенности устройства
* Наличие в зависимости от модели и комплектации
3
Характеристики
Остались вопросы?Не нашли свой ответ в руководстве или возникли другие проблемы? Задайте свой вопрос в форме ниже с подробным описанием вашей ситуации, чтобы другие люди и специалисты смогли дать на него ответ. Если вы знаете как решить проблему другого человека, пожалуйста, подскажите ему :)













