Холодильник Liebherr SBSes 7165 - инструкция пользователя по применению, эксплуатации и установке на русском языке. Мы надеемся, она поможет вам решить возникшие у вас вопросы при эксплуатации техники.
Если остались вопросы, задайте их в комментариях после инструкции.
"Загружаем инструкцию", означает, что нужно подождать пока файл загрузится и можно будет его читать онлайн. Некоторые инструкции очень большие и время их появления зависит от вашей скорости интернета.

приближенным к домашним. Сюда относится, например,
использование
-
на кухнях частных лиц, в столовых,
-
в частных пансионатах, отелях, мотелях и других
местах проживания,
-
при обеспечении готовым питанием и аналогичных
услугах оптовой торговли
Используйте прибор только в бытовых условиях. Все
другие способы применения являются недопустимыми.
Устройство не предназначено для хранения и охлаждения
медикаментов, плазмы крови, лабораторных препаратов
или похожих веществ, лежащих в основе директивы меди-
цинской продукции 2007/47/EG. Неправильное использо-
вание устройства может привести к повреждениям храня-
щихся изделий или к их порче. Устройство не подходит
для эксплуатации во взрывоопасной области.
Устройство предназначено для эксплуатации в ограни-
ченном диапазоне температуры окружающей среды в
зависимости от климатического класса. Климатический
класс, соответствующий Вашему устройству, указан на
заводской табличке.
Указание
u
Выдерживайте указанную температуру окружающего
воздуха, иначе мощность охлаждения снижается.
Климатиче-
ский класс
для температуры окружающего
воздуха
SN
10 °C до 32 °C
N
16 °C до 32 °C
ST
16 °C до 38 °C
T
16 °C до 43 °C
1.3 Декларация соответствия
Контур хладагента проверен на герметичность. Устрой-
ство отвечает соответствующим предписаниям по технике
безопасности, а также директивам ЕС 2006/95/EG и
2004/108/EG.
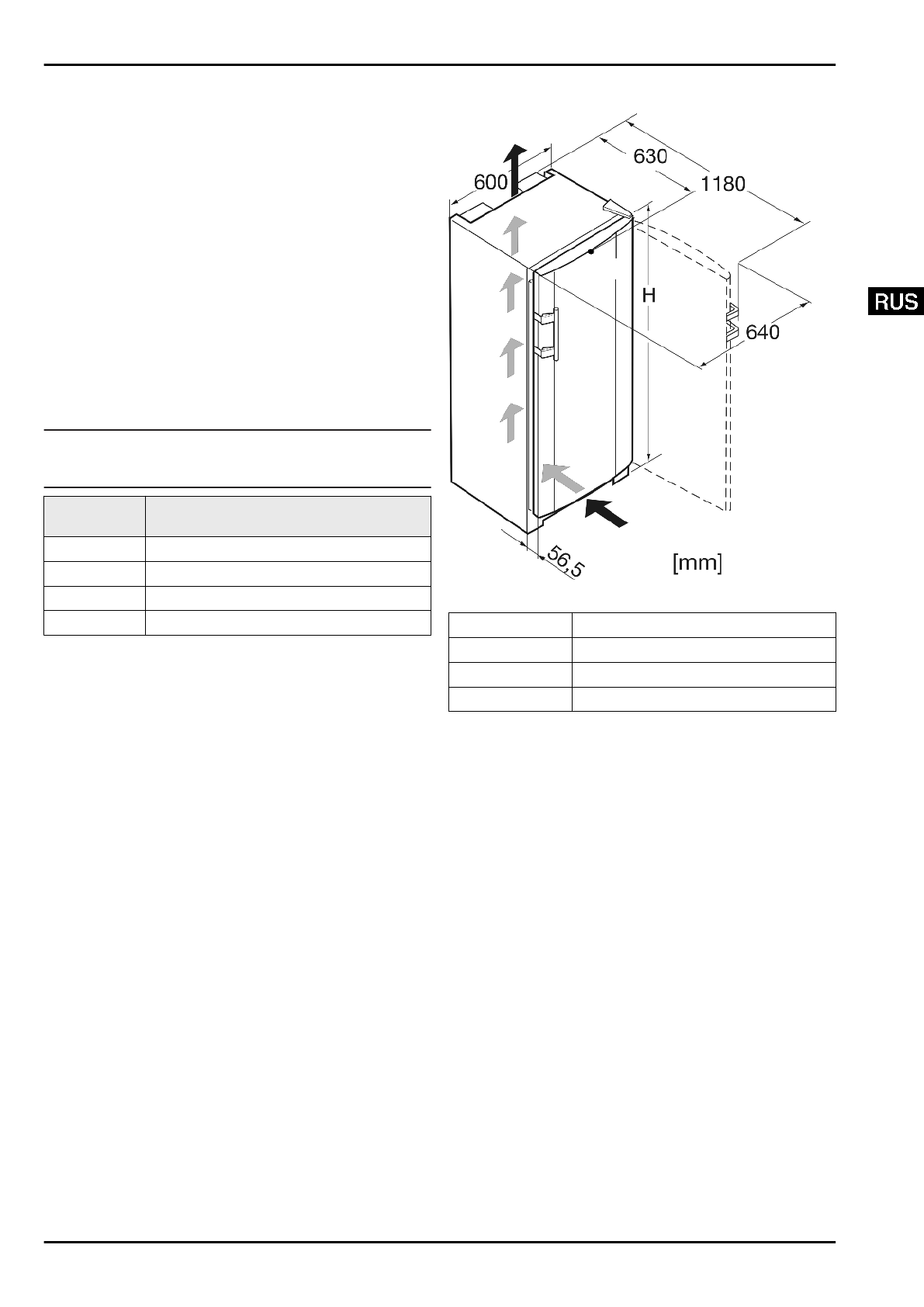
1.4 Габариты для установки
Fig. 2
Обозначение
H (мм)
KB 31
1458
KB 36
1655
KB 42
1852
1.5 Экономия электроэнергии
-
Всегда следите за хорошим притоком и оттоком
воздуха. Не закрывайте вентиляционные отверстия/
решетки.
-
Вентиляционный воздушный зазор должен всегда оста-
ваться открытым.
-
Избегайте устанавливать устройство в зоне прямых
солнечных лучей, рядом с плитой, системой отопления
и другими аналогичными приборами.
-
Потребление электроэнергии зависит от условий в
меcте установки, например, температуры окружающей
-
Открывайте устройство на предельно короткое время.
-
Чем ниже заданная температура, тем больше потре-
бление электроэнергии.
-
Сортируйте продукты при размещении (см. Основные
отличительные особенности устройства).
-
Храните все продукты хорошо запакованными и закры-
тыми. Это поможет избежать образования инея.
-
Вынимайте продукты на как можно менее продолжи-
тельный срок, чтобы они не сильно нагрелись.
-
Закладка теплых блюд: сначала дайте им остыть до
комнатной температуры.
-
Во время длительного отпуска используйте функцию
Основные отличительные особенности устройства
3