Холодильник Liebherr SBS 7222 - инструкция пользователя по применению, эксплуатации и установке на русском языке. Мы надеемся, она поможет вам решить возникшие у вас вопросы при эксплуатации техники.
Если остались вопросы, задайте их в комментариях после инструкции.
"Загружаем инструкцию", означает, что нужно подождать пока файл загрузится и можно будет его читать онлайн. Некоторые инструкции очень большие и время их появления зависит от вашей скорости интернета.

pro(u6tów 80(ycz9yc3
/ /EG. Гżyt6owa940 urzą(z094a
940z2o(90 z prz0z9acz09408 8oż0 (oprowa(z4ć (o usz6o-
(z094a 7ub z0psuc4a prz0c3owywa9yc3 towarów. Po9a(to
urzą(z0940 940 50st prz0z9aczo90 (o pracy w obszarac3 za2ro-
żo9yc3 wybuc308.
Иa70ż940 o( 67asy 6748atycz905 urzą(z0940 50st prz0z9aczo90
(o pracy w obręb40 ws6aza9yc3 2ra94c t08p0ratury otocz094a.
K7asa 6748atycz9a obow4ązu5ąca (7a (a902o urzą(z094a
po(a9a 50st 9a tab74czc0 z9a84o9ow05.
Еs6azów6a
u
Na70ży prz0strz02ać po(a902o za6r0su t08p0ratury
otocz094a, 2(yż 49acz05 spa(a wy(a59ość c3ło(z094a.
K7asa 6748a-
tycz9a
В08p0ratura otocz094a
БN
°C (o °C
N
°C (o °C
БВ
°C (o °C
В
°C (o °C
. И2o(9ość
Бzcz079ość ob402u czy9946a c3ło(94cz02o została po((a9a
6o9tro74. Гrzą(z0940 sp0ł94a waru964 o(pow40(94c3 prz0p4sów
b0zp40cz0ństwa 5a6 rów940ż (yr06tyw Г944 Europ05s6405
/ /ЕE oraz
/
/ЕE.
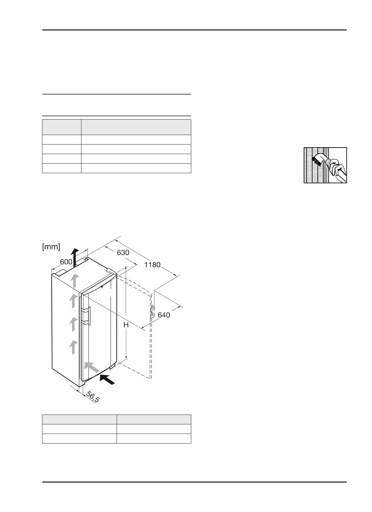
. Еy84ary (o zabu(owy
F42.
Nazwa
Е 88
K .., KP .., KP0s1 ..
K .., KP .., БK 0s1 ..
. Oszczę(za940 090r244
-
Na70ży zawsz0 (bać o (obrą w09ty7ac5ę. N40 za6rywać
otworów w09ty7acy59yc3 wz27. 6rat06 w09ty7acy59yc3.
-
Бzcz0749y w09ty7acy590 8uszą być zawsz0 o(6ryt0.
-
N40 9a70ży ustaw4ać urzą(z094a w 8405scac3 9arażo9yc3 9a
b0zpośr0(940 (z4ała940 pro84094 sło90cz9yc3 a94 obo6
6uc30964, 2rz05946a 4tp.
-
Иużyc40 090r244 50st za70ż90 o( waru96ów w 8405scu usta-
w4094a 9p. o( t08p0ratury otocz094a patrz . .
-
Otw40rać urzą(z0940 9a 8oż74w40 5a6 9a56rótszy czas.
-
I8 ustaw4o9a bę(z40 94ższa t08p0ratura, ty8 zużyc40
090r244 bę(z40 wyższ0.
-
Arty6uły spożywcz0 prz0c3owywać posortowa90 patrz
Pr0z09tac5a urzą(z094a .
-
Еszyst640 pro(u6ty spożywcz0 prz0c3owywać (obrz0
zapa6owa90 7ub po( przy6ryc408. Pozwo74 to u9469ąć
powsta94a szro9u.
-
Arty6uły spożywcz0 wyc4ą29ąć 9a 5a6 9a56rótszy czas, by
zbyt94o s4ę 940 9a2rzały.
-
Е6ła(a940 c40płyc3 potraw: pozwo74ć 9a5p40rw wysty29ąć (o
t08p0ratury po6o5ow05.
Osa(y 6urzu zw4ę6sza5ą zużyc40 090r244:
-
A2r02at c3ło(z4ar64 wraz z wy840994-
6408 c40pła - 80ta7owa 6rat6a z tyłu
urzą(z094a - 9a70ży o(6urzać raz
w ro6u.
o2ó790 ws6azów64 (otycząc0
b0zp40cz0ństwa
Иa2roż094a (7a użyt6ow946a:
-
Гrzą(z0940 940 50st prz0z9aczo90 (o obsłu24 prz0z osoby
ta6ż0 (z40c4 z upoś70(z094a84 psyc34cz9y84, 14zycz9y84
7ub u8ysłowy84, oraz prz0z osoby 940(yspo9u5ąc0 wystar-
cza5ący8 (ośw4a(cz09408 4 w40(zą. Еy5ąt06 sta9ow4 przy-
pa(06, ż0 t0 osoby zostały po49struowa90 w za6r0s40
obsłu24 urzą(z094a prz0z osobę o(pow40(z4a79ą za 4c3
b0zp40cz0ństwo oraz były 9a(zorowa90 w począt6owy8
o6r0s40. Na(zorować (z40c4, aby 940 baw4ły s4ę urzą(z0-
9408.
-
Е przypa(6u awar44 wyc4ą29ąć wty6 z 294az(a 940 wo79o
przy ty8 c4ą29ąć za 6ab07 7ub wyłączyć b0zp40cz946.
-
Naprawy, 4920r09c50 w urzą(z0940 oraz wy84a9ę prz0wo(u
zas47a5ąc02o 9a70ży pow40rzać wyłącz940 p7acówc0 s0rw4-
sow05 7ub o(pow40(94o wy6wa74146owa908u p0rso907ow4.
-
Po(czas o(łącza94a urzą(z094a o( s40c4, zawsz0 c3wytać
za wtycz6ę. N40 c4ą29ąć 6ab7a.
-
Mo9tować 4 po(łączać urzą(z0940 z2o(940 z0 ws6azów6a84
zawarty84 w 49stru6c54.
-
N49405szą 49stru6c5ę 9a70ży stara9940 prz0c3owywać 4 prz0-
6azać 5ą wraz z urzą(z09408 0w09tua7908u 9astęp908u
użyt6ow946ow4.
-
La8py (o c07ów sp0c5a79yc3 7a8py żarów6ow0, (4o(y
LED, św40t7ów64 z9a5(u5ąc0 s4ę w urzą(za94u, prz0z9a-
czo90 są (o ośw40t7a94a 502o w9ętrza 4 940 9a(a5ą s4ę (o
ośw40t7a94a po840szcz0ń (o8owyc3.
Иa2roż0940 pożarow0:
-
Иawarty w urzą(z094u czy9946 c3ło(94czy А
a 50st przy-
5az9y (7a śro(ow4s6a, a70 łatwopa79y. Еypływa5ący czy9946
c3ło(94czy 8oż0 u70c zapło9ow4.
•
N40 wo79o (opuśc4ć (o usz6o(z094a prz0wo(ów ob402u
czy9946a c3ło(94cz02o.
•
Е0w9ątrz urzą(z094a 940 wo79o 8a94pu7ować otwarty8
o29408 a94 źró(ła84 zapło9u.
•
Е0w9ątrz urzą(z094a 940 wo79o używać ża(9yc3 urzą-
(z0ń 0706trycz9yc3 9p. 8y506 parowy, 2rz05946ów,
7o(z4ar06 4tp .
•
J0ż074 wy(osta50 s4ę czy9946 c3ło(94czy: usu9ąć o240ń
7ub źró(ła zapło9u, z9a5(u5ąc0 s4ę w pob74żu 8405sca
940szcz079ośc4. Еyc4ą29ąć wty6 s40c4owy z 294az(a.
Dobrz0 prz0w40trzyć po840szcz0940. Pow4a(o84ć s0rw4s
t0c394cz9y.
o2ó790 ws6azów64 (otycząc0 b0zp40cz0ństwa