Холодильник Liebherr ICN 3056 Premium NoFrost - инструкция пользователя по применению, эксплуатации и установке на русском языке. Мы надеемся, она поможет вам решить возникшие у вас вопросы при эксплуатации техники.
Если остались вопросы, задайте их в комментариях после инструкции.
"Загружаем инструкцию", означает, что нужно подождать пока файл загрузится и можно будет его читать онлайн. Некоторые инструкции очень большие и время их появления зависит от вашей скорости интернета.

35
RUS
*
в зависимости от модели и оборудования
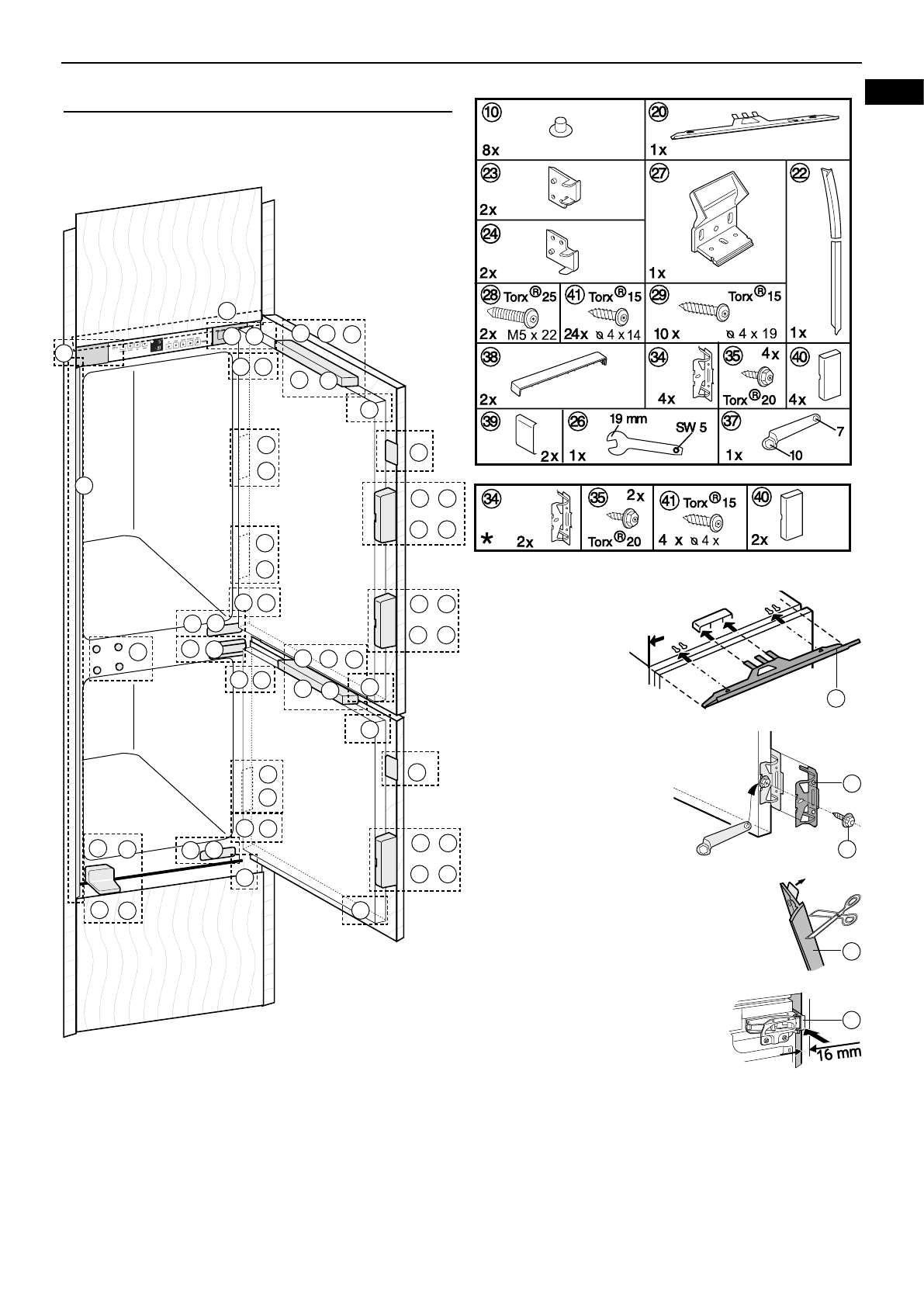
Краткое описание деталей, необходимый при
установке, и их положения на устройстве
23
23
24
27
28
41
29
29
29
29
38
34
35
40
39
39
20
22
41
34
35
40
41
34
35
40
24
29
25
25
30 31
32
33
38
30 31
32
33
Закрепление и монтаж
Все крепежные детали входят в комплект устройства.
W
В ы р а в н и в а ю щ и й
козырек
cl
установите в
устройство посередине:
вдвиньте в перемычку
и навесьте в замочные
отверстия.
W
Крепежный уголок
dp
с помощью
ш е ст игр а н н о го к лю ч а
d q
прикрутите к двери устройства,
используя предварительно
просверленные отверстия.
W
Задвиньте устройство на 3/4 в
нишу.
W
Учтите толщину мебельной стенки:
При толщине стенок мебели 16 мм имеем ширину
ниши
= 568 мм:
- Наклейте декоративную планку
cn
со стороны ручки
и заподлицо с лицевой стороной на боковую стенку
устройства: снимите защитную пленку и наклейте
обводку; при необходимости укоротите
обводку по высоте ниши.
- Распорные элементы защелкните
co
соответственно на верхнем
и
c p
на
нижнем шарнире.
- Вдвиньте устройство в нишу так, чтобы
распорные элементы уперлись в боковую
стенку мебели.
20
22
23
35
34
34
35
34
35
34
35
6
7
6
8
9
9
9
7 9
11
11
11
11
5
Характеристики
Остались вопросы?Не нашли свой ответ в руководстве или возникли другие проблемы? Задайте свой вопрос в форме ниже с подробным описанием вашей ситуации, чтобы другие люди и специалисты смогли дать на него ответ. Если вы знаете как решить проблему другого человека, пожалуйста, подскажите ему :)

 
  
  
  
  
  
  
  
  
  
  
  
  
  
 











