Холодильник Liebherr CBNd 5223-20 001 - инструкция пользователя по применению, эксплуатации и установке на русском языке. Мы надеемся, она поможет вам решить возникшие у вас вопросы при эксплуатации техники.
Если остались вопросы, задайте их в комментариях после инструкции.
"Загружаем инструкцию", означает, что нужно подождать пока файл загрузится и можно будет его читать онлайн. Некоторые инструкции очень большие и время их появления зависит от вашей скорости интернета.

Поставка состоит из следующих частей:
-
Консольное устройство
-
Оснащение (в зависимости от модели)
-
Монтажный материал (в зависимости от модели)
-
«Quick Start Guide»
-
«Installation Guide»
-
Сервисная брошюра
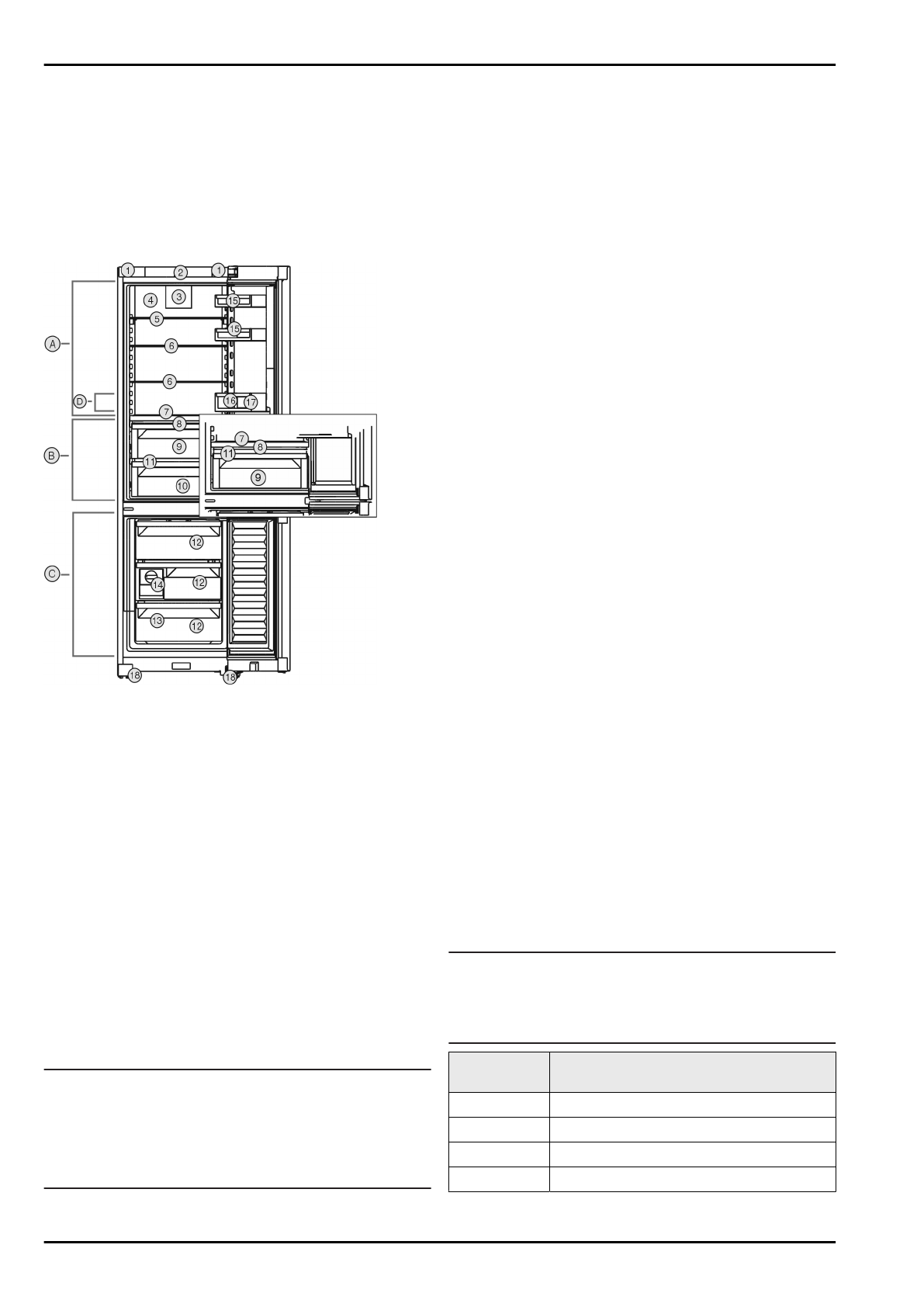
1.2 Обзор устройства и оснащения
Fig. 1 Примерное отображение
Температурные зоны
(A) Холодильное отде-
ление
(C) Морозильное отделение
(B) BioFresh
(D) Самая холодная зона
Оснащение
(1) Ручки для переме-
щения устройства
(10) Meat & Dairy-Safe*
(2) Элементы управления (11) Отверстие для стока
(3) Вентилятор с филь-
тром из активирован-
ного угля FreshAir
(12) Выдвижной ящик моро-
зильного отделения
(4) Задняя стенка из
высококачественной
стали
(13) Заводская табличка
(5) Разделяемая съемная
полка
(14) EasyTwist-Ice*
(6) Съемная полка
(15) Полка для консервов
(7) Сменная полка для
хранения бутылок
(16) Полка для бутылок
(8) Крышка Fruit &
Vegetable-Safe
(17) Держатель для бутылок
(9) Fruit & Vegetable-Safe
(18) Опорные ножки спереди
Указание
u
Полки для хранения, выдвижные ящики или корзины
в состоянии поставки расположены для оптимального
энергосбережения. Однако изменение расположения
вставных элементов, например, полок в холодильной
камере, в рамках предусмотренных вариантов не
влияет на потребление электроэнергии.
1.3 Область применения устройства
Применение по назначению
Данное устройство предназначено исключи-
тельно для охлаждения пищевых продуктов
в домашних условиях или условиях, близких
к домашним. Сюда относится, например,
следующее использование:
-
на кухнях частных лиц, в столовых,
-
в частных пансионатах, отелях, мотелях и
других местах проживания,
-
при обеспечении готовым питанием и
аналогичных услугах оптовой торговли.
Устройство не предназначено для использо-
вания в качестве встраиваемого прибора.
Все другие виды применения являются
недопустимыми.
Предсказуемое ненадлежащее исполь-
зование
Следующее использование запрещается в
явном виде:
-
Хранение и охлаждение медикаментов,
плазмы крови, лабораторных препаратов
или аналогичных веществ и продуктов,
лежащих в основе директивы по медицин-
ской продукции 2007/47/EG
-
Использование во взрывоопасных зонах.
-
Использование на подвижных носителях,
таких как корабли, рельсовый транспорт
или самолеты.
-
Хранение живых животных.
Неправильное использование устройства
может привести к повреждению хранящихся
изделий или к их порче.
Климатические классы
Устройство
предназначено
для
эксплуатации в ограниченном диапазоне
температуры окружающей среды в зависи-
мости от климатического класса. Климати-
ческий класс, соответствующий данному
устройству, указан на заводской табличке.
Указание
u
Для обеспечения безупречной работы
соблюдать заданную температуру окру-
жающей среды.
Климатиче-
ский класс
для температуры окружающего воздуха
SN
10 °C до 32 °C
N
16 °C до 32 °C
ST
16 °C до 38 °C
T
16 °C до 43 °C
Основные отличительные особенности устройства
* Наличие в зависимости от модели и комплектации
3
Содержание
- 3 Обзор устройства и оснащения; Область применения устройства
- 4 Общие указания по безопас-; Опасности для пользователя:; Общие указания по безопасности
- 5 Включение устройства; Вставка оснащения; Ввод в работу
- 6 Управление пищевыми; Хранение продуктов; Управление пищевыми продуктами
- 8 кации; Экономия электроэнергии
- 9 Логика управления; Управление
- 10 Температура
- 11 SuperCool; SuperFrost; PowerCool
- 14 Напоминание; Сброс
- 15 двери; Оснащение
- 16 Разделяемая съемная полка; полку; Сменная полка для хранения
- 18 Регулировка влаги
- 19 ванным углем; ванным углем FreshAir; Уход
- 20 Размораживание устройства; ления; Чистка устройства
- 21 Технические данные; Поддержка клиентов
- 22 Техническая неисправность
- 24 Сервисная служба; Заводская табличка; 0 Отключение; Отключение
- 25 Информация об изготовителе