Холодильник Whirlpool ART 725 - инструкция пользователя по применению, эксплуатации и установке на русском языке. Мы надеемся, она поможет вам решить возникшие у вас вопросы при эксплуатации техники.
Если остались вопросы, задайте их в комментариях после инструкции.
"Загружаем инструкцию", означает, что нужно подождать пока файл загрузится и можно будет его читать онлайн. Некоторые инструкции очень большие и время их появления зависит от вашей скорости интернета.

442
УСТАНОВКА
(ТОЛЬКО ДЛЯ МОДЕЛЕЙ ГЛУБИНОЙ 60 см)
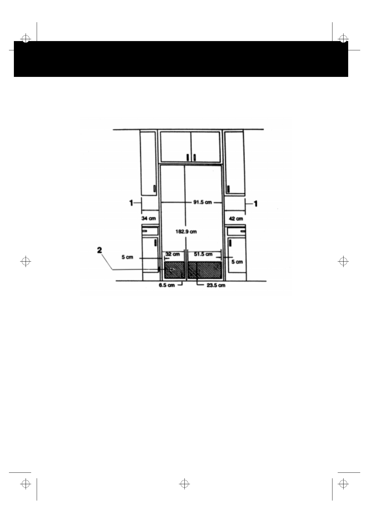
1.Минимальное расстояние от стены помещения.
2.Рекомендуемые положения для подключения электропитания и воды.
3. Для шкафов с дверцами, полностью совпадающими с контуром шкафа, и при наличии комплекта
отделки высота проема должна быть 183,2 см.
• Если установка холодильника выполняется заподлицо относительно передней части кухонных
шкафов, то все плинтусы и т.п. должны быть удалены из задней части проема для холодильника.
• Места подключения воды и электропитания должны располагаться около нижней части
холодильника.
• Для тех случаев, когда холодильник не может быть установлен заподлицо, предусмотрен
специальный комплект отделки. Сведения о том, как сделать заказ, приведены в разделе
“
Техническое обслуживание
“
.
ПРИМЕЧАНИЕ: Не устанавливайте холодильник около духовки, батареи отопления или иного
источника тепла, а также не размещайте его в помещении, где возможно падение температуры
ниже 13°C.
3ru33001.fm5 Page 442 Tuesday, August 21, 2001 6:09 PM








